Bildegalleri

EIE eiendomsmegling ved Julie Marie Vollan Brennvik har gleden av å presentere Lillian Byes veg 10!

UTLEIR / RISVOLLAN

Pen, livlig og vesentlig oppgradert - kjøkken fra 2022, god planløsning, "alt" ink i felleskostnader og sørvendt balkong

Prisantydning1 890 000 kr
Totalpris
2 621 299 kr
Omkostninger
11 300 kr
Fellesgjeld
719 999 kr
Felleskost/mnd.
6 867 kr
Fellesformue
19 987 kr
Formuesverdi
658 265 kr

Nøkkelinfo

Boligtype
Leilighet
Eieform
Andel
Soverom
1
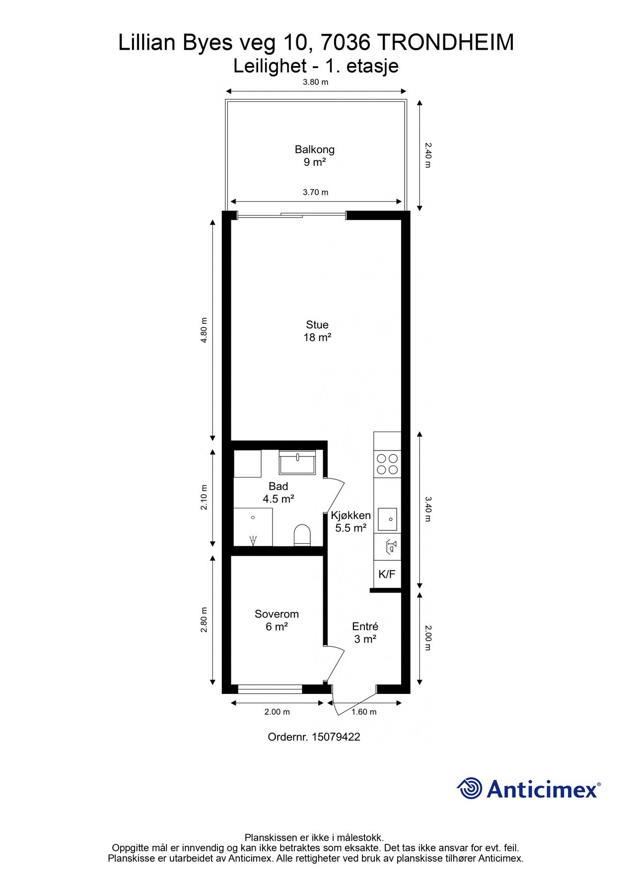
Internt bruksareal
39 m² (BRA-i)
Bruksareal
44 m²
Eksternt bruksareal
5 m² (BRA-e)
Balkong/Terrasse
9 m² (TBA)
Etasje
1
Byggeår
2007
Energimerking
B - Lysegrønn
Rom
2
Tomt
Eiet

Les mer om bruksareal her

Fasiliteter

Barnevennlig
Balkong/Terrasse
Garasje/P-plass
Kabel-TV
Heis
Offentlig vann/kloakk
Vaktmester-/vektertjeneste
Sentralt
Bredbåndstilknytning
Moderne
Rolig
Lademulighet
Balansert ventilasjon

Visning

onsdag, 11. mars
16:00 – 17:00
Visningspåmelding

Om boligen

EIE eiendomsmegling ønsker velkommen til Lillian Byes veg 10!
Dette er en pen 2-roms som virkelig leverer:

- "Alt" inkl. i felleskostander: oppvarming, varmtvann, kommunale utgifter, elektroniske fellesavtaler m.m.
- Fri parkering på oppstillingsplass, og mulighet for leie av fast p-plass og elbillader
- Helt nytt kjøkken fra 2022, med alle integrerte hvitevarer
- Pene og tidsriktige farger, som setter et personlig og livlig preg på tilstedeværelsen. Nytt gulv 2022
- Bad fra byggeår, med ny baderomsinnredning fra 2022
- Borettslaget har IN-ordning

Her kan man med andre ord bo godt og trygt, både som førstegangskjøper og de som ønsker en mindre bolig med lite vedlikehold. Med både fjernvarme og balansert ventilasjon er strømkostnadene lave. Den sørvendte balkongen har en fri og luftig utsikt, med gode solforhold store deler av dagen.

Velkommen til hyggelig EIE-visning!

Salgsoppgaven beskriver vesentlig og lovpålagt informasjon om eiendommen

Se komplett salgsoppgave

Nærområdet

Annonseinformasjon

FINN-kode452859224
Sist endret28. feb. 2026 12:44
Referanse97260032

Rapporter annonse

Annonsene kan være mangelfulle i forhold til lovpålagt opplysningsplikt. Før bindende avtale inngås oppfordres interessenter til å innhente komplett informasjon fra meglerforetaket, selger eller utleier.