Bildegalleri

Velkommen til Ringsakervegen 679 A,B,C,E og F. Eiendom med 6 registrerte boenheter. Alle enhetene er utleid på løpende leiekontrakter.
Brumunddal
Eiendom med landlig beliggenhet og totalt 6 uteleieenheter. Dobbelgarasje og uthus. Kun ca. 10 min til Brumunddal.
Prisantydning5 800 000 kr
Nøkkelinfo
- Boligtype
- Bygård/Flermannsbolig
- Eieform
- Eier (Selveier)
- Soverom
- 12
- Internt bruksareal
- 423 m² (BRA-i)
- Bruksareal
- 508 m²
- Eksternt bruksareal
- 85 m² (BRA-e)
- Balkong/Terrasse
- 104 m² (TBA)
- Byggeår
- 1937
- Rom
- 17
- Tomteareal
- 2 770 m² (eiet)
Om boligen
Innholdsrik eiendom i landlige omgivelser med totalt 6 boenheter fordelt over 2 hus, kun ca. 10 minutters kjøretid fra Brumunddal sentrum.
Eiendommen består av:
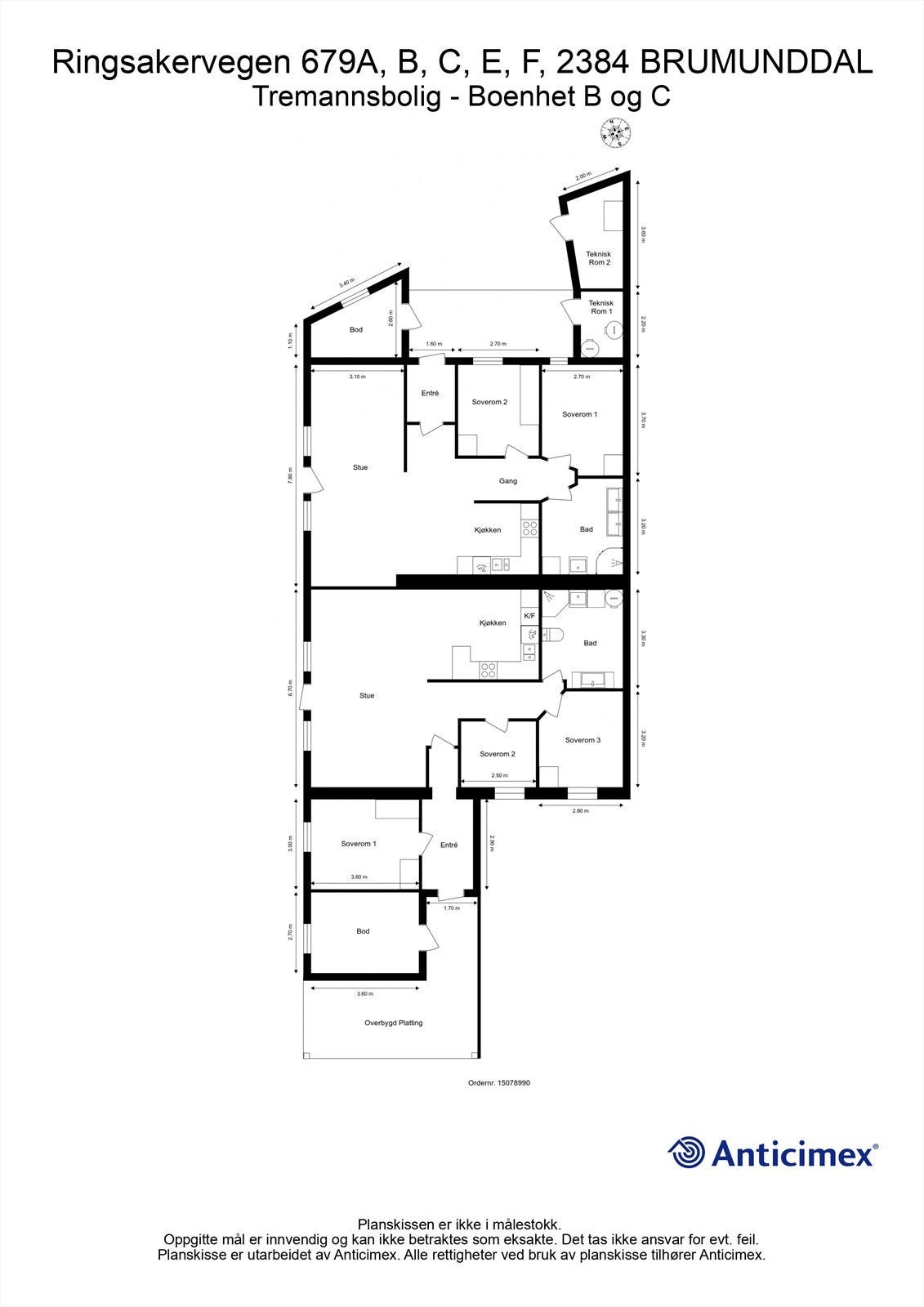
- Tomannsbolig med boenhet E (2-roms) og boenhet F (3-roms)
- Tremannsbolig med boenhet A (2 stk. 3-roms), boenhet B (3-roms) og boenhet C (4-roms)
- Frittstående dobbelgarasje
- Frittstående uthus/redskapsbod
Alle boenhetene har egen, privat adkomst og tilgang til uteplass i form av terrasse, overbygd platting eller direkte ut på bakkeplan. Pent opparbeidet tomt med grus, steinheller, plenareal, diverse beplantninger og forstøtningsmurer, samt biloppstillingsplasser.
Velkommen til en hyggelig visning!
Eiendommen består av:
- Tomannsbolig med boenhet E (2-roms) og boenhet F (3-roms)
- Tremannsbolig med boenhet A (2 stk. 3-roms), boenhet B (3-roms) og boenhet C (4-roms)
- Frittstående dobbelgarasje
- Frittstående uthus/redskapsbod
Alle boenhetene har egen, privat adkomst og tilgang til uteplass i form av terrasse, overbygd platting eller direkte ut på bakkeplan. Pent opparbeidet tomt med grus, steinheller, plenareal, diverse beplantninger og forstøtningsmurer, samt biloppstillingsplasser.
Velkommen til en hyggelig visning!
NB: Knappen for å vise hele beskrivelsen har kun en visuell effekt.
NB: Knappen for å vise hele beskrivelsen har kun en visuell effekt.
Salgsoppgaven beskriver vesentlig og lovpålagt informasjon om eiendommen
Se komplett salgsoppgaveNyttige lenker
Nærområdet
Krogsveen Hamar
Verdien av en god megler.
Annonseinformasjon
| FINN-kode | 452837868 |
|---|---|
| Sist endret | 27. feb. 2026 11:56 |
| Referanse | KR65.2638 |
Annonsene kan være mangelfulle i forhold til lovpålagt opplysningsplikt. Før bindende avtale inngås oppfordres interessenter til å innhente komplett informasjon fra meglerforetaket, selger eller utleier.





































