Bildegalleri

Bjørn Støylen v/Nordvik Majorstuen har gleden av å presentere Bergensgata 36N! Foto: xx
BJØLSEN/VOLDSLØKKA
Lys og pen 2 roms med god planløsning-Ny 2004-Fransk balkong-Lave felleskost-Heis-Felles takterrasse- Parkering*
Prisantydning4 690 000 kr
Nøkkelinfo
- Boligtype
- Leilighet
- Eieform
- Eier (Selveier)
- Soverom
- 1
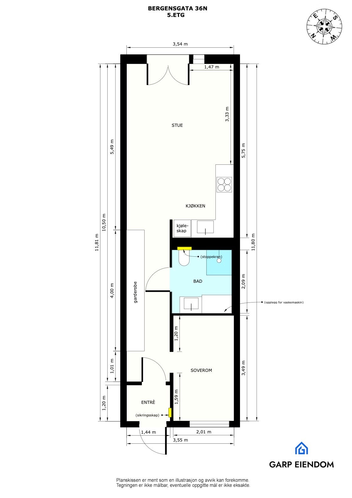
- Internt bruksareal
- 42 m² (BRA-i)
- Bruksareal
- 47 m²
- Eksternt bruksareal
- 5 m² (BRA-e)
- Etasje
- 5
- Byggeår
- 2004
- Energimerking
- C
- Rom
- 2
- Tomteareal
- 1 459 m² (eiet)
Fasiliteter
Takterrasse
Balkong/Terrasse
Barnevennlig
Bredbåndstilknytning
Heis
Kjæledyr tillatt
Kabel-TV
Offentlig vann/kloakk
Parkett
Sentralt
Vaktmester-/vektertjeneste
Turterreng
Om boligen
Pen og praktisk 2-roms leilighet som er lys og gjennomgående i 5. etasje med heis. Fransk balkong i stue, og uteplass utenfor inngangsdøren hvor man kan ha bord og stoler. Her er det gode solforhold ettermiddag/kveld. Soverom vender mot stille gårdsom, og store vinduer i stue gir luftig utsyn fra stue/kjøkken og skaper en god romfølelse.
- Nyere bygg fra 2004
- Tak, vegger og kjøkkenfronter nymalt november 2025
- Fransk balkong og felles takterrasse
- Uteplass utenfor inngangsdøren,
- Arealeffektiv og gjennomgående planløsning
- Kort vei til Nordmarka og fine turområder langs Akerselva
- Godt kollektivtilbud (buss + T-bane)
- Lave felleskostnader (TV og bredbånd fra Telenor inkl)
- Sykkelparkering i låst rom
- *Garasjekjeller hvor det ofte er plass til salgs og utleie. Plass til salgs nå
- Nyere bygg fra 2004
- Tak, vegger og kjøkkenfronter nymalt november 2025
- Fransk balkong og felles takterrasse
- Uteplass utenfor inngangsdøren,
- Arealeffektiv og gjennomgående planløsning
- Kort vei til Nordmarka og fine turområder langs Akerselva
- Godt kollektivtilbud (buss + T-bane)
- Lave felleskostnader (TV og bredbånd fra Telenor inkl)
- Sykkelparkering i låst rom
- *Garasjekjeller hvor det ofte er plass til salgs og utleie. Plass til salgs nå
NB: Knappen for å vise hele beskrivelsen har kun en visuell effekt.
NB: Knappen for å vise hele beskrivelsen har kun en visuell effekt.
Salgsoppgaven beskriver vesentlig og lovpålagt informasjon om eiendommen
Se komplett salgsoppgaveNyttige lenker
Nærområdet
Nordvik Majorstuen
Annonseinformasjon
| FINN-kode | 452836092 |
|---|---|
| Sist endret | 27. feb. 2026 13:28 |
| Referanse | 8-0093/26 |
Annonsene kan være mangelfulle i forhold til lovpålagt opplysningsplikt. Før bindende avtale inngås oppfordres interessenter til å innhente komplett informasjon fra meglerforetaket, selger eller utleier.






























