Bildegalleri

EiendomsMegler 1 v/Rune Johansen har gleden av å presentere Bjørnemosen 11! Foto: EFKT (Vilde Dahl)
Torvhaugan
VISNING LØRDAG 07.03 KL 13- Fin og romslig enebolig med godkjent utleiedel. Garasje. Stor tomt.
Prisantydning4 890 000 kr
Nøkkelinfo
- Boligtype
- Enebolig
- Eieform
- Eier (Selveier)
- Soverom
- 4
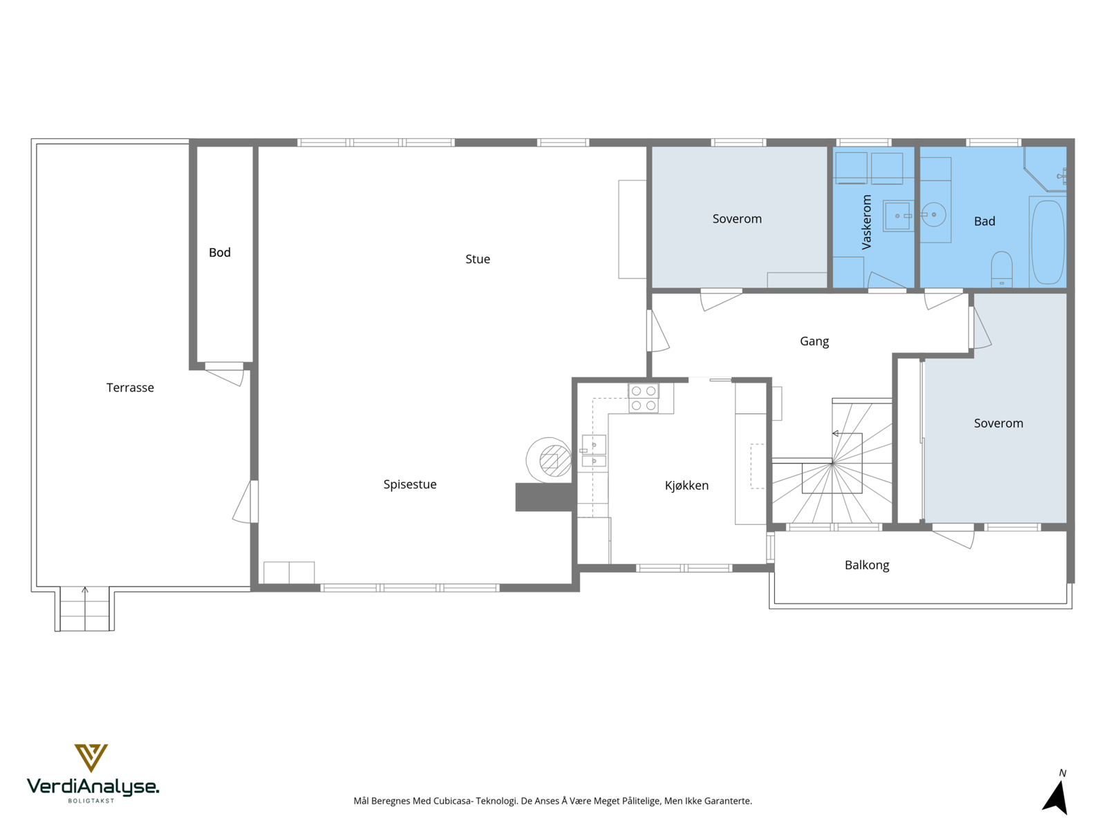
- Internt bruksareal
- 239 m² (BRA-i)
- Bruksareal
- 270 m²
- Eksternt bruksareal
- 31 m² (BRA-e)
- Balkong/Terrasse
- 38 m² (TBA)
- Byggeår
- 1982
- Energimerking
- D - Gul
- Rom
- 6
- Tomteareal
- 813 m² (eiet)
Visning
lørdag, 07. mars
13:00 – 14:00
Våre visninger har påmelding. Dette gjør vi for å kunne yte bedre service for våre kunder. Verdifullt for boligkjøper og for oss. Vi anbefaler at salgsoppgaven lastes ned digitalt før visning, og ring oss gjerne på forhånd for spørsmål om boligen. Passer ikke angitt tidspunkt, ta kontakt så finner vi en løsning. Skulle det mot formodning ikke være påmeldte til angitt visningstidspunkt vil ikke visning bli gjennomført.
Om boligen
EiendomsMegler 1 v/Rune Johansen har gleden av å presentere Bjørnemosen 11!
Attraktiv enebolig med garasje og godkjent utleiedel i sokkeletasje. Boligen ligger på en stor og pent opparbeidet tomt i ett barnevennlig og attraktivt strøk på Torvhaugan. Kort vei til skole, barnehage og idrettsanlegg.
Innholdsrik bolig som går over to plan. 2-roms utleieleilighet i sokkeletasjen som er utleid for kr 7 500,- pr mnd.
Parkering på tomten samt i egen garasje. Det medfølger nyere
elbil lader.
Velkommen på visning !
Attraktiv enebolig med garasje og godkjent utleiedel i sokkeletasje. Boligen ligger på en stor og pent opparbeidet tomt i ett barnevennlig og attraktivt strøk på Torvhaugan. Kort vei til skole, barnehage og idrettsanlegg.
Innholdsrik bolig som går over to plan. 2-roms utleieleilighet i sokkeletasjen som er utleid for kr 7 500,- pr mnd.
Parkering på tomten samt i egen garasje. Det medfølger nyere
elbil lader.
Velkommen på visning !
NB: Knappen for å vise hele beskrivelsen har kun en visuell effekt.
NB: Knappen for å vise hele beskrivelsen har kun en visuell effekt.
Salgsoppgaven beskriver vesentlig og lovpålagt informasjon om eiendommen
Se komplett salgsoppgaveNyttige lenker
Nærområdet
EiendomsMegler 1 Kristiansund
Vi loser deg trygt gjennom hele boligsalget
Annonseinformasjon
| FINN-kode | 452834381 |
|---|---|
| Sist endret | 27. feb. 2026 18:17 |
| Referanse | 17260061 |
Annonsene kan være mangelfulle i forhold til lovpålagt opplysningsplikt. Før bindende avtale inngås oppfordres interessenter til å innhente komplett informasjon fra meglerforetaket, selger eller utleier.





























