Bildegalleri

PrivatMegleren ved Christoffer Janås Fischer har gleden av å presentere Ekelyveien 34.
Familievennlig enebolig med god planløsning - kjøkken fra 2018 - 4 sov - romslig hage og solrike uteplasser - garasje
Prisantydning5 500 000 kr
Nøkkelinfo
- Boligtype
- Enebolig
- Eieform
- Eier (Selveier)
- Soverom
- 4
- Internt bruksareal
- 136 m² (BRA-i)
- Bruksareal
- 154 m²
- Eksternt bruksareal
- 18 m² (BRA-e)
- Balkong/Terrasse
- 51 m² (TBA)
- Etasje
- 2
- Byggeår
- 1967
- Energimerking
- E - Gul
- Tomteareal
- 802 m² (eiet)
Fasiliteter
Barnevennlig
Balkong/Terrasse
Garasje/P-plass
Offentlig vann/kloakk
Peis/Ildsted
Turterreng
Sentralt
Bademulighet
Visning
søndag, 08. mars
16:00 – 17:00
Velkommen til visning!
Alle våre visninger har påmelding. På denne måten sikrer vi at megler har god oversikt og tid til å imøtekomme alle interessenter på beste måte. Dette er veldig verdifullt for boligkjøpere og for oss. Det er enkelt å melde seg på, og du kan like enkelt melde deg av. Kontakt også gjerne megler i forkant av visning dersom du har spørsmål.
Om boligen
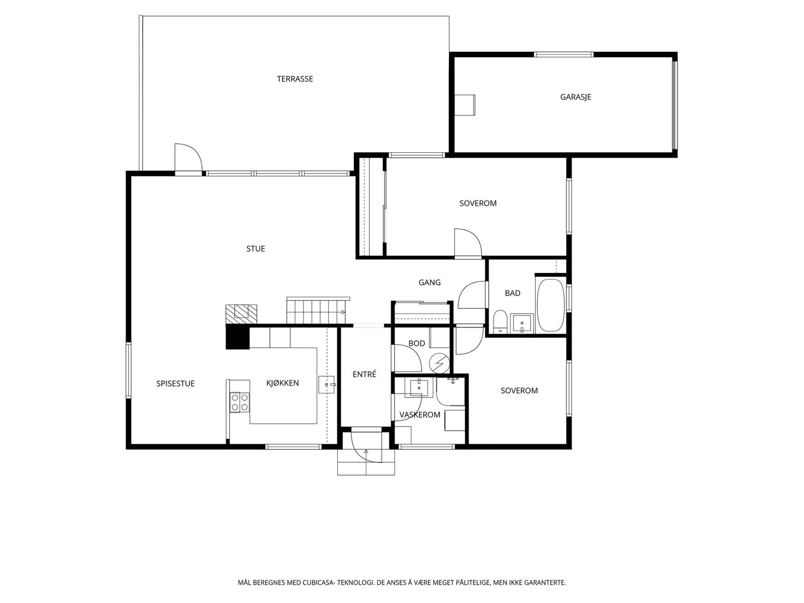
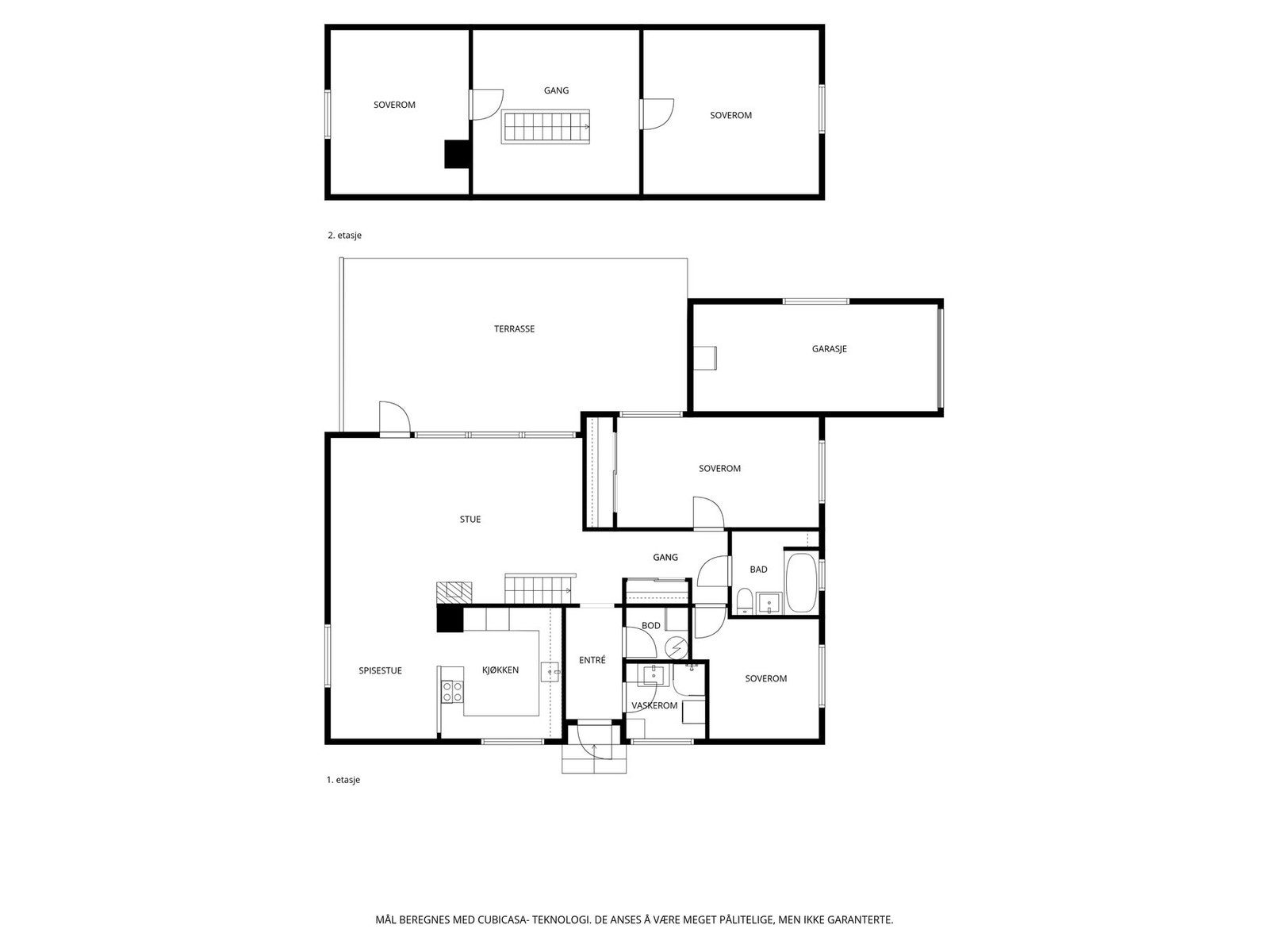
Ekelyveien 34 er en lys og innbydende enebolig, beliggende på en velstelt tomt ca. 1,2 km fra populære Ringshaugstranda. Eiendommen har steinlagt gårdsplass, garasje og pent opparbeidet hage med variert beplantning. Uteområdet byr på en romslig terrasse samt en hyggelig uteplass ved inngangspartiet, med gode solforhold gjennom dagen.
Boligen har en funksjonell planløsning og lyse overflater. Stue og spisestue utgjør et naturlig samlingspunkt med moderne peisovn, store vindusflater og utgang til terrasse. Kjøkkenet fra 2018 har stilren og godt utstyrt innredning. Boligen har to bad, hvorav ett er kombinert med vaskerom, samt bod ved entré. I tillegg inneholder boligen fire romslige soverom og gode garderobeløsninger. Velkommen!
Boligen har en funksjonell planløsning og lyse overflater. Stue og spisestue utgjør et naturlig samlingspunkt med moderne peisovn, store vindusflater og utgang til terrasse. Kjøkkenet fra 2018 har stilren og godt utstyrt innredning. Boligen har to bad, hvorav ett er kombinert med vaskerom, samt bod ved entré. I tillegg inneholder boligen fire romslige soverom og gode garderobeløsninger. Velkommen!
NB: Knappen for å vise hele beskrivelsen har kun en visuell effekt.
NB: Knappen for å vise hele beskrivelsen har kun en visuell effekt.
Salgsoppgaven beskriver vesentlig og lovpålagt informasjon om eiendommen
Se komplett salgsoppgaveNyttige lenker
Nærområdet

PrivatMegleren Tønsberg
Kun det beste på dine vegne
Annonseinformasjon
| FINN-kode | 452831858 |
|---|---|
| Sist endret | 28. feb. 2026 08:25 |
| Referanse | 13260018 |
Annonsene kan være mangelfulle i forhold til lovpålagt opplysningsplikt. Før bindende avtale inngås oppfordres interessenter til å innhente komplett informasjon fra meglerforetaket, selger eller utleier.















































