Bildegalleri

DNB Eiendom har gleden av å presentere Bølerlia 10.
Bøler
Pen 3-roms leilighet med heisadkomst og fantastisk utsikt over Oslo by! Solrik balkong med ettermiddags- og kveldssol.
Prisantydning4 280 000 kr
Nøkkelinfo
- Boligtype
- Leilighet
- Eieform
- Andel
- Soverom
- 2
- Internt bruksareal
- 74 m² (BRA-i)
- Bruksareal
- 78 m²
- Eksternt bruksareal
- 4 m² (BRA-e)
- Balkong/Terrasse
- 5 m² (TBA)
- Etasje
- 11
- Byggeår
- 1956
- Energimerking
- C - Lysegrønn
- Rom
- 3
- Tomteareal
- 37 794 m²
Fasiliteter
Balkong/Terrasse
Barnevennlig
Bredbåndstilknytning
Heis
Kjæledyr tillatt
Ingen gjenboere
Offentlig vann/kloakk
Rolig
Sentralt
Utsikt
Vaktmester-/vektertjeneste
Turterreng
Visning
torsdag, 05. mars
17:00 – 18:00
Velkommen til visning! Meld deg på ved å trykke "visningspåmelding" i våre boligannonser. Ta gjerne kontakt med megler i forkant av visningen om du har spørsmål.
VisningspåmeldingOm boligen
Denne 3-roms leiligheten har en attraktiv og sentral beliggenhet på Bøler, med enkel tilgang til alle nødvendige fasiliteter. I tillegg til dagligvarebutikker og et godt kollektivtilbud i umiddelbar nærhet, byr nærområdet på flotte grøntområder - med populære Østmarka som nabo.
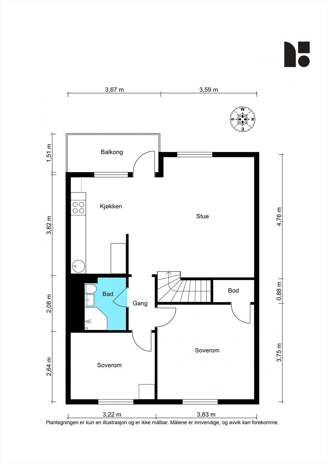
Leiligheten er fordelt over to plan, og har utgang til en herlig balkong på ca. 5 m². Her kan du nyte nydelig utsikt over Oslo og de omkringliggende områdene. Planløsningen oppleves som god, med en entré med garderobeskap, en åpen og sosial stue-/kjøkkenløsning, et bad med opplegg for vaskemaskin og to soverom med fine innredningsmuligheter. Lagringsmuligheter i en innvendig bod/kott og i en ekstern bod i 10. etasje samt skapbod i kjeller.
Varmtvann og fyring er inkludert i felleskostnadene.
Ingen forkjøpsrett!
Leiligheten er fordelt over to plan, og har utgang til en herlig balkong på ca. 5 m². Her kan du nyte nydelig utsikt over Oslo og de omkringliggende områdene. Planløsningen oppleves som god, med en entré med garderobeskap, en åpen og sosial stue-/kjøkkenløsning, et bad med opplegg for vaskemaskin og to soverom med fine innredningsmuligheter. Lagringsmuligheter i en innvendig bod/kott og i en ekstern bod i 10. etasje samt skapbod i kjeller.
Varmtvann og fyring er inkludert i felleskostnadene.
Ingen forkjøpsrett!
NB: Knappen for å vise hele beskrivelsen har kun en visuell effekt.
NB: Knappen for å vise hele beskrivelsen har kun en visuell effekt.
Salgsoppgaven beskriver vesentlig og lovpålagt informasjon om eiendommen
Se komplett salgsoppgaveNyttige lenker
Nærområdet
DNB Eiendom AS
Verdifulle salg
Annonseinformasjon
| FINN-kode | 452818707 |
|---|---|
| Sist endret | 26. feb. 2026 20:36 |
| Referanse | 310260046 |
Annonsene kan være mangelfulle i forhold til lovpålagt opplysningsplikt. Før bindende avtale inngås oppfordres interessenter til å innhente komplett informasjon fra meglerforetaket, selger eller utleier.











































