Bildegalleri

Velkommen til Kleppelundvegen 5, leil. 102 - Presentert av Daniel S. Mossige v/Aktiv eiendomsmegling Jæren AS - Foto: Truls Schaal
Kleppe
Lys og lettstelt leilighet i god stand - Sentral, men skjermet beliggenhet - Garasje
Prisantydning2 690 000 kr
Nøkkelinfo
- Boligtype
- Leilighet
- Eieform
- Eier (Selveier)
- Soverom
- 1
- Internt bruksareal
- 46 m² (BRA-i)
- Bruksareal
- 52 m²
- Eksternt bruksareal
- 6 m² (BRA-e)
- Etasje
- 1
- Byggeår
- 2012
- Energimerking
- D
- Rom
- 2
- Tomteareal
- 1 129 m² (eiet)
Fasiliteter
Balkong/Terrasse
Garasje/P-plass
Heis
Offentlig vann/kloakk
Parkett
Sentralt
Vaktmester-/vektertjeneste
Visning
onsdag, 04. mars
17:00 – 17:45
Påmelding til megler innen kl 12:00 visningsdagen. Velkommen!
VisningspåmeldingOm boligen
Velkommen til Kleppelundvegen 5, leil. 102!
En moderne og lettstelt selveierleilighet fra 2012 med gjennomgående god standard, effektiv planløsning og sentral beliggenhet midt i Klepp sentrum. Leiligheten ligger tilbaketrukket til med en sentrumsnær beliggenhet.
Kort fortalt:
- Lys stue med god takhøyde og åpen løsning mot kjøkken
- Kjøkken med hvitevarer som medfølger handelen og gode arbeidsflater
- Flislagt bad med dusjhjørne, vegghengt toalett og opplegg for vaskemaskin
- Romslig soverom med gode møbleringsmuligheter
- Utvendig bod like ved leiligheten
- Parkering i lukket anlegg
- Romslig uteområde på ca. 13 m²
Innhold:
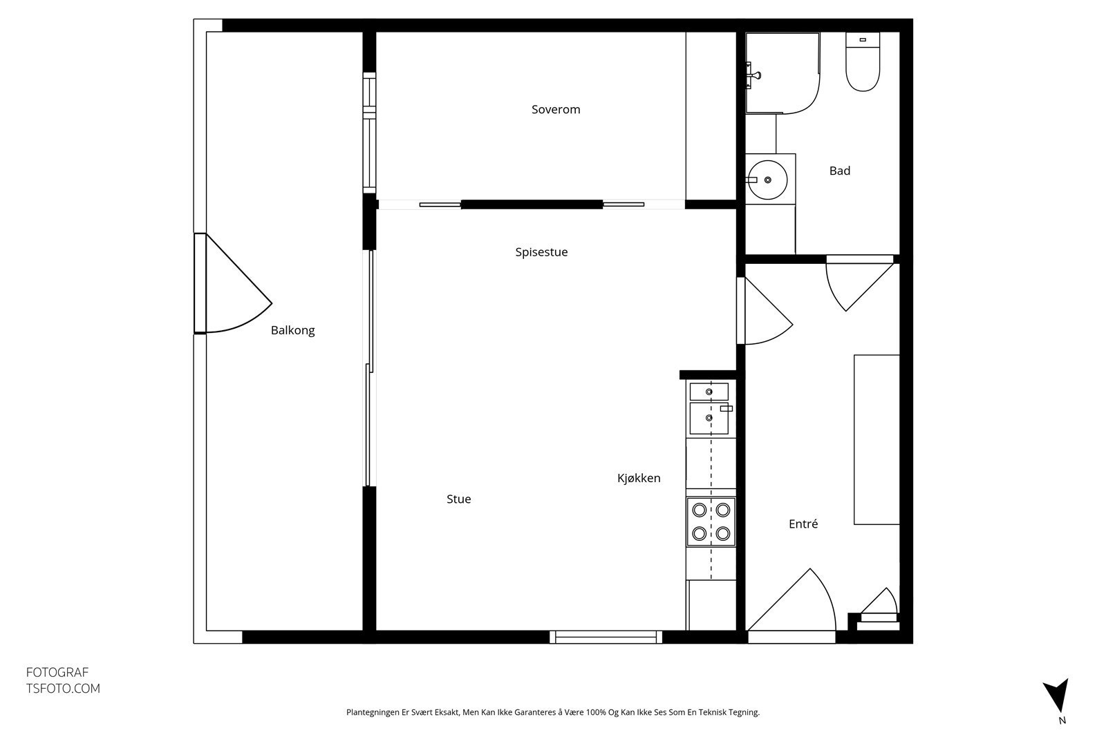
1. etg: Bad/vaskerom, stue/kjøkken, gang og soverom
En moderne og lettstelt selveierleilighet fra 2012 med gjennomgående god standard, effektiv planløsning og sentral beliggenhet midt i Klepp sentrum. Leiligheten ligger tilbaketrukket til med en sentrumsnær beliggenhet.
Kort fortalt:
- Lys stue med god takhøyde og åpen løsning mot kjøkken
- Kjøkken med hvitevarer som medfølger handelen og gode arbeidsflater
- Flislagt bad med dusjhjørne, vegghengt toalett og opplegg for vaskemaskin
- Romslig soverom med gode møbleringsmuligheter
- Utvendig bod like ved leiligheten
- Parkering i lukket anlegg
- Romslig uteområde på ca. 13 m²
Innhold:
1. etg: Bad/vaskerom, stue/kjøkken, gang og soverom
NB: Knappen for å vise hele beskrivelsen har kun en visuell effekt.
NB: Knappen for å vise hele beskrivelsen har kun en visuell effekt.
Salgsoppgaven beskriver vesentlig og lovpålagt informasjon om eiendommen
Se komplett salgsoppgaveNærområdet
Aktiv Jæren
Annonseinformasjon
| FINN-kode | 452807647 |
|---|---|
| Sist endret | 26. feb. 2026 11:34 |
| Referanse | 1403260067 |
Annonsene kan være mangelfulle i forhold til lovpålagt opplysningsplikt. Før bindende avtale inngås oppfordres interessenter til å innhente komplett informasjon fra meglerforetaket, selger eller utleier.

































