Bildegalleri

Velkommen til en sjønær utsiktsleilighet i Daletoppen 2! Foto: Zovenfra AS
Asker
Strøken utsiktsleilighet med sjønær beliggenhet! | Balkong m/utsikt mot sjøen, oppusset i 2020. Parkeringsplass m/lader
Prisantydning4 400 000 kr
Nøkkelinfo
- Boligtype
- Leilighet
- Eieform
- Eier (Selveier)
- Soverom
- 1
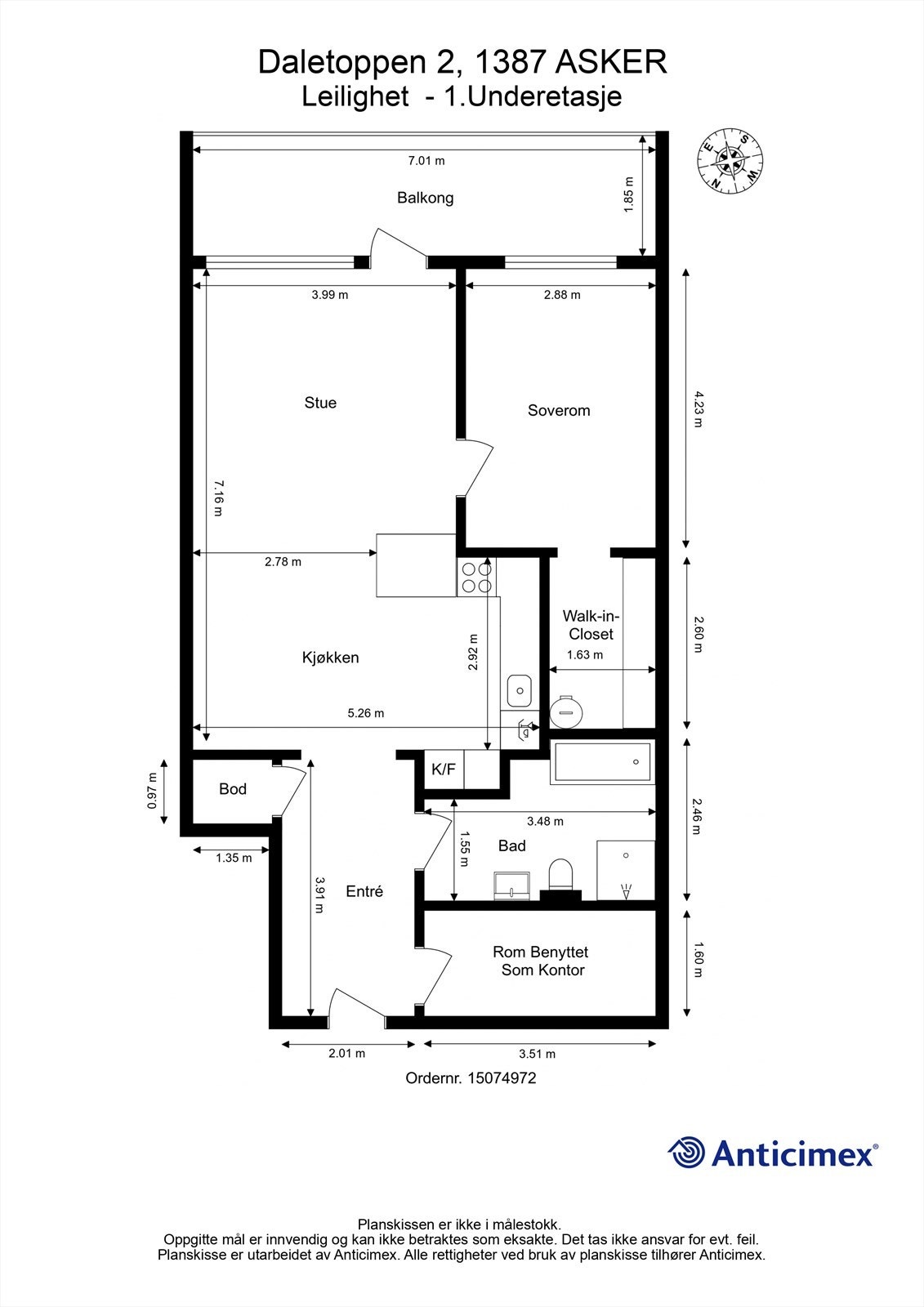
- Internt bruksareal
- 74 m² (BRA-i)
- Bruksareal
- 77 m²
- Eksternt bruksareal
- 3 m² (BRA-e)
- Balkong/Terrasse
- 13 m² (TBA)
- Etasje
- -1
- Byggeår
- 1978
- Energimerking
- D - Gul
- Rom
- 3
- Tomteareal
- 38 223 m² (eiet)
Fasiliteter
Balkong/Terrasse
Barnevennlig
Bredbåndstilknytning
Garasje/P-plass
Hage
Kjæledyr tillatt
Ingen gjenboere
Kabel-TV
Offentlig vann/kloakk
Parkett
Rolig
Utsikt
Turterreng
Lademulighet
Visning
søndag, 08. mars
12:00 – 13:00
For å delta på visning, ber vi om at du melder deg på. Da sikrer vi at du får nødvendig informasjon og at det er satt av tilstrekkelig med tid. Kontakt megler dersom annet tidspunkt ønskes. Husk å lese salgsoppgaven før visningen, så du stiller forberedt.
Ønsker du kun å bli holdt orientert, kan du fra eiendommens hjemmeside få varsel om solgtpris, eller kontakte megler.
VisningspåmeldingOm boligen
Velkommen til Daletoppen 2! En betydelig oppgradert og strøken selveierleilighet med usjenert beliggenhet og fin utsikt.
Her får du en moderne hverdag i Asker, med nærhet til grøntområder og gangavstand til sjøen og sentrum. Den åpne stue- og kjøkkenløsningen er leilighetens hjerte, med utgang til en stor balkong. Området er rolig og trygt, med kort vei til barnehager, skoler og offentlig transport.
Høydepunkter:
Her får du en moderne hverdag i Asker, med nærhet til grøntområder og gangavstand til sjøen og sentrum. Den åpne stue- og kjøkkenløsningen er leilighetens hjerte, med utgang til en stor balkong. Området er rolig og trygt, med kort vei til barnehager, skoler og offentlig transport.
Høydepunkter:
- Vesentlig oppgradert i 2020 med bl.a. nytt kjøkken og elektrisk anlegg. Gulv fra 2026
- Kjøkken med integrerte hvitevarer og kjøkkenøy
- Gulvvarme i stue, kjøkken, entré og bad
- Romslig walk-in-closet
- Stor balkong på 13 m²
- Parkeringsplass med elbillader
- TV og internett er inkludert i felleskostnadene
Her kan du flytte rett inn - velkommen til visning!
NB: Knappen for å vise hele beskrivelsen har kun en visuell effekt.
NB: Knappen for å vise hele beskrivelsen har kun en visuell effekt.
Salgsoppgaven beskriver vesentlig og lovpålagt informasjon om eiendommen
Se komplett salgsoppgaveNyttige lenker
Nærområdet
Krogsveen Bærum
Verdien av en god megler.
Annonseinformasjon
| FINN-kode | 452805254 |
|---|---|
| Sist endret | 28. feb. 2026 07:40 |
| Referanse | KR10.25224 |
Annonsene kan være mangelfulle i forhold til lovpålagt opplysningsplikt. Før bindende avtale inngås oppfordres interessenter til å innhente komplett informasjon fra meglerforetaket, selger eller utleier.







































