Bildegalleri

Velkommen til Hamangskogen 85! - presentert av Eystein Garathun Næss v/Nordvik Bærum. (Foto: Arne N. Schram)
SANDVIKA
Lys og tiltalende 3-roms leilighet med stor solrik terrasse - Garasjeplass - Attraktiv beliggenhet i Sandvika
Prisantydning6 300 000 kr
Nøkkelinfo
- Boligtype
- Leilighet
- Eieform
- Eier (Selveier)
- Soverom
- 2
- Internt bruksareal
- 95 m² (BRA-i)
- Bruksareal
- 100 m²
- Eksternt bruksareal
- 5 m² (BRA-e)
- Balkong/Terrasse
- 12 m² (TBA)
- Etasje
- 1
- Byggeår
- 1983
- Energimerking
- D
- Rom
- 3
- Tomteareal
- 12 732 m² (eiet)
Fasiliteter
Balkong/Terrasse
Barnevennlig
Bredbåndstilknytning
Garasje/P-plass
Kjæledyr tillatt
Kabel-TV
Offentlig vann/kloakk
Sentralt
Utsikt
Bademulighet
Turterreng
Visning
søndag, 08. mars
13:15 – 14:00
Alle våre visninger har påmelding. På denne måten sikrer vi at megler har god oversikt og tid til å imøtekomme alle interessenter. Meld deg på visning ved å trykke på lenken visningspåmelding.
VisningspåmeldingOm boligen
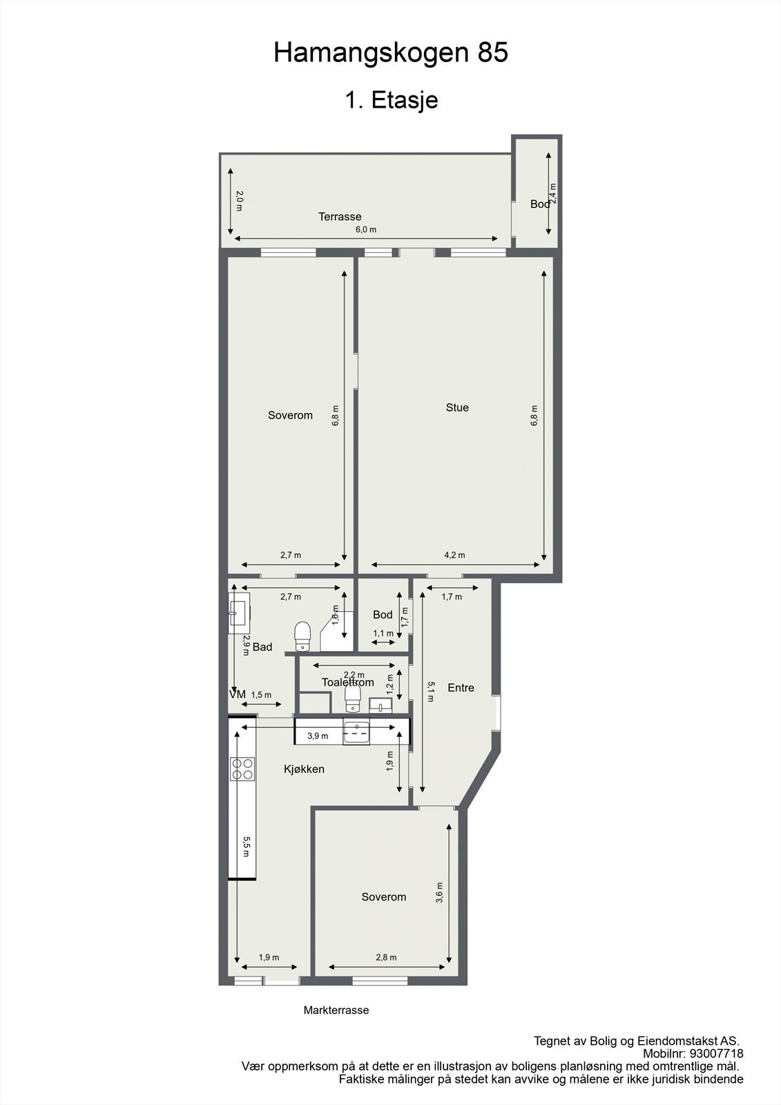
Velkommen til en lys og innbydende leilighet i 1. etasje med 2 soverom, stue, kjøkken, bad og separat toalettrom. Fra stuen er det utgang til en 12 kvm terrasse med gode solforhold og egen lagringsbod. Leiligheten har også kjellerbod og parkeringsplass i felles garasje, samt oppgraderte overflater og skyvedørsgarderober. Beliggenheten er svært attraktiv kort gangavstand til Sandvika sentrum, kollektivtransport, sjøen og flotte turmuligheter. Området er barnevennlig, rolig og trygt, med nærliggende skoler, barnehager og servicetilbud.
- Lys og innbydende 3-roms med god planløsning
- 2 gode soverom, bad og separat wc-rom
- Stor terrasse med gode solforhold
- Varmekabler på kjøkken, i gang, stue og bad, samt folievarme på gjesterom
- Parkering
-Kort vei til Sandvika sentrum og kollektivt
- Lys og innbydende 3-roms med god planløsning
- 2 gode soverom, bad og separat wc-rom
- Stor terrasse med gode solforhold
- Varmekabler på kjøkken, i gang, stue og bad, samt folievarme på gjesterom
- Parkering
-Kort vei til Sandvika sentrum og kollektivt
NB: Knappen for å vise hele beskrivelsen har kun en visuell effekt.
NB: Knappen for å vise hele beskrivelsen har kun en visuell effekt.
Salgsoppgaven beskriver vesentlig og lovpålagt informasjon om eiendommen
Se komplett salgsoppgaveNyttige lenker
Nærområdet
Nordvik Bærum
Annonseinformasjon
| FINN-kode | 452788400 |
|---|---|
| Sist endret | 01. mars 2026 01:03 |
| Referanse | 56-0414/25 |
Annonsene kan være mangelfulle i forhold til lovpålagt opplysningsplikt. Før bindende avtale inngås oppfordres interessenter til å innhente komplett informasjon fra meglerforetaket, selger eller utleier.






















































