Bildegalleri

Christian Brodshaug v/Eie Jessheim har gleden av å presentere Bekkefaret 35! Fotografert av: Øystein Orderud v/EFKT
Jessheim
Familiebolig over to plan på stor, usjenert tomt | Innerst i blindveg | Egen inngang til kjeller | 3 km til Jessheim
Prisantydning3 990 000 kr
Nøkkelinfo
- Boligtype
- Enebolig
- Eieform
- Eier (Selveier)
- Soverom
- 2
- Internt bruksareal
- 157 m² (BRA-i)
- Bruksareal
- 191 m²
- Eksternt bruksareal
- 34 m² (BRA-e)
- Balkong/Terrasse
- 39 m² (TBA)
- Byggeår
- 1965
- Energimerking
- E - Gul
- Tomteareal
- 1 358 m² (eiet)
Fasiliteter
Barnevennlig
Balkong/Terrasse
Garasje/P-plass
Kabel-TV
Offentlig vann/kloakk
Ingen gjenboere
Peis/Ildsted
Turterreng
Bredbåndstilknytning
Rolig
Om boligen
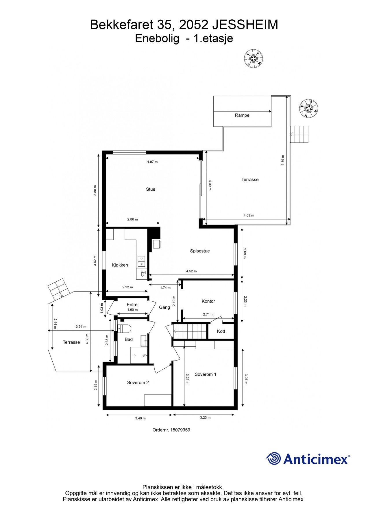
Bekkefaret 35 er en enebolig over to plan med attraktiv og fleksibel planløsning. I hovedetasjen finner du gang, bad, kjøkken og romslig stue med god plass til både spise- og sofagruppe. Videre inneholder etasjen to soverom samt kontor (opprinnelig soverom). Kontoret kan med enkle grep tilbakestilles til soverom nr 3.
Fra stuen er det utgang til en stor, vestvendt terrasse uten innsyn, hvor du kan nyte solrike ettermiddager og rolige kvelder i private omgivelser.
Kjelleren også egen utvendig inngang. Dette gir gode muligheter for tilpasning til egen bruk, eksempelvis hybel. Kjelleren benyttes i dag til kjellerstue, bodrom og vaskerom.
Eiendommen ligger innerst i blindvei på en romslig tomt på ca. 1300 kvm - landlig og fredelig, men samtidig sentralt. Garasje med tilhørende bod gir gode oppbevaringsmuligheter.
Fra stuen er det utgang til en stor, vestvendt terrasse uten innsyn, hvor du kan nyte solrike ettermiddager og rolige kvelder i private omgivelser.
Kjelleren også egen utvendig inngang. Dette gir gode muligheter for tilpasning til egen bruk, eksempelvis hybel. Kjelleren benyttes i dag til kjellerstue, bodrom og vaskerom.
Eiendommen ligger innerst i blindvei på en romslig tomt på ca. 1300 kvm - landlig og fredelig, men samtidig sentralt. Garasje med tilhørende bod gir gode oppbevaringsmuligheter.
NB: Knappen for å vise hele beskrivelsen har kun en visuell effekt.
NB: Knappen for å vise hele beskrivelsen har kun en visuell effekt.
Salgsoppgaven beskriver vesentlig og lovpålagt informasjon om eiendommen
Se komplett salgsoppgaveNærområdet
EIE eiendomsmegling Jessheim
Annonseinformasjon
| FINN-kode | 452784796 |
|---|---|
| Sist endret | 27. feb. 2026 17:45 |
| Referanse | 20260031 |
Annonsene kan være mangelfulle i forhold til lovpålagt opplysningsplikt. Før bindende avtale inngås oppfordres interessenter til å innhente komplett informasjon fra meglerforetaket, selger eller utleier.



































