Bildegalleri

Velkommen til Fiolveien 33D
Flateby
Lys og luftig 3(4)-roms selveier| To balkonger| Utsikt mot Øyeren| Garasje og oppstillingsplass| Barnevennlig
Prisantydning3 800 000 kr
Nøkkelinfo
- Boligtype
- Leilighet
- Eieform
- Eier (Selveier)
- Soverom
- 2
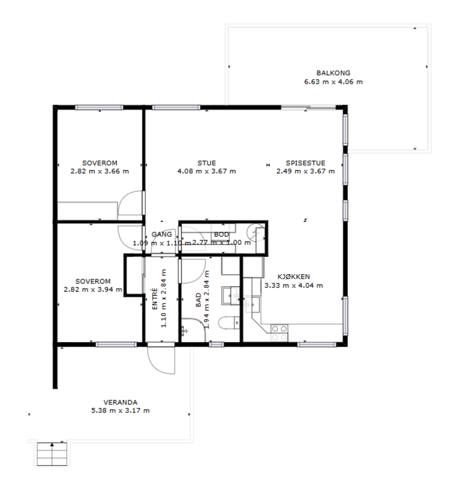
- Internt bruksareal
- 74 m² (BRA-i)
- Bruksareal
- 79 m²
- Eksternt bruksareal
- 21 m² (BRA-e)
- Balkong/Terrasse
- 39 m² (TBA)
- Etasje
- 2
- Byggeår
- 2006
- Energimerking
- C - Lysegrønn
- Rom
- 3
- Tomteareal
- 1 096 m² (eiet)
Fasiliteter
Barnevennlig
Balkong/Terrasse
Garasje/P-plass
Turterreng
Utsikt
Bredbåndstilknytning
Moderne
Rolig
Lademulighet
Visning
søndag, 08. mars
12:00 – 13:00
Velkommen til visning!
Alle våre visninger har påmelding. På denne måten sikrer vi at megler har god oversikt og tid til å imøtekomme alle interessenter på beste måte. Dette er veldig verdifullt for boligkjøpere og for oss. Det er enkelt å melde seg på, og du kan like enkelt melde deg av. Kontakt også gjerne megler i forkant av visning dersom du har spørsmål.
Om boligen
Velkommen til en luftig, lys og gjennomgående 3-roms (originalt 4-roms) med rolig og barnevennlig beliggenhet, godt tilbaketrukket fra støy. Her bor du med kort vei til skoler, barnehager, dagligvare, buss og flotte turområder.
Boligen byr på to solrike og romslige balkonger på hele 25 og 14 kvm. Fra den ene kan du nyte vakker utsikt mot Øyeren. Åpen stue- og kjøkkenløsning med særdeles god takhøyde og store vindusflater gir en luftig romfølelse. Dette er en leilighet som må sees!
Kort fortalt:
. To store, solrike balkonger
. Utsikt mot Øyeren
. Ekstra takhøyde i stue
. To soverom, originalt tre
. Varmepumpe
. Garasjeplass med lader + biloppstillingsplass
. To boder og loft
. Barnevennlig og rolig
. 5 min gange til bussholdeplass
Velkommen til visning!
Boligen byr på to solrike og romslige balkonger på hele 25 og 14 kvm. Fra den ene kan du nyte vakker utsikt mot Øyeren. Åpen stue- og kjøkkenløsning med særdeles god takhøyde og store vindusflater gir en luftig romfølelse. Dette er en leilighet som må sees!
Kort fortalt:
. To store, solrike balkonger
. Utsikt mot Øyeren
. Ekstra takhøyde i stue
. To soverom, originalt tre
. Varmepumpe
. Garasjeplass med lader + biloppstillingsplass
. To boder og loft
. Barnevennlig og rolig
. 5 min gange til bussholdeplass
Velkommen til visning!
NB: Knappen for å vise hele beskrivelsen har kun en visuell effekt.
NB: Knappen for å vise hele beskrivelsen har kun en visuell effekt.
Salgsoppgaven beskriver vesentlig og lovpålagt informasjon om eiendommen
Se komplett salgsoppgaveNyttige lenker
Nærområdet

PrivatMegleren Lillestrøm
Kun det beste på dine vegne
Annonseinformasjon
| FINN-kode | 452733049 |
|---|---|
| Sist endret | 26. feb. 2026 11:21 |
| Referanse | 24260046 |
Annonsene kan være mangelfulle i forhold til lovpålagt opplysningsplikt. Før bindende avtale inngås oppfordres interessenter til å innhente komplett informasjon fra meglerforetaket, selger eller utleier.
























