Bildegalleri

NBBO Eiendomsmegling v/Tomas Urbanik ønsker velkommen til visning i Lauritz Hervigsvei 95C!
Delikat og lekker 4-roms-Innglasset balkong-Bad 2021-Kjøkken 2021-Barnevennlig-Gode turmuligheter i skog og mark
Prisantydning2 290 000 kr
Nøkkelinfo
- Boligtype
- Leilighet
- Eieform
- Andel
- Soverom
- 3
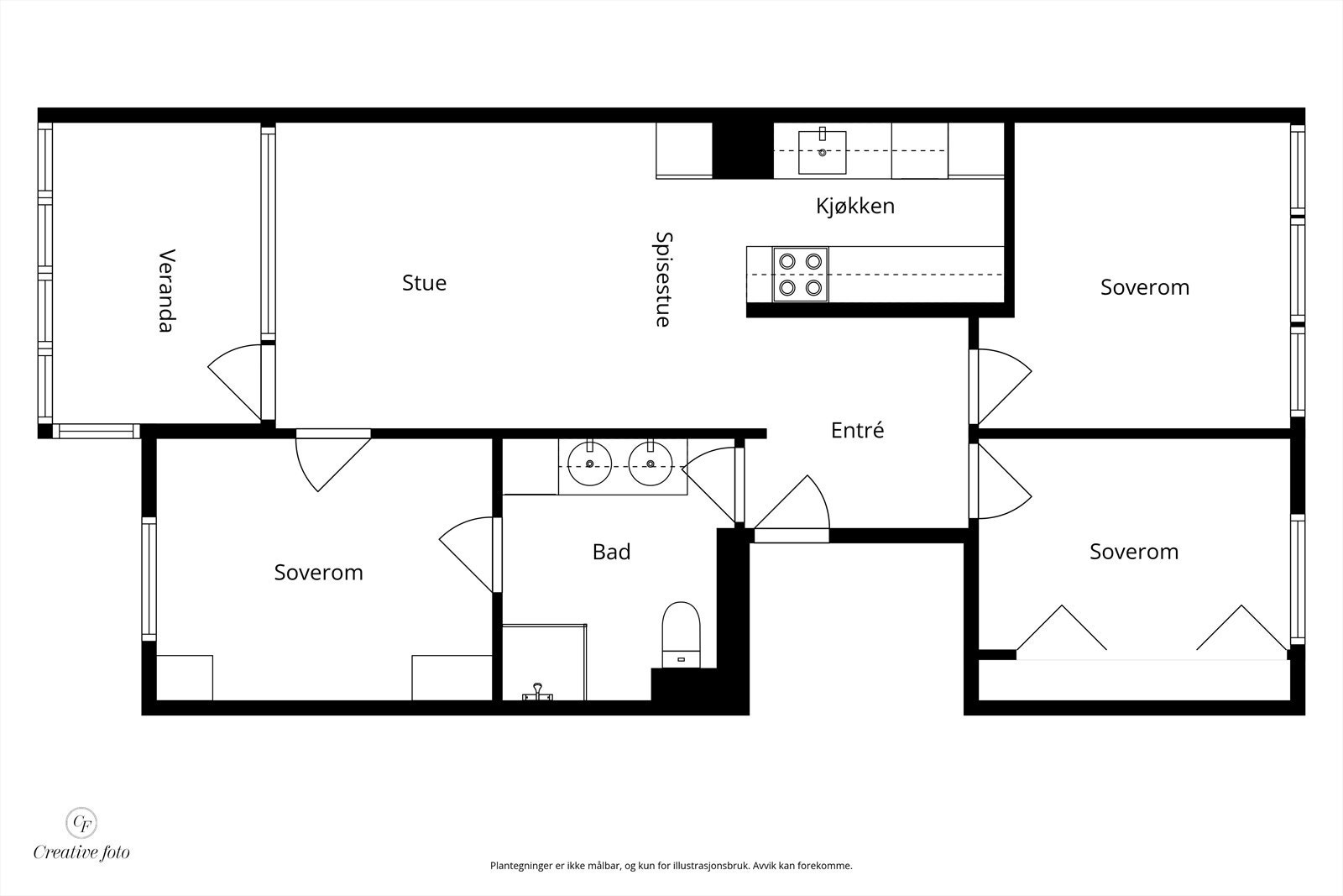
- Internt bruksareal
- 71 m² (BRA-i)
- Bruksareal
- 85 m²
- Eksternt bruksareal
- 5 m² (BRA-e)
- Innglasset balkong
- 9 m² (BRA-b)
- Etasje
- 1
- Byggeår
- 1967
- Energimerking
- D
- Rom
- 4
- Tomteareal
- 58 664 m² (eiet)
Fasiliteter
Balkong/Terrasse
Barnevennlig
Bredbåndstilknytning
Kabel-TV
Rolig
Sentralt
Utsikt
Turterreng
Om boligen
Velkommen til en lys og innflytningsklar 4-roms leilighet på attraktive Fjell i Drammen! Boligen har åpen løsning mellom stue og kjøkken som gir en luftig og sosial planløsning, perfekt for både hverdag og selskap. Stuen har store vindusflater som gir rikelig med naturlig lys, og direkte utgang til en romslig innglasset balkong på ca. 9 kvm, et flott ekstra oppholdsrom året rundt. Hovedsoverommet har plass til garderobeløsning og egen inngang til oppgradert bad/vaskerom, modernisert i 2021. Kjøkkenet fra Ikea (2021) funksjonelt og stilrent. Leiligheten har i tillegg tre ekstra soverom, praktisk gang/entré, samt boder i kjeller og matbod (totalt ca. 5 kvm) for ekstra oppbevaring. Boligen er godt vedlikeholdt, med moderne overflater og oppgraderinger etter behov. Velkommen til visning!
NB: Knappen for å vise hele beskrivelsen har kun en visuell effekt.
NB: Knappen for å vise hele beskrivelsen har kun en visuell effekt.
Salgsoppgaven beskriver vesentlig og lovpålagt informasjon om eiendommen
Se komplett salgsoppgaveNyttige lenker
Nærområdet
Nbbo Eiendomsmegling
Annonseinformasjon
| FINN-kode | 452706097 |
|---|---|
| Sist endret | 25. feb. 2026 15:39 |
| Referanse | GAR20.2628 |
Annonsene kan være mangelfulle i forhold til lovpålagt opplysningsplikt. Før bindende avtale inngås oppfordres interessenter til å innhente komplett informasjon fra meglerforetaket, selger eller utleier.





















