Bildegalleri

Velkommen til Myklandvegen 144! Foto: Aina Østebøvik Olsen
Unik familievennlig enebolig i blindgate i et barnevennlig boligfelt | Dobbel garasje | Skjermet beliggenhet
Prisantydning6 590 000 kr
Nøkkelinfo
- Boligtype
- Enebolig
- Eieform
- Eier (Selveier)
- Soverom
- 5
- Internt bruksareal
- 218 m² (BRA-i)
- Bruksareal
- 218 m²
- Balkong/Terrasse
- 21 m² (TBA)
- Etasje
- 3
- Byggeår
- 2009
- Energimerking
- C
- Tomteareal
- 831 m² (eiet)
Fasiliteter
Balkong/Terrasse
Barnevennlig
Bredbåndstilknytning
Garasje/P-plass
Hage
Kjæledyr tillatt
Offentlig vann/kloakk
Peis/Ildsted
Rolig
Sentralt
Utsikt
Turterreng
Lademulighet
Balansert ventilasjon
Visning
tirsdag, 03. mars
16:00 – 17:30
For at vår megler og selger skal kunne gi deg den beste oppfølgingen og kjøpsopplevelsen er det obligatorisk påmelding til alle våre visninger. Dersom ditt reserverte tidspunkt likevel ikke kan benyttes trenger vi beskjed så tidlig som mulig sånn at vi kan finne en alternativ løsning. Vi har alltid tid til deg. Visninger uten påmeldte deltagere avlyses.
VisningspåmeldingOm boligen
Enebolig med en attraktiv og populær beliggenhet på Vormedal. Familievennlig med kort avstand til skole og barnehage. Her bor du i ett rolig boligområde i blindgate med trivelige omgivelser.
En unik enebolig, som treffer kriteriene til de fleste. En bolig som gjør hverdagen med plasseringen enklere og et lekkert hus som virkelig har alt en trenger.
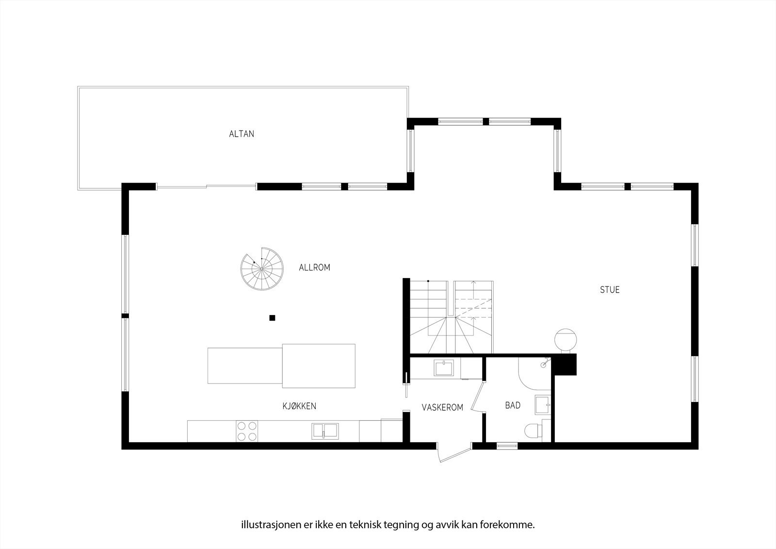
Boligen går over 3 plan og inneholder:
Første etasje: Gang, 3 soverom, bod under trapp, baderom, vaskerom og disponibelt rom som tidligere var garasjedel.
Hovedetasje: Stue, kjøkken, grovkjøkken med egen inngang og baderom.
Øverste etasje: Gang, toalettrom, 2 soverom og hems.
Boligen har en ekstremt kjekk garasje som er isolert med varmepumpe. Innredet med lofstue.
Velkommen til påmeldingsvisning!
En unik enebolig, som treffer kriteriene til de fleste. En bolig som gjør hverdagen med plasseringen enklere og et lekkert hus som virkelig har alt en trenger.
Boligen går over 3 plan og inneholder:
Første etasje: Gang, 3 soverom, bod under trapp, baderom, vaskerom og disponibelt rom som tidligere var garasjedel.
Hovedetasje: Stue, kjøkken, grovkjøkken med egen inngang og baderom.
Øverste etasje: Gang, toalettrom, 2 soverom og hems.
Boligen har en ekstremt kjekk garasje som er isolert med varmepumpe. Innredet med lofstue.
Velkommen til påmeldingsvisning!
NB: Knappen for å vise hele beskrivelsen har kun en visuell effekt.
NB: Knappen for å vise hele beskrivelsen har kun en visuell effekt.
Salgsoppgaven beskriver vesentlig og lovpålagt informasjon om eiendommen
Se komplett salgsoppgaveNyttige lenker
Nærområdet
Proaktiv Eiendomsmegling Haugesund
Alltid tid til deg
Annonseinformasjon
| FINN-kode | 452702393 |
|---|---|
| Sist endret | 25. feb. 2026 15:37 |
| Referanse | 1240260018 |
Annonsene kan være mangelfulle i forhold til lovpålagt opplysningsplikt. Før bindende avtale inngås oppfordres interessenter til å innhente komplett informasjon fra meglerforetaket, selger eller utleier.



































































