Bildegalleri

DNB Eiendom ved Malin Bruer har gleden av og presentere Hasselbakken 8!
Skedsmokorset
Koselig enebolig beliggende i et meget barnevennlig og attraktivt område | Hage med fine uteplasser og garasje
Prisantydning7 690 000 kr
Nøkkelinfo
- Boligtype
- Enebolig
- Eieform
- Eier (Selveier)
- Soverom
- 3
- Internt bruksareal
- 245 m² (BRA-i)
- Bruksareal
- 275 m ²
- Eksternt bruksareal
- 30 m² (BRA-e)
- Balkong/Terrasse
- 33 m² (TBA)
- Byggeår
- 1971
- Energimerking
- E - Oransje
- Rom
- 4
- Tomteareal
- 857 m² (eiet)
Fasiliteter
Balkong/Terrasse
Barnevennlig
Garasje/P-plass
Hage
Offentlig vann/kloakk
Peis/Ildsted
Sentralt
Turterreng
Visning
søndag, 08. mars
13:30 – 14:30
Velkommen til visning! Meld deg på ved å trykke "visningspåmelding" i våre boligannonser. Visning med megler til stede vil ikke bli avholdt uten påmeldinger. Ta gjerne kontakt med megler i forkant av visningen om du har spørsmål.
VisningspåmeldingOm boligen
Velkommen til Hasselbakken 8, beliggende i et meget barnevennlig og attraktivt boligområde på Skedsmokorset i Lillestrøm. Området byr på flotte turområder, gode fasiliteter for sport og lek, samt enkel tilgang til daglige servicetilbud. Med direktebusser til både Oslo sentrum og Gardermoen, er pendling i hverdagen enkelt.
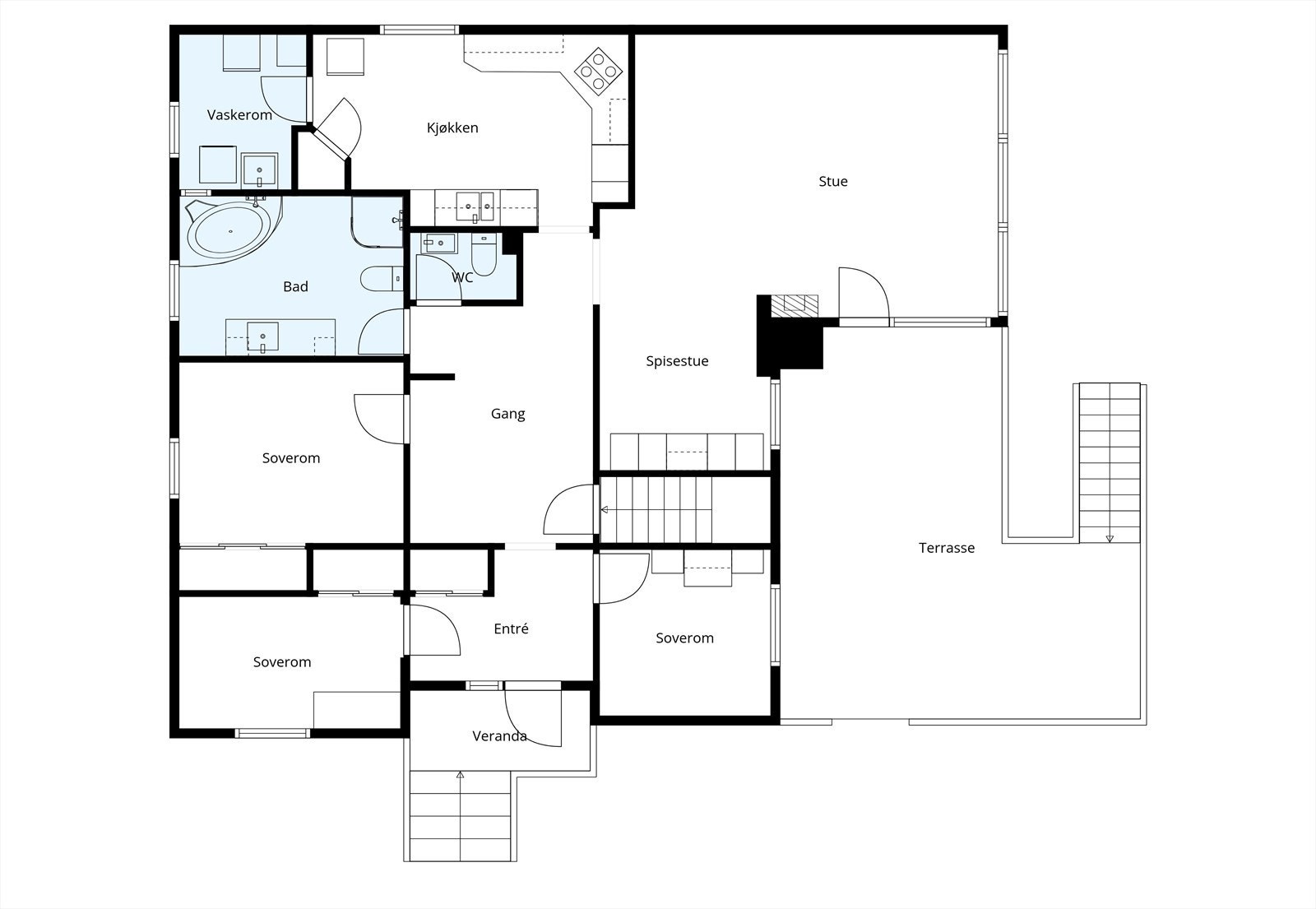
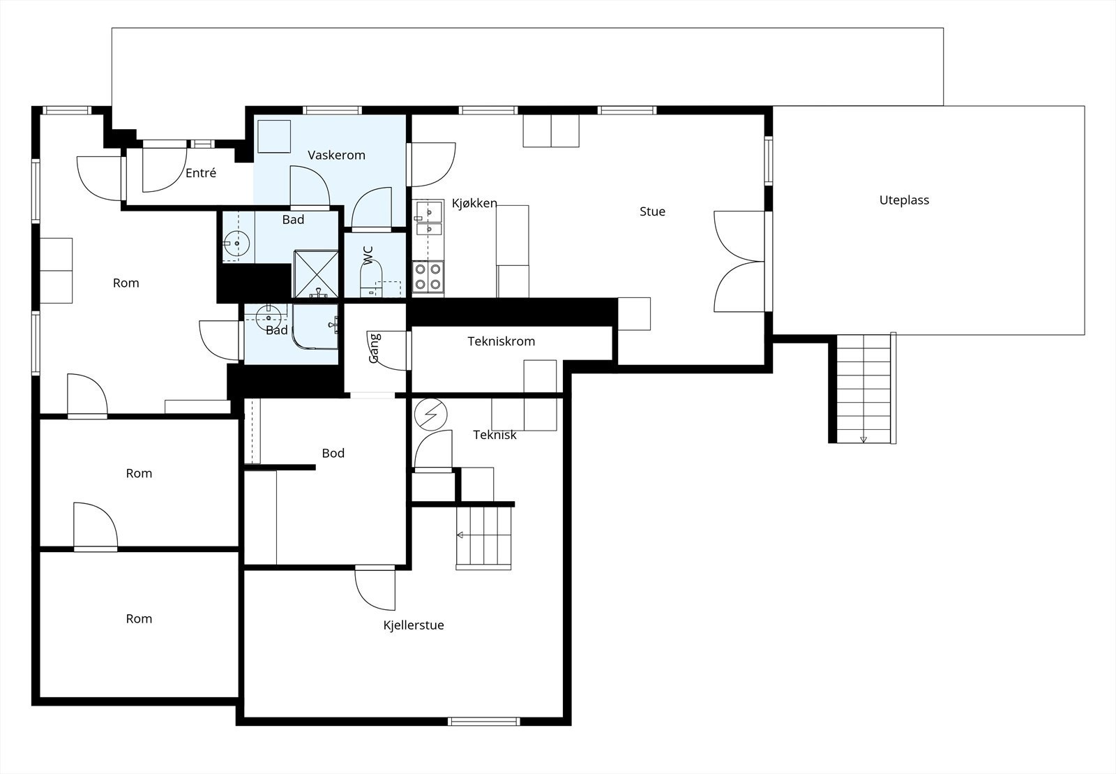
Boligen er oppført i 1971 og senere tilbygd i 1988 og har et bruksareal på ca. 245 kvm. Planløsningen i 1. etasje inkluderer entré, stue, kjøkken, bad, vaskerom og tre soverom. Deler av kjeller er ikke godkjent, se pkt. ferdigattest i salgsoppgaven.
Det er flere boder, hage og fine uteplasser samt parkering på egen tomt og i garasje.
Velkommen!
Boligen er oppført i 1971 og senere tilbygd i 1988 og har et bruksareal på ca. 245 kvm. Planløsningen i 1. etasje inkluderer entré, stue, kjøkken, bad, vaskerom og tre soverom. Deler av kjeller er ikke godkjent, se pkt. ferdigattest i salgsoppgaven.
Det er flere boder, hage og fine uteplasser samt parkering på egen tomt og i garasje.
Velkommen!
NB: Knappen for å vise hele beskrivelsen har kun en visuell effekt.
NB: Knappen for å vise hele beskrivelsen har kun en visuell effekt.
Salgsoppgaven beskriver vesentlig og lovpålagt informasjon om eiendommen
Se komplett salgsoppgaveNyttige lenker
Nærområdet
DNB Eiendom AS
Verdifulle salg
Annonseinformasjon
| FINN-kode | 452701265 |
|---|---|
| Sist endret | 01. mars 2026 17:46 |
| Referanse | 303250272 |
Annonsene kan være mangelfulle i forhold til lovpålagt opplysningsplikt. Før bindende avtale inngås oppfordres interessenter til å innhente komplett informasjon fra meglerforetaket, selger eller utleier.











































