Bildegalleri

Stephan Erichsen v/Proaktiv Eiendomsmegling Sola har gleden av å presentere Skadberg Allé 13C for salg.
Skadberg
Flott 3-roms leilighet med god planløsning og attraktiv beliggenhet - Skjermet terrasse med gode solforhold - Parkering
Prisantydning3 550 000 kr
Nøkkelinfo
- Boligtype
- Leilighet
- Eieform
- Eier (Selveier)
- Soverom
- 2
- Internt bruksareal
- 56 m² (BRA-i)
- Bruksareal
- 61 m²
- Eksternt bruksareal
- 5 m² (BRA-e)
- Balkong/Terrasse
- 18 m² (TBA)
- Etasje
- 1
- Byggeår
- 2007
- Energimerking
- C
- Rom
- 3
- Tomteareal
- 855 m² (eiet)
Fasiliteter
Balkong/Terrasse
Barnevennlig
Bredbåndstilknytning
Garasje/P-plass
Hage
Kabel-TV
Parkett
Rolig
Sentralt
Turterreng
Visning
onsdag, 04. mars
16:30 – 17:30
For at vår megler og selger skal kunne gi deg den beste oppfølgingen og kjøpsopplevelsen er det obligatorisk påmelding til alle våre visninger. Dersom ditt reserverte tidspunkt likevel ikke kan benyttes trenger vi beskjed så tidlig som mulig sånn at vi kan finne en alternativ løsning. Vi har alltid tid til deg. Visninger uten påmeldte deltagere avlyses.
VisningspåmeldingOm boligen
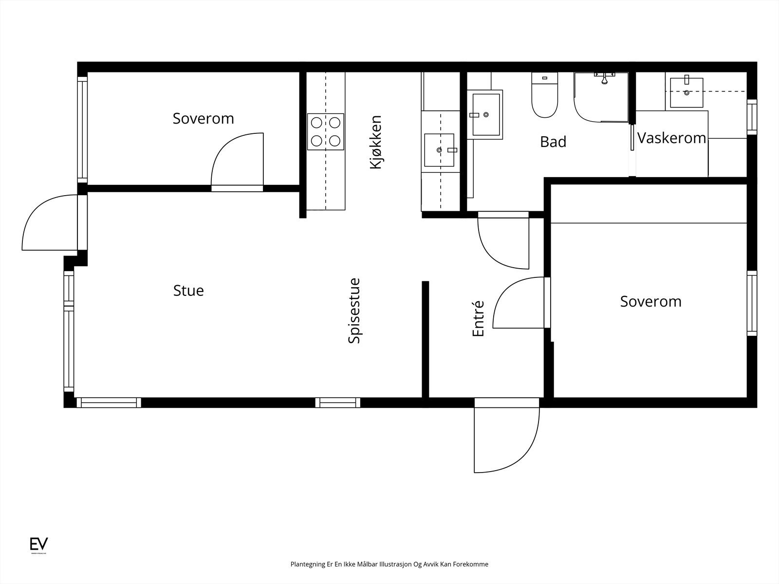
Innholdsrik 3-roms leilighet beliggende på Skadberg i Sola kommune, skjermet fra trafikk og støy. Her bor du sentralt, men likevel tilbaketrukket.
Boligen befinner seg i et barnevennlig og veletablert boligområde med nærhet til det man måtte trenge i hverdagen for å trives i lang tid.
Her får du en gjennomført bolig med god planløsning, funksjonelle løsninger og pent opparbeidede uteområder.
Enheten disponerer egen utvendig bod og parkeringsplass med infrastruktur for å montere elbil lader.
1. etg:
- Lys og innbydende entré
- Åpen stue- og kjøkkenløsning med god plass til spisebord
- Solrik og skjermet terrasse
- Flott kjøkken. Oppvaskmaskin er ny i 2026
- 2 gode soverom
- Helfliset bad med vannbåren varme i gulv
- Praktisk vaskero
Boligen befinner seg i et barnevennlig og veletablert boligområde med nærhet til det man måtte trenge i hverdagen for å trives i lang tid.
Her får du en gjennomført bolig med god planløsning, funksjonelle løsninger og pent opparbeidede uteområder.
Enheten disponerer egen utvendig bod og parkeringsplass med infrastruktur for å montere elbil lader.
1. etg:
- Lys og innbydende entré
- Åpen stue- og kjøkkenløsning med god plass til spisebord
- Solrik og skjermet terrasse
- Flott kjøkken. Oppvaskmaskin er ny i 2026
- 2 gode soverom
- Helfliset bad med vannbåren varme i gulv
- Praktisk vaskero
NB: Knappen for å vise hele beskrivelsen har kun en visuell effekt.
NB: Knappen for å vise hele beskrivelsen har kun en visuell effekt.
Salgsoppgaven beskriver vesentlig og lovpålagt informasjon om eiendommen
Se komplett salgsoppgaveNyttige lenker
Nærområdet
Proaktiv Eiendomsmegling Sola
Alltid tid til deg
Annonseinformasjon
| FINN-kode | 452698501 |
|---|---|
| Sist endret | 25. feb. 2026 14:50 |
| Referanse | 1220260061 |
Annonsene kan være mangelfulle i forhold til lovpålagt opplysningsplikt. Før bindende avtale inngås oppfordres interessenter til å innhente komplett informasjon fra meglerforetaket, selger eller utleier.










































