Bildegalleri

Velkommen til Skjetnemarkvegen 27 D!
SJETNEMARKA
Flott og innholdsrikt rekkehus m/endebeliggenhet -Skjermet og barnevennlig boområde -Garasje m/lader -Flotte utearealer
Prisantydning4 390 000 kr
Nøkkelinfo
- Boligtype
- Rekkehus
- Eieform
- Eier (Selveier)
- Soverom
- 3
- Internt bruksareal
- 128 m² (BRA-i)
- Bruksareal
- 157 m²
- Eksternt bruksareal
- 29 m² (BRA-e)
- Balkong/Terrasse
- 42 m² (TBA)
- Etasje
- 2
- Byggeår
- 1968
- Energimerking
- F - Oransje
- Rom
- 4
- Tomteareal
- 277 m² (eiet)
Fasiliteter
Balkong/Terrasse
Barnevennlig
Bredbåndstilknytning
Garasje/P-plass
Hage
Kjæledyr tillatt
Ingen gjenboere
Kabel-TV
Offentlig vann/kloakk
Parkett
Peis/Ildsted
Utsikt
Turterreng
Lademulighet
Om boligen
Velkommen til Skjetnemarkvegen 27D -Et flott og innholdsrikt rekkehus med god planløsning og attraktiv beliggenhet i et barnevennlig og solrikt boligområde i Sjetnemarka. Her bor du nært barnehage, skole og dagligvare, samt en kort kjøretur til Tiller med et bredt utvalg av butikker og servicetilbud.
Nevneverdige kvaliteter:
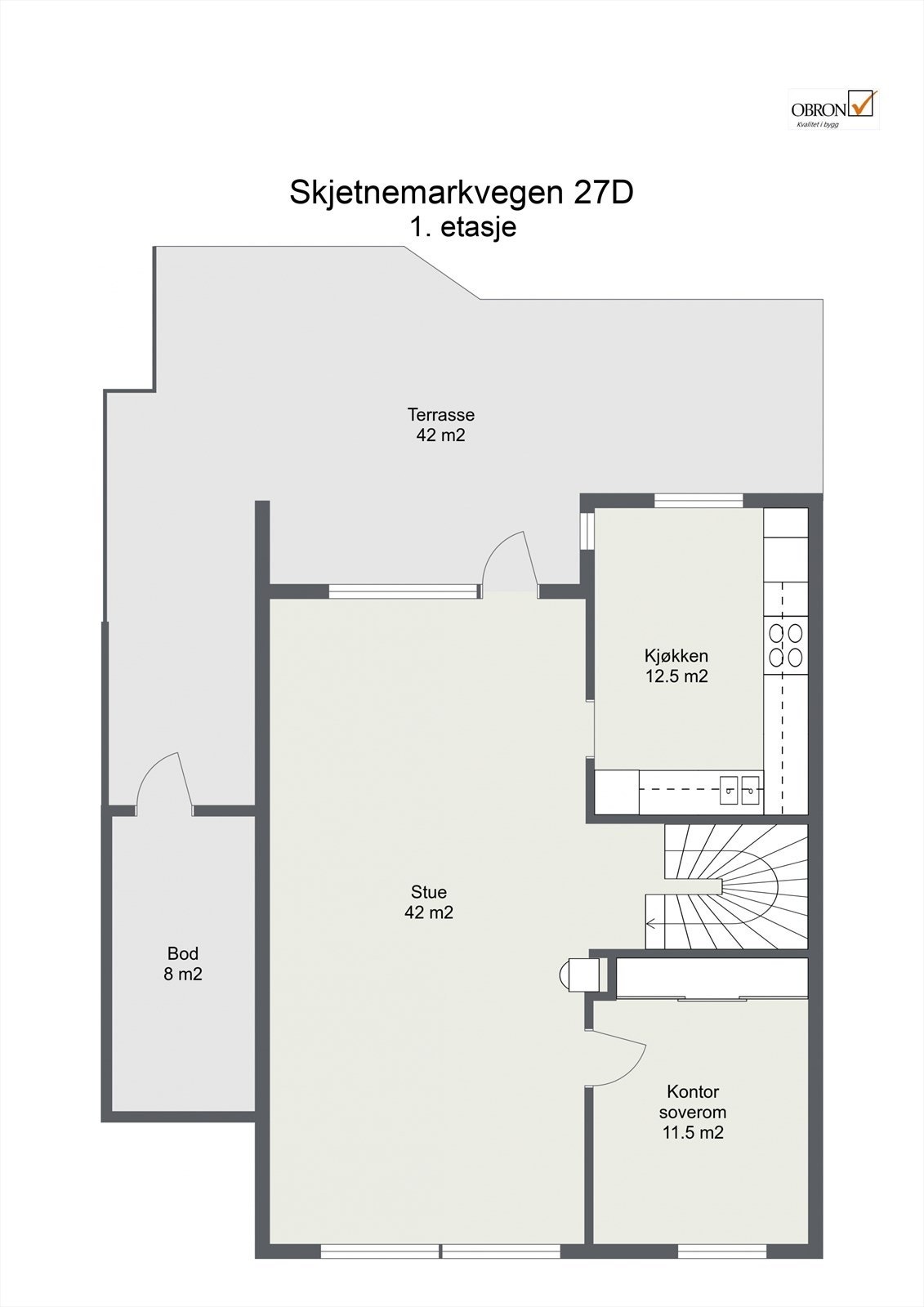
-Innholdsrikt og flott enderekkehus på 157 kvm med gjennomgående pen standard.
-Skjermet, solrik og barnevennlig beliggenhet.
-God og praktisk planløsning over 2 plan med store oppholdsrom.
-Nydelig utsikt fra stuen.
-Vedfyring.
-Nydelig hage og solrike uteplasser.
-Flott og velholdt bad og kjøkken fra 2009.
-Garasje samt parkering på oppstillingsplass foran.
-Kort vei til skole, butikk, marka og shopping.
Velkommen til en hyggelig visning!
Nevneverdige kvaliteter:
-Innholdsrikt og flott enderekkehus på 157 kvm med gjennomgående pen standard.
-Skjermet, solrik og barnevennlig beliggenhet.
-God og praktisk planløsning over 2 plan med store oppholdsrom.
-Nydelig utsikt fra stuen.
-Vedfyring.
-Nydelig hage og solrike uteplasser.
-Flott og velholdt bad og kjøkken fra 2009.
-Garasje samt parkering på oppstillingsplass foran.
-Kort vei til skole, butikk, marka og shopping.
Velkommen til en hyggelig visning!
NB: Knappen for å vise hele beskrivelsen har kun en visuell effekt.
NB: Knappen for å vise hele beskrivelsen har kun en visuell effekt.
Salgsoppgaven beskriver vesentlig og lovpålagt informasjon om eiendommen
Se komplett salgsoppgaveNyttige lenker
Nærområdet
DNB Eiendom AS
Verdifulle salg
Annonseinformasjon
| FINN-kode | 452693705 |
|---|---|
| Sist endret | 26. feb. 2026 18:09 |
| Referanse | 823260072 |
Annonsene kan være mangelfulle i forhold til lovpålagt opplysningsplikt. Før bindende avtale inngås oppfordres interessenter til å innhente komplett informasjon fra meglerforetaket, selger eller utleier.












































