Bildegalleri

Velkommen til Marie Føreids vei 8A!
Våland
Sjelden mulighet på Våland * Enderekkehus selveier med hage *Renoveringsobjekt med stort potensial
Prisantydning3 500 000 kr
Nøkkelinfo
- Boligtype
- Rekkehus
- Eieform
- Eier (Selveier)
- Soverom
- 2
- Internt bruksareal
- 122 m² (BRA-i)
- Bruksareal
- 122 m²
- Balkong/Terrasse
- 35 m² (TBA)
- Byggeår
- 1952
- Energimerking
- G - Rød
- Tomteareal
- 636 m² (eiet)
Fasiliteter
Barnevennlig
Balkong/Terrasse
Kabel-TV
Offentlig vann/kloakk
Peis/Ildsted
Utsikt
Bredbåndstilknytning
Visning
mandag, 09. mars
16:00 – 17:00
Velkommen til visning!
Alle våre visninger har påmelding. På denne måten sikrer vi at megler har god oversikt og tid til å imøtekomme alle interessenter på beste måte. Dette er veldig verdifullt for boligkjøpere og for oss. Det er enkelt å melde seg på, og du kan like enkelt melde deg av. Kontakt også gjerne megler i forkant av visning dersom du har spørsmål.
Om boligen
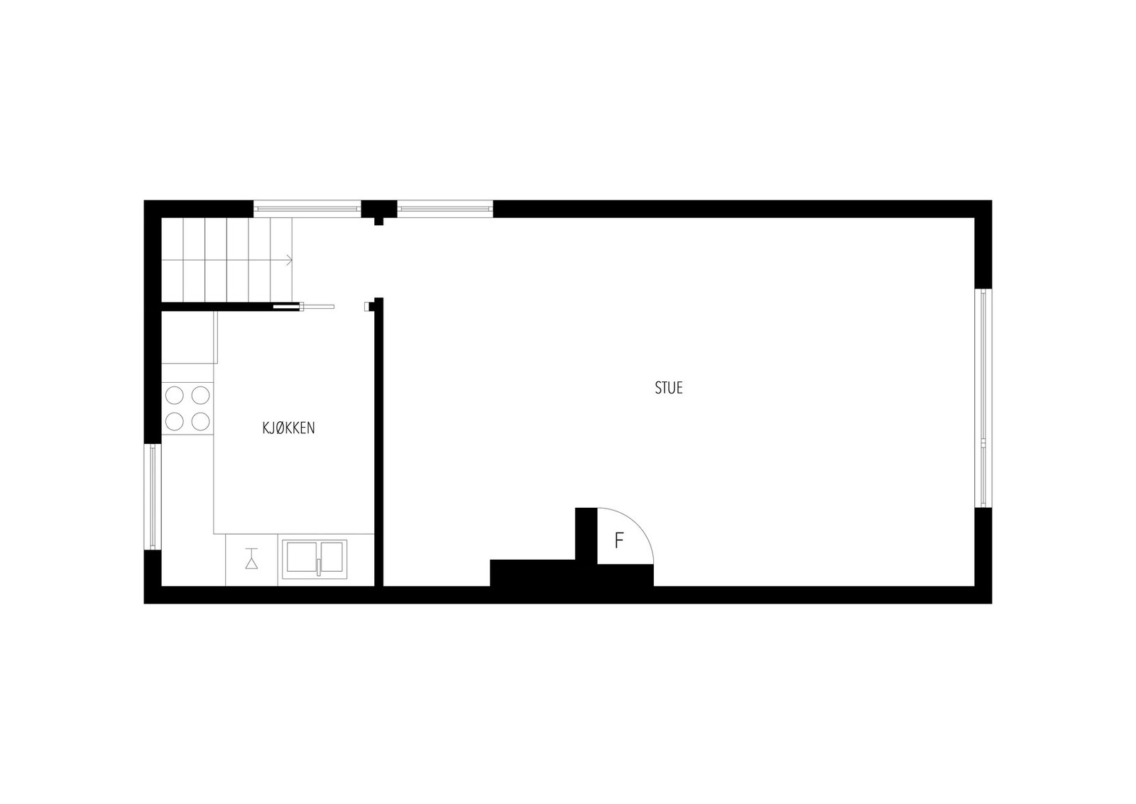
Enderekkehus over tre plan med attraktiv og sentral beliggenhet. Boligen har BRA 122 m² og fremstår som et renoveringsobjekt med betydelig utviklingsmuligheter. Her får du en bolig fra 1952 med god planløsning, vedovn, varmepumpe fra 2022 og treplatting på ca 35 m². Kjeller med bodarealer og vaskerom av eldre standard. Felles tomt og soneparkering.
2. etasje: Stue med vedovn og kjøkken
1. etasje: Entré, gang, bad og 2/3 soverom
Underetasje: Vaskerom og flere boder/kjellerrom
En spennende mulighet for deg som ønsker å skape noe selv.
2. etasje: Stue med vedovn og kjøkken
1. etasje: Entré, gang, bad og 2/3 soverom
Underetasje: Vaskerom og flere boder/kjellerrom
En spennende mulighet for deg som ønsker å skape noe selv.
NB: Knappen for å vise hele beskrivelsen har kun en visuell effekt.
NB: Knappen for å vise hele beskrivelsen har kun en visuell effekt.
Salgsoppgaven beskriver vesentlig og lovpålagt informasjon om eiendommen
Se komplett salgsoppgaveNyttige lenker
Nærområdet

PrivatMegleren Haferkamp & Partnere
Kun det beste på dine vegne
Annonseinformasjon
| FINN-kode | 452680530 |
|---|---|
| Sist endret | 26. feb. 2026 16:42 |
| Referanse | 301260043 |
Annonsene kan være mangelfulle i forhold til lovpålagt opplysningsplikt. Før bindende avtale inngås oppfordres interessenter til å innhente komplett informasjon fra meglerforetaket, selger eller utleier.























