Bildegalleri

Eiendomsmegler Krogsveen v/ Jan Robert Ottesen har gleden av å ønske velkommen til Rødbergveien 65!
TONSENHAGEN
Hyggelig 3R med solrik uteplass på 20kvm. Moderniseringsbehov. Frodig og skjermet. Parkeringsplass. Nærhet til marka.
Prisantydning4 980 000 kr
Nøkkelinfo
- Boligtype
- Leilighet
- Eieform
- Andel
- Soverom
- 2
- Internt bruksareal
- 67 m² (BRA-i)
- Bruksareal
- 75 m²
- Eksternt bruksareal
- 8 m² (BRA-e)
- Balkong/Terrasse
- 20 m² (TBA)
- Etasje
- 1
- Byggeår
- 1971
- Energimerking
- D - Gul
- Rom
- 3
- Tomteareal
- 45 688 m² (eiet)
Fasiliteter
Balkong/Terrasse
Barnevennlig
Bredbåndstilknytning
Fellesvaskeri
Garasje/P-plass
Kjæledyr tillatt
Kabel-TV
Offentlig vann/kloakk
Parkett
Rolig
Sentralt
Vaktmester-/vektertjeneste
Turterreng
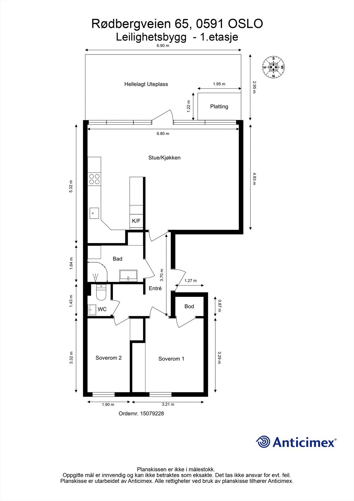
Om boligen
Boligen er beliggende i et attraktivt, rolig og svært barnevennlig boligområde på populære Tonsenhagen, omgitt av store grøntarealer tilknyttet borettslaget. Her bor du med umiddelbar nærhet til marka og dens mange turmuligheter, samt bussforbindelser hele døgnet med gangavstand. Det er kun et par minutters gange til barnehage hvor beboere i borettslaget har fortrinnsrett.
- Svært arealeffektiv leilighet med frodig utsikt og lite innsyn
- Boligen har behov for modernisering for å møte dagens krav til standard
- Felles sportsbod samt barnevognsbod ved inngangspartiet
- Parkeringsplass medfølger
- Skjermet uteplass på 20 kvm med frodig utsikt
- 2 boder på hhv. 3 og 5 kvm
- Kort vei til Kiwi og Linderud senter
NB: Knappen for å vise hele beskrivelsen har kun en visuell effekt.
NB: Knappen for å vise hele beskrivelsen har kun en visuell effekt.
Salgsoppgaven beskriver vesentlig og lovpålagt informasjon om eiendommen
Se komplett salgsoppgaveNyttige lenker
Nærområdet
Krogsveen Årvoll
Verdien av en god megler.
Annonseinformasjon
| FINN-kode | 452679978 |
|---|---|
| Sist endret | 01. mars 2026 10:05 |
| Referanse | KR39.2616 |
Annonsene kan være mangelfulle i forhold til lovpålagt opplysningsplikt. Før bindende avtale inngås oppfordres interessenter til å innhente komplett informasjon fra meglerforetaket, selger eller utleier.




















































