Bildegalleri

Velkommen til Skjeggerødveien 25A! Fotograf: Maciej Krawczyk.
Andebu
Lys og velholdt leilighet fra 2018 med vestvendt terrasse, inngjerdet hage og flott utsikt og sol til ca kl 22.
Prisantydning3 200 000 kr
Nøkkelinfo
- Boligtype
- Leilighet
- Eieform
- Eier (Selveier)
- Soverom
- 2
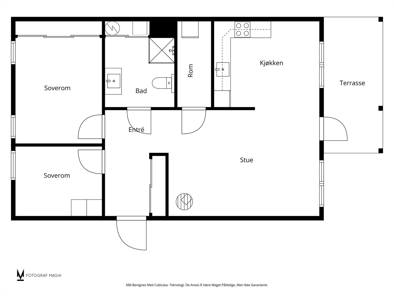
- Internt bruksareal
- 78 m² (BRA-i)
- Bruksareal
- 83 m²
- Eksternt bruksareal
- 5 m² (BRA-e)
- Balkong/Terrasse
- 10 m² (TBA)
- Etasje
- 1
- Byggeår
- 2018
- Energimerking
- B
- Rom
- 3
- Tomteareal
- 6 270 m² (eiet)
Fasiliteter
Balkong/Terrasse
Barnevennlig
Garasje/P-plass
Hage
Kjæledyr tillatt
Ingen gjenboere
Offentlig vann/kloakk
Parkett
Peis/Ildsted
Rolig
Sentralt
Utsikt
Turterreng
Lademulighet
Balansert ventilasjon
Om boligen
Velkommen til Skjeggerødveien 25A!
Gjennomgående pen og svært velstelt leilighet fra 2018 med minimalt av bruksslitasje.
Leiligheten ligger fint til på høyden med flott utsikt mot Skjeggerødtunet, Skjeggerødtoppen, Skørsåsen og Vetan. Romslig entré med stor skyvedørsgarderobe. To gode soverom perfekt med ekstra rom som gjesterom eller kontor. Lys og romslig stue med vestvendte vinduer og vedovn som varmer raskt.
Meget pent kjøkken med oppgradert innredning i grå fronter og integrerte hvitevarer. Stilrent, flislagt bad med varmekabler og opplegg til vaskemaskin. Utgang fra stue til vestvendt terrasse på ca. 10 kvm med svært gode solforhold, samt inngjerdet, pent opparbeidet hage.
Velkommen til denne lettstelte og praktiske leiligheten, sentralt i Andebu!
Gjennomgående pen og svært velstelt leilighet fra 2018 med minimalt av bruksslitasje.
Leiligheten ligger fint til på høyden med flott utsikt mot Skjeggerødtunet, Skjeggerødtoppen, Skørsåsen og Vetan. Romslig entré med stor skyvedørsgarderobe. To gode soverom perfekt med ekstra rom som gjesterom eller kontor. Lys og romslig stue med vestvendte vinduer og vedovn som varmer raskt.
Meget pent kjøkken med oppgradert innredning i grå fronter og integrerte hvitevarer. Stilrent, flislagt bad med varmekabler og opplegg til vaskemaskin. Utgang fra stue til vestvendt terrasse på ca. 10 kvm med svært gode solforhold, samt inngjerdet, pent opparbeidet hage.
Velkommen til denne lettstelte og praktiske leiligheten, sentralt i Andebu!
NB: Knappen for å vise hele beskrivelsen har kun en visuell effekt.
NB: Knappen for å vise hele beskrivelsen har kun en visuell effekt.
Salgsoppgaven beskriver vesentlig og lovpålagt informasjon om eiendommen
Se komplett salgsoppgaveNærområdet
Aktiv Sandefjord og Andebu
Annonseinformasjon
| FINN-kode | 452676293 |
|---|---|
| Sist endret | 26. feb. 2026 15:40 |
| Referanse | 1311260024 |
Annonsene kan være mangelfulle i forhold til lovpålagt opplysningsplikt. Før bindende avtale inngås oppfordres interessenter til å innhente komplett informasjon fra meglerforetaket, selger eller utleier.

















































