Bildegalleri

Velkommen til Borchgrevinks Gate 13! Foto: EFKT. Fotograf: Pål Godager
Ajer
AJER |Oppgradert enebolig | Stor terrasse med gode solforhold | Mjøs-gløtt | Carport
Prisantydning4 800 000 kr
Nøkkelinfo
- Boligtype
- Enebolig
- Eieform
- Eier (Selveier)
- Soverom
- 3
- Internt bruksareal
- 149 m² (BRA-i)
- Bruksareal
- 171 m²
- Eksternt bruksareal
- 22 m² (BRA-e)
- Balkong/Terrasse
- 36 m² (TBA)
- Byggeår
- 1912
- Energimerking
- G - Oransje
- Tomteareal
- 943 m² (eiet)
Fasiliteter
Balkong/Terrasse
Barnevennlig
Garasje/P-plass
Hage
Offentlig vann/kloakk
Peis/Ildsted
Sentralt
Utsikt
Visning
mandag, 09. mars
16:30 – 17:30
Ønsker du å delta på visningen ber vi deg melde deg på slik at vi vet at du kommer. Da kan vi bistå alle best mulig og gi deg tiden du trenger på visningen. Ta gjerne kontakt med megler før visning hvis du har noen spørsmål. Velkommen!
VisningspåmeldingOm boligen
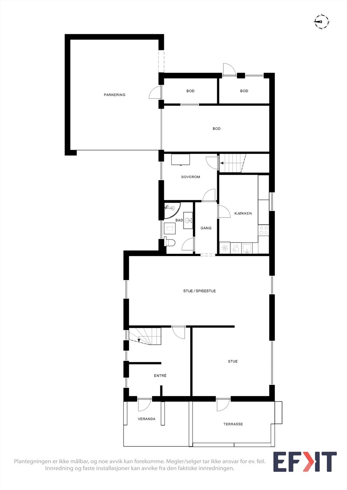
Velkommen til Borchgrevinks gate 13. En pen enebolig i et sentralt og attraktiv område. Boligen er oppført i 2 etasjer med kjeller og har en koselig og solrik hage som er pent opparbeidet med plen og beplantning. Eneboligen gir deg en romslig ramme for hverdagen, med god plass til familieliv og avslapning.
Høydepunkter:
- Modernisert enebolig med utvidet stue (2012) og nytt flislagt bad (2013)
- Entré/trapperom med fliser og varmekabler
- To romslige stuer med parkett og varme i gulv
- Hvitevarer medfølger
- Stor terrasse på 36 m² med Mjøs-gløtt
- Stor og åpen hage med robotgressklipper
- Carport fra 2022
- Rikelig lagringsplass i kjeller og uteboder
- Sentralt og barnevennlig beliggenhet nær skoler, barnehager og natur
- Fine tur og trenings muligheter i nærområde
Velkommen!
Høydepunkter:
- Modernisert enebolig med utvidet stue (2012) og nytt flislagt bad (2013)
- Entré/trapperom med fliser og varmekabler
- To romslige stuer med parkett og varme i gulv
- Hvitevarer medfølger
- Stor terrasse på 36 m² med Mjøs-gløtt
- Stor og åpen hage med robotgressklipper
- Carport fra 2022
- Rikelig lagringsplass i kjeller og uteboder
- Sentralt og barnevennlig beliggenhet nær skoler, barnehager og natur
- Fine tur og trenings muligheter i nærområde
Velkommen!
NB: Knappen for å vise hele beskrivelsen har kun en visuell effekt.
NB: Knappen for å vise hele beskrivelsen har kun en visuell effekt.
Salgsoppgaven beskriver vesentlig og lovpålagt informasjon om eiendommen
Se komplett salgsoppgaveNyttige lenker
Nærområdet
EiendomsMegler 1 Hamar
Vi loser deg trygt gjennom hele boligsalget
Annonseinformasjon
| FINN-kode | 452664033 |
|---|---|
| Sist endret | 26. feb. 2026 13:41 |
| Referanse | 6019260104 |
Annonsene kan være mangelfulle i forhold til lovpålagt opplysningsplikt. Før bindende avtale inngås oppfordres interessenter til å innhente komplett informasjon fra meglerforetaket, selger eller utleier.









































