Bildegalleri

Velkommen til Neset 1! Arkitekttegnet og innholdsrik enebolig med garasje, carport og lysthus. Fotograf: Kalle Punsvik
Beisfjord
VISN MAND 09.03 VED PÅMELD - Arkitekttegnet enebolig med fire soverom, garasje, carport, gode solforhold og nært skole
Prisantydning4 600 000 kr
Nøkkelinfo
- Boligtype
- Enebolig
- Eieform
- Eier (Selveier)
- Soverom
- 4
- Internt bruksareal
- 244 m² (BRA-i)
- Bruksareal
- 269 m²
- Eksternt bruksareal
- 25 m² (BRA-e)
- Balkong/Terrasse
- 35 m² (TBA)
- Byggeår
- 1981
- Energimerking
- D - Gul
- Rom
- 19
- Tomteareal
- 937 m² (eiet)
Fasiliteter
Barnevennlig
Balkong/Terrasse
Garasje/P-plass
Ingen gjenboere
Parkett
Peis/Ildsted
Turterreng
Utsikt
Bredbåndstilknytning
Moderne
Rolig
Balansert ventilasjon
Visning
mandag, 09. mars
18:00 – 19:00
Alle våre visninger har påmelding. Dette for at vi kan planlegge visningene best mulig, og ha god tid til de som kommer. Det er enkelt å melde seg på, og du kan like enkelt melde deg av. Visninger uten påmeldte deltakere kan bli avlyst.
Om boligen
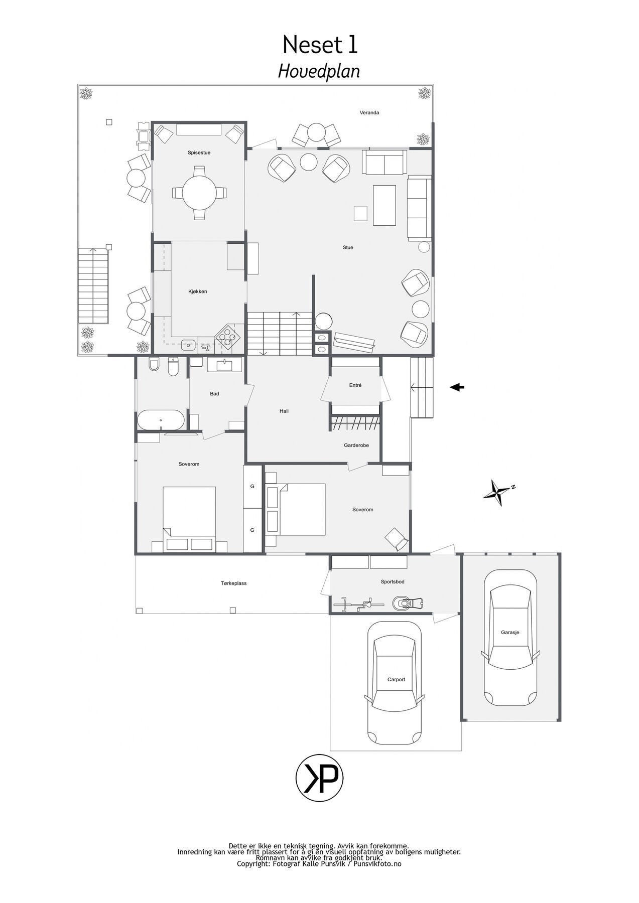
Velkommen til Neset 1!
Romslig og arkitekttegnet bolig med blant annet fire soverom, 2 bad, vaskerom, trimrom, stue, spisestue, kjøkken, trimrom, garasje og carport.
Boligen ligger fint til på Neset i Beisfjord med kort vei til skole, barnehage, badestrand, fotballbane, disc-golfbane, volleyballbane og fantastiske turområder.
Fra boligen er det flott utsikt og god solgang. Få også med deg at eiendommen er stor og flat - perfekt for barnefamilier.
Eiendommen fremstår som velholdt.
Velkommen på visning!
Romslig og arkitekttegnet bolig med blant annet fire soverom, 2 bad, vaskerom, trimrom, stue, spisestue, kjøkken, trimrom, garasje og carport.
Boligen ligger fint til på Neset i Beisfjord med kort vei til skole, barnehage, badestrand, fotballbane, disc-golfbane, volleyballbane og fantastiske turområder.
Fra boligen er det flott utsikt og god solgang. Få også med deg at eiendommen er stor og flat - perfekt for barnefamilier.
Eiendommen fremstår som velholdt.
Velkommen på visning!
NB: Knappen for å vise hele beskrivelsen har kun en visuell effekt.
NB: Knappen for å vise hele beskrivelsen har kun en visuell effekt.
Salgsoppgaven beskriver vesentlig og lovpålagt informasjon om eiendommen
Se komplett salgsoppgaveNyttige lenker
Nærområdet
EiendomsMegler 1 Narvik
Vi loser deg trygt gjennom hele boligsalget
Annonseinformasjon
| FINN-kode | 452648486 |
|---|---|
| Sist endret | 27. feb. 2026 14:08 |
| Referanse | 14250230 |
Annonsene kan være mangelfulle i forhold til lovpålagt opplysningsplikt. Før bindende avtale inngås oppfordres interessenter til å innhente komplett informasjon fra meglerforetaket, selger eller utleier.

































































