Bildegalleri

Velkommen til Firdavegen 4 - En sjelden mulighet av en eiendom: Meget tiltalende, stor og spennende funkisbolig med garasje, beliggende høyt og fritt i terrenget med vakker utsikt mot havet i vest.
Kvalsvik
Sjelden mulighet! Stor funkisbolig med vakker havutsikt - Høy standard - 3 etasjer - Takterrasse - Garasje m/lader
Prisantydning9 200 000 kr
Nøkkelinfo
- Boligtype
- Enebolig
- Eieform
- Eier (Selveier)
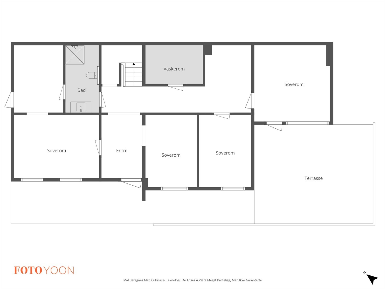
- Soverom
- 4
- Internt bruksareal
- 225 m² (BRA-i)
- Bruksareal
- 274 m²
- Eksternt bruksareal
- 38 m² (BRA-e)
- Innglasset balkong
- 11 m² (BRA-b)
- Balkong/Terrasse
- 56 m² (TBA)
- Byggeår
- 1978
- Energimerking
- D
- Rom
- 7
- Tomteareal
- 1 210 m² (eiet)
Fasiliteter
Takterrasse
Balkong/Terrasse
Barnevennlig
Garasje/P-plass
Hage
Offentlig vann/kloakk
Peis/Ildsted
Rolig
Sentralt
Utsikt
Turterreng
Visning
mandag, 02. mars
16:30 – 17:30
Trykk på "Visningspåmelding"-knappen for enkelt å melde deg på. Vi gj ør oppmerksom på at visning ikke blir avholdt, dersom det ikke er påmeldte. Velkommen til visning!
VisningspåmeldingOm boligen
Velkommen til Firdavegen 4 - En meget tiltalende, stor og spennende funkisbolig, beliggende høyt og fritt i terrenget med vakker utsikt mot havet i vest.
Eiendommen ligger innerst i blindvei og grenser til friområde mot nord.
Gjennomgående høy standard!
Eneboligen strekker seg over hele 3 etasjer og har en meget familievennlig og innholdsrik planløsning med bl.a 4 soverom, 3 stuer, 2 bad og WC-rom.
Videre kan boligen skilte med stor terrasse i alle etasjene, hvorav en fantastiske takterrasse med innglasset del. Fantastisk panoramautsikt!
Eiendommen har gode parkeringsmuligheter i garasje med elbillader, samt stort gårdsrom.
Her bor dere i naturskjønne omgivelser, i et veletablert, trivelig nabolag. Rolig og barnevennlig!
Kort vei til Kyststien, badeplass, skole, bhg og nærsenter.
Eiendommen ligger innerst i blindvei og grenser til friområde mot nord.
Gjennomgående høy standard!
Eneboligen strekker seg over hele 3 etasjer og har en meget familievennlig og innholdsrik planløsning med bl.a 4 soverom, 3 stuer, 2 bad og WC-rom.
Videre kan boligen skilte med stor terrasse i alle etasjene, hvorav en fantastiske takterrasse med innglasset del. Fantastisk panoramautsikt!
Eiendommen har gode parkeringsmuligheter i garasje med elbillader, samt stort gårdsrom.
Her bor dere i naturskjønne omgivelser, i et veletablert, trivelig nabolag. Rolig og barnevennlig!
Kort vei til Kyststien, badeplass, skole, bhg og nærsenter.
NB: Knappen for å vise hele beskrivelsen har kun en visuell effekt.
NB: Knappen for å vise hele beskrivelsen har kun en visuell effekt.
Salgsoppgaven beskriver vesentlig og lovpålagt informasjon om eiendommen
Se komplett salgsoppgaveNærområdet
Meglerhuset Rele Haugesund AS
Det komplette meglerhuset
Annonseinformasjon
| FINN-kode | 452636728 |
|---|---|
| Sist endret | 25. feb. 2026 18:21 |
| Referanse | 1-0057/26 |
Annonsene kan være mangelfulle i forhold til lovpålagt opplysningsplikt. Før bindende avtale inngås oppfordres interessenter til å innhente komplett informasjon fra meglerforetaket, selger eller utleier.












































































