Bildegalleri

Velkommen til Refneveien 40A - Den store, innglassede balkongen på 18 m² er sørvendt og har utsikt mot fjorden.

Refne

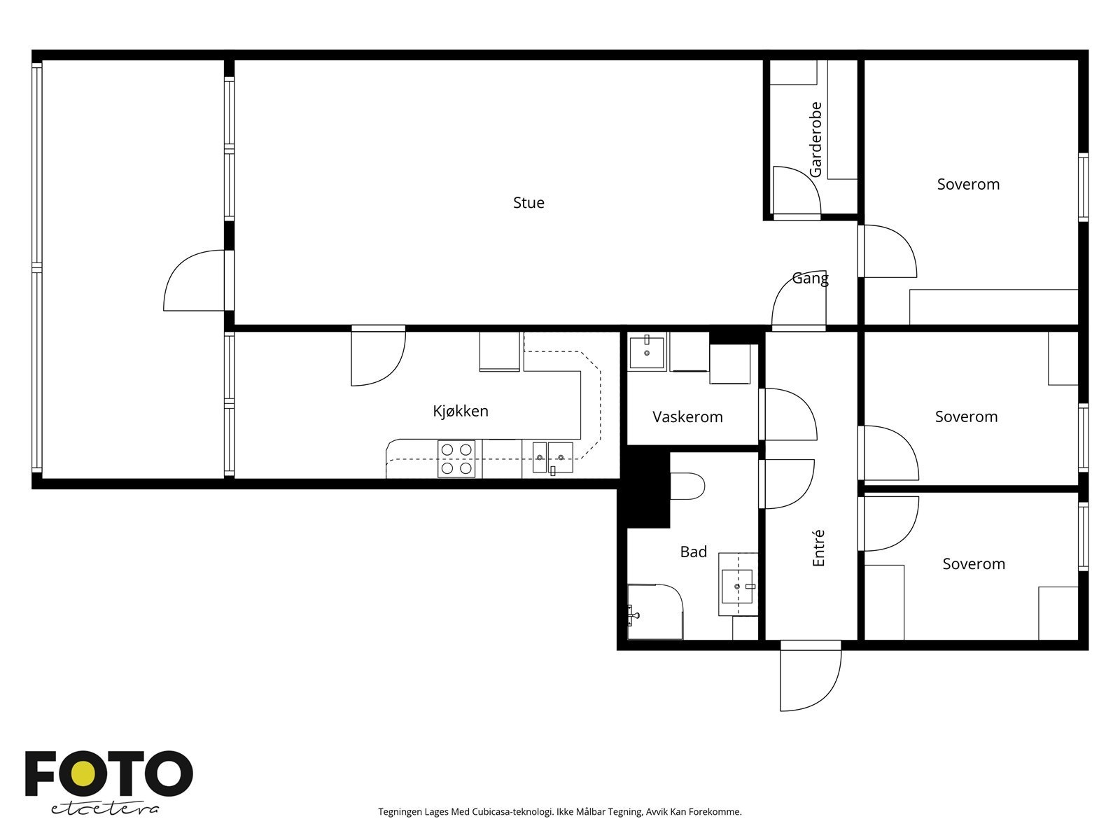
Stor leilighet i 1. etasje | 3 soverom | Innglasset balkong med utsikt mot fjorden | Lekkert bad fra 2017

Prisantydning2 300 000 kr
Totalpris
2 697 105 kr
Omkostninger
1 350 kr
Fellesgjeld
395 755 kr
Felleskost/mnd.
8 320 kr
Fellesformue
60 717 kr
Formuesverdi
692 697 kr

Nøkkelinfo

Boligtype
Leilighet
Eieform
Andel
Soverom
3
Internt bruksareal
97 m² (BRA-i)
Bruksareal
122 m²
Eksternt bruksareal
7 m² (BRA-e)
Innglasset balkong
18 m² (BRA-b)
Etasje
1
Byggeår
1976
Energimerking
E - Oransje
Rom
4
Tomteareal
20 678 m² (eiet)

Les mer om bruksareal her

Visning

onsdag, 04. mars
16:30 – 17:00
Ønsker du å delta på visningen ber vi om at du melder deg på slik at vi vet at du kommer. På den måten kan vi bistå alle best mulig, og gi deg tid på visningen. Visningen avholdes bare dersom det er påmeldte 2 timer innen oppsatt visningstidspunkt. Ta gjerne kontakt med megler på telefon 916 92 947 før visningen, hvis du har noen spørsmål. Velkommen!
Visningspåmelding

Om boligen

Velkommen til Refneveien 40A

Her bor du i et etablert boligområde med gangavstand til sentrum, samtidig som man bor tett på naturen.

Leiligheten er meget romslig med god planløsning og enkel adkomst i byggets 1. etasje. Fra stuen er det utgang til en stor, innglasset balkong hvor du kan nyte utsikten mot fjorden. Tidløst og pent bad som er flislagt, eget vaskerom og kjøkken med spiseplass og godt med både skap- og benkeplass. Parkeringsplass og mulighet for elbil-lading.

Høydepunkter:
  • Sørvendt, innglasset balkong på 18 m² med utsikt.
  • Bad og vaskerom rehabilitert i regi av borettslaget i 2017.
  • 3 gode soverom.
  • Parkering og 2 boder medfølger.

Salgsoppgaven beskriver vesentlig og lovpålagt informasjon om eiendommen

Se komplett salgsoppgave

Nærområdet

Annonseinformasjon

FINN-kode452635556
Sist endret25. feb. 2026 08:02
Referanse5380260027

Rapporter annonse

Annonsene kan være mangelfulle i forhold til lovpålagt opplysningsplikt. Før bindende avtale inngås oppfordres interessenter til å innhente komplett informasjon fra meglerforetaket, selger eller utleier.