Bildegalleri

Velkommen til Bygdøy Allé 28 - Spennende oppussingsobjekt på hele 205 kvm med stort potensial Foto: Anne Andersen
Frogner v/ Gimle
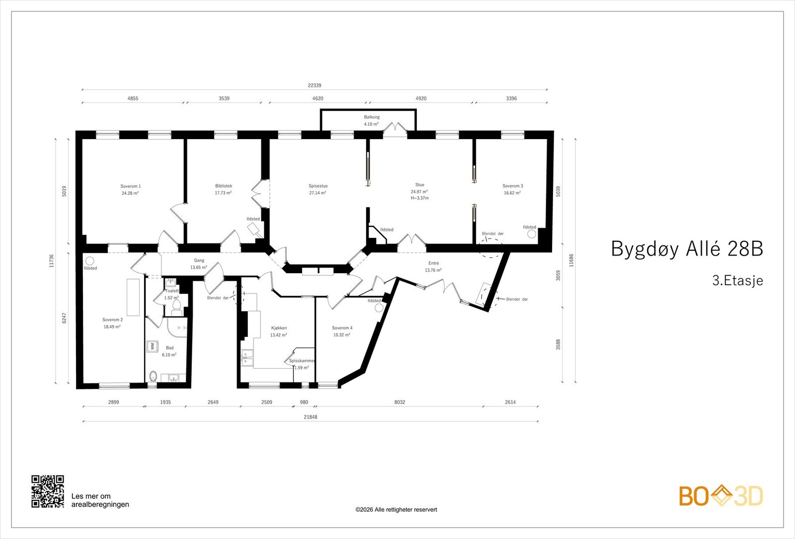
Klassisk leilighet på 205m2 vendt mot Frederik Stangs gt. 5 stuer på rad. Balkong, heis og 5 ildsteder. Oppussingsobjekt
Prisantydning17 900 000 kr
Nøkkelinfo
- Boligtype
- Leilighet
- Eieform
- Eier (Selveier)
- Soverom
- 4
- Internt bruksareal
- 205 m² (BRA-i)
- Bruksareal
- 217 m²
- Eksternt bruksareal
- 12 m² (BRA-e)
- Balkong/Terrasse
- 4 m² (TBA)
- Etasje
- 3
- Byggeår
- 1899
- Rom
- 7
- Tomteareal
- 775 m² (eiet)
Fasiliteter
Barnevennlig
Balkong/Terrasse
Kabel-TV
Heis
Offentlig vann/kloakk
Ingen gjenboere
Parkett
Peis/Ildsted
Vaktmester-/vektertjeneste
Sentralt
Bredbåndstilknytning
Visning
fredag, 06. mars
12:00 – 13:00
Velkommen til visning! Meld deg gjerne på, slik at vi får deg/dere registrert og kan oppdatere med informasjon som sendes alle interessenter underveis. NB: dette er salg etter vergemål og må gjennomgå normal saksgang med dertil budgivning tidligst mandag 9. mars.
søndag, 08. mars
12:00 – 13:00
Velkommen til visning! Meld deg gjerne på, slik at vi får deg/dere registrert og kan oppdatere med informasjon som sendes alle interessenter underveis. NB: dette er salg etter vergemål og må gjennomgå normal saksgang med dertil budgivning tidligst mandag 9. mars.
Om boligen
Spennende oppussingsobjekt med stort potensial! Stor, ærverdig selveierleilighet på 205m2. i 3. etasje med heis i en velholdt og klassisk bygård. Boligen har en attraktiv beliggenhet ved Gimle og vender ut mot Frederik Stangs gate.
Gjennomgående planløsning med hele fem stuer på rad, separat kjøkken, bad, toalettrom og to soverom vendt mot bakgård. Leiligheten oppleves som lys og luftig med generøs takhøyde og store vindusflater. Utgang fra den ene stuen til vestvendt balkong med flott utsyn mot fjorden og over det fasjonable nabolaget.
Det er behov for total oppussing, men leiligheten har originale flotte, klassiske detaljer som stukkatur, rosett, doble fløydører og fem ildsteder.
NB: Les salgsoppgaven om offentlig forhold, punkt om byggetegninger.
Gjennomgående planløsning med hele fem stuer på rad, separat kjøkken, bad, toalettrom og to soverom vendt mot bakgård. Leiligheten oppleves som lys og luftig med generøs takhøyde og store vindusflater. Utgang fra den ene stuen til vestvendt balkong med flott utsyn mot fjorden og over det fasjonable nabolaget.
Det er behov for total oppussing, men leiligheten har originale flotte, klassiske detaljer som stukkatur, rosett, doble fløydører og fem ildsteder.
NB: Les salgsoppgaven om offentlig forhold, punkt om byggetegninger.
- Heis
- Oppussingsobjekt med stort potensial
- Vestvendt balkong på 4 kvm
- Takhøyde opptil 3,37 meter
- 5 ildsteder
- Disponibel kjellerbod på ca. 12 kvm
NB: Knappen for å vise hele beskrivelsen har kun en visuell effekt.
NB: Knappen for å vise hele beskrivelsen har kun en visuell effekt.
Salgsoppgaven beskriver vesentlig og lovpålagt informasjon om eiendommen
Se komplett salgsoppgaveNyttige lenker
Nærområdet

PrivatMegleren Allé
Kun det beste på dine vegne
Annonseinformasjon
| FINN-kode | 452591717 |
|---|---|
| Sist endret | 03. mars 2026 10:13 |
| Referanse | 186260057 |
Annonsene kan være mangelfulle i forhold til lovpålagt opplysningsplikt. Før bindende avtale inngås oppfordres interessenter til å innhente komplett informasjon fra meglerforetaket, selger eller utleier.





































