Bildegalleri

Bergby &Partners v/ Kim-André Arnesen har gleden av å presentere Blådalen 17!
Åstveit
Herlig og oppgradert familiebolig med store, solrike uteplasser, carport og sentral beliggenhet! Hybel (ikke godkjent).
Prisantydning6 500 000 kr
Nøkkelinfo
- Boligtype
- Enebolig
- Eieform
- Eier (Selveier)
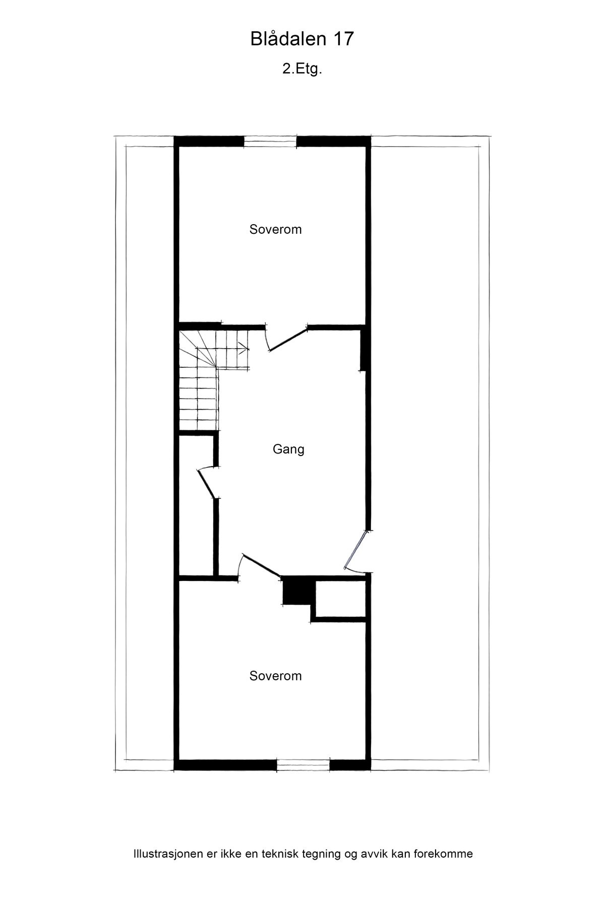
- Soverom
- 2
- Internt bruksareal
- 156 m² (BRA-i)
- Bruksareal
- 169 m²
- Eksternt bruksareal
- 13 m² (BRA-e)
- Balkong/Terrasse
- 52 m² (TBA)
- Etasje
- 1
- Byggeår
- 1960
- Energimerking
- G - Gul
- Rom
- 3
- Tomteareal
- 704 m² (eiet)
Fasiliteter
Barnevennlig
Balkong/Terrasse
Garasje/P-plass
Offentlig vann/kloakk
Ingen gjenboere
Peis/Ildsted
Turterreng
Utsikt
Sentralt
Moderne
Rolig
Visning
søndag, 08. mars
14:00 – 15:00
Meld deg på visning eller kontakt eiendomsmegler for privatvisning.
Visning blir ikke gjennomført uten påmeldte.
Om boligen
Bergby &Partners v/ Kim-André Arnesen har gleden av å presentere Blådalen 17!
Den perfekte muligheten for deg som ønsker moderne løsninger, gangavstand til skoler og barnehager, samt store solrike uteplasser som blir familiens favorittplass! Boligen er oppgradert med bl.a. renoverte bad, nye overflater, og smakfulle detaljer som gir en gjennomført og behagelig atmosfære. Hybel i kjelleren (ikke godkjent), som gir gode leieinntekter. Den innbydende hagen har spennende muligheter og godt med boltreplass. Perfekt for enhver som vil bo rolig, behagelig og svært sentralt, med nærhet til alt en trenger!
Den perfekte muligheten for deg som ønsker moderne løsninger, gangavstand til skoler og barnehager, samt store solrike uteplasser som blir familiens favorittplass! Boligen er oppgradert med bl.a. renoverte bad, nye overflater, og smakfulle detaljer som gir en gjennomført og behagelig atmosfære. Hybel i kjelleren (ikke godkjent), som gir gode leieinntekter. Den innbydende hagen har spennende muligheter og godt med boltreplass. Perfekt for enhver som vil bo rolig, behagelig og svært sentralt, med nærhet til alt en trenger!
- Store, usjenerte terrasser med mye sol
- Flott hage med god plass til lek og avslapning
- Oppgradert med renoverte bad og nye overflater
- Carport på 21 m²
- Hybel (ikke godkjent) utleid for kr. 14.500 + strøm
- Svært barnevennlig, gangavstand til skoler og barnehager
- Kort vei til aktivitetsmuligheter, natur og servicetilbud
NB: Knappen for å vise hele beskrivelsen har kun en visuell effekt.
NB: Knappen for å vise hele beskrivelsen har kun en visuell effekt.
Salgsoppgaven beskriver vesentlig og lovpålagt informasjon om eiendommen
Se komplett salgsoppgaveNyttige lenker
Nærområdet
Bergby & Partners
Annonseinformasjon
| FINN-kode | 452550914 |
|---|---|
| Sist endret | 02. mars 2026 20:15 |
| Referanse | 84260092 |
Annonsene kan være mangelfulle i forhold til lovpålagt opplysningsplikt. Før bindende avtale inngås oppfordres interessenter til å innhente komplett informasjon fra meglerforetaket, selger eller utleier.
































































