Bildegalleri

Velkommen på visning til Sundenga 12 - Ta kontakt med Lars Espen Storebø på tlf. 99161972 for avtale om privatvisning.
Barnevennlig på Fjerdingby
Ny og lekker familiebolig med garasje, del i 1.etg. ideelt for utleie, 5 sov. Påkostet standard. Salg av kontrakt.
Prisantydning9 300 000 kr
Nøkkelinfo
- Boligtype
- Tomannsbolig
- Eieform
- Eier (Selveier)
- Soverom
- 5
- Internt bruksareal
- 191 m² (BRA-i)
- Bruksareal
- 212 m²
- Eksternt bruksareal
- 23 m² (BRA-e)
- Balkong/Terrasse
- 23 m² (TBA)
- Byggeår
- 2026
- Rom
- 8
- Tomteareal
- 356 m² (eiet)
Fasiliteter
Barnevennlig
Balkong/Terrasse
Garasje/P-plass
Offentlig vann/kloakk
Peis/Ildsted
Turterreng
Utsikt
Sentralt
Bredbåndstilknytning
Moderne
Rolig
Lademulighet
Balansert ventilasjon
Visning
søndag, 08. mars
13:00 – 14:00
Velkommen til visning!
Alle våre visninger har påmelding. På denne måten sikrer vi at megler har god oversikt og tid til å imøtekomme alle interessenter på beste måte. Dette er veldig verdifullt for boligkjøpere og for oss. Det er enkelt å melde seg på, og du kan like enkelt melde deg av. Kontakt også gjerne megler i forkant av visning dersom du har spørsmål.
Om boligen
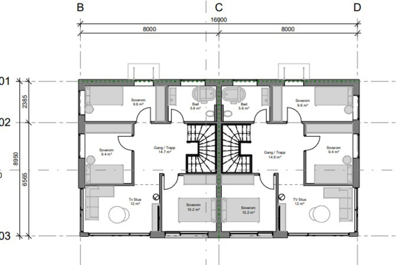
Velkommen til Sundenga 12 - en helt ny og moderne halvpart av tomannsbolig med attraktiv beliggenhet i Rælingen! Her får du en innflyttingsklar bolig med høy standard, gjennomtenkt planløsning og alt tilrettelagt for en enkel, komfortabel og aktiv hverdag. Boligen går over tre etasjer og har et bruksareal på ca. 214 m² med hele fem soverom, tre bad, romslig stue/kjøkken i åpen løsning og en ekstra loftstue - perfekt for barnefamilier eller deg som ønsker god plass. Tilrettelagt for utleie med egen inngang i 1. etg.
Ferdigstillelse er planlagt til sommeren 2026, og kjøper du nå, får du gleden av å flytte rett inn i en splitter ny bolig - med lav dokumentavgift og minimalt vedlikehold i mange år fremover. Parkering i garasje og på gårdsplass. I tillegg er det en romslig takterrasse med fantastisk utsikt.
Ferdigstillelse er planlagt til sommeren 2026, og kjøper du nå, får du gleden av å flytte rett inn i en splitter ny bolig - med lav dokumentavgift og minimalt vedlikehold i mange år fremover. Parkering i garasje og på gårdsplass. I tillegg er det en romslig takterrasse med fantastisk utsikt.
NB: Knappen for å vise hele beskrivelsen har kun en visuell effekt.
NB: Knappen for å vise hele beskrivelsen har kun en visuell effekt.
Salgsoppgaven beskriver vesentlig og lovpålagt informasjon om eiendommen
Se komplett salgsoppgaveNyttige lenker
Nærområdet

PrivatMegleren Lillestrøm
Kun det beste på dine vegne
Annonseinformasjon
| FINN-kode | 452542724 |
|---|---|
| Sist endret | 24. feb. 2026 13:51 |
| Referanse | 24260063 |
Annonsene kan være mangelfulle i forhold til lovpålagt opplysningsplikt. Før bindende avtale inngås oppfordres interessenter til å innhente komplett informasjon fra meglerforetaket, selger eller utleier.













