Bildegalleri

Velkommen til populære Beverveien 12! En nydelig familiebolig over 2 plan på attraktive Veitvet. Foto: Studio Oslo
Veitvet
Attraktiv og gjennomgående 4-R over 2 plan i familievennlig nabolag | Solrik balkong m/ utsikt | Nærhet til marka!
Prisantydning4 700 000 kr
Nøkkelinfo
- Boligtype
- Leilighet
- Eieform
- Andel
- Soverom
- 3
- Internt bruksareal
- 84 m² (BRA-i)
- Bruksareal
- 88 m²
- Eksternt bruksareal
- 4 m² (BRA-e)
- Balkong/Terrasse
- 8 m² (TBA)
- Etasje
- 3
- Byggeår
- 1958
- Energimerking
- G - Rød
- Rom
- 4
- Tomteareal
- 19 371 m² (eiet)
Fasiliteter
Balkong/Terrasse
Barnevennlig
Bredbåndstilknytning
Kjæledyr tillatt
Ingen gjenboere
Kabel-TV
Offentlig vann/kloakk
Parkett
Rolig
Sentralt
Utsikt
Vaktmester-/vektertjeneste
Turterreng
Om boligen
Velkommen til Beverveien 12!
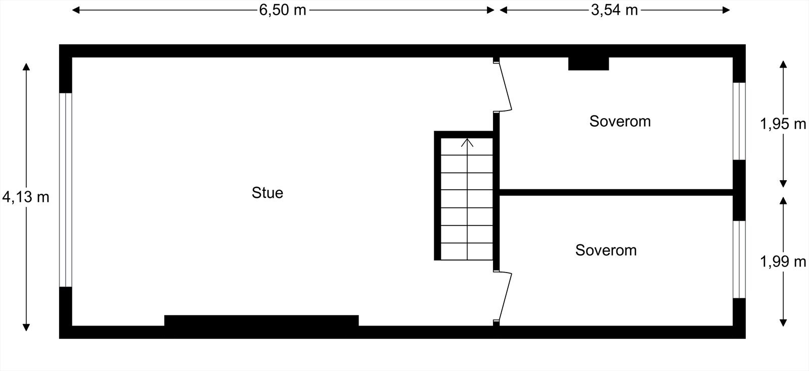
Lys og velholdt 4-roms leilighet over to plan, beliggende i byggets 3. og 4. etasje. Boligen holder god standard og ligger i et populært og barnevennlig borettslag.
Her bor du sentralt med gangavstand til skoler, barnehager og butikker, samt T-bane og buss i umiddelbar nærhet som gir enkel adkomst til hele byen. Området byr på hyggelige uteområder med lekeplasser og sitteplasser, samt kort vei til marka.
Kvaliteter:
Lys og velholdt 4-roms leilighet over to plan, beliggende i byggets 3. og 4. etasje. Boligen holder god standard og ligger i et populært og barnevennlig borettslag.
Her bor du sentralt med gangavstand til skoler, barnehager og butikker, samt T-bane og buss i umiddelbar nærhet som gir enkel adkomst til hele byen. Området byr på hyggelige uteområder med lekeplasser og sitteplasser, samt kort vei til marka.
Kvaliteter:
- Sørvendt balkong med gode solforhold og hyggelig utsyn over nabolaget
- Tv/internett inkl
- Romlig og lys stue med god plass.
- Pent bad fra 2016 i regi av brl.
- 3 soverom
- Kjøkkeninnredning fra 2020
- To lagringsboder
- Ingen forkjøpsrett
- Kort avstand til bredt kollektivtilbud
- Familievennlig
NB: Knappen for å vise hele beskrivelsen har kun en visuell effekt.
NB: Knappen for å vise hele beskrivelsen har kun en visuell effekt.
Salgsoppgaven beskriver vesentlig og lovpålagt informasjon om eiendommen
Se komplett salgsoppgaveNærområdet
Aktiv Carl Berner
Annonseinformasjon
| FINN-kode | 452536934 |
|---|---|
| Sist endret | 24. feb. 2026 13:18 |
| Referanse | 1006260018 |
Annonsene kan være mangelfulle i forhold til lovpålagt opplysningsplikt. Før bindende avtale inngås oppfordres interessenter til å innhente komplett informasjon fra meglerforetaket, selger eller utleier.




































