Bildegalleri

Velkommen til Risabergstien 9, presentert av EiendomsMegle1 v/Jarl Tjelta. Foto: Trond-Eirik Husvæg.
Velholdt enebolig med flott utsikt, gode uteområder og fin beliggenhet
Prisantydning6 490 000 kr
Nøkkelinfo
- Boligtype
- Enebolig
- Eieform
- Eier (Selveier)
- Soverom
- 2
- Internt bruksareal
- 212 m² (BRA-i)
- Bruksareal
- 228 m²
- Eksternt bruksareal
- 16 m² (BRA-e)
- Balkong/Terrasse
- 43 m² (TBA)
- Etasje
- 3
- Byggeår
- 1981
- Energimerking
- D - Gul
- Rom
- 3
- Tomteareal
- 413 m² (eiet)
Fasiliteter
Barnevennlig
Garasje/P-plass
Hage
Kabel-TV
Offentlig vann/kloakk
Parkett
Peis/Ildsted
Rolig
Sentralt
Utsikt
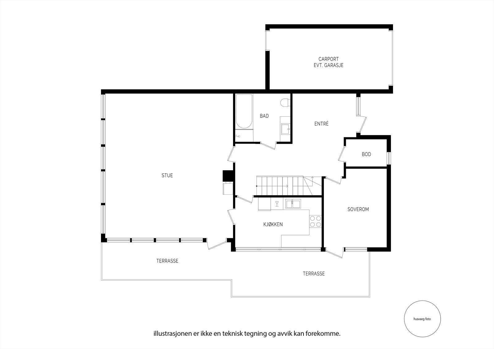
Om boligen
Eiendommen ligger i et rolig område med flott utsikt både fra stuen i 1. og 2. etasje.
På tomten er det god parkeringsplass på sørsiden, med tilhørende garasje, samt en koselig hage med redskapsbod på nordsiden.
Fra stuen i 1. etasje er det utgang til en romslig terrasse som byr på både sol og utsyn, et ideelt sted for avslapning og hyggelige sammenkomster.
Boligen har en eldre standard, men fremstår godt vedlikeholdt. Noe oppussing og modernisering må påregnes, som gir mulighet til å sette sitt eget preg.
Kjelleren er innredet med kjøkken og stue, men dette er ikke byggemeldt. I hovedetasjen er det gjort endringer, blant annet utvidelse av kjøkken og tilpassing av planløsningen
Dette er en eiendom med stort potensial, godt med sol, flott utsikt og en populær beliggenhet
På tomten er det god parkeringsplass på sørsiden, med tilhørende garasje, samt en koselig hage med redskapsbod på nordsiden.
Fra stuen i 1. etasje er det utgang til en romslig terrasse som byr på både sol og utsyn, et ideelt sted for avslapning og hyggelige sammenkomster.
Boligen har en eldre standard, men fremstår godt vedlikeholdt. Noe oppussing og modernisering må påregnes, som gir mulighet til å sette sitt eget preg.
Kjelleren er innredet med kjøkken og stue, men dette er ikke byggemeldt. I hovedetasjen er det gjort endringer, blant annet utvidelse av kjøkken og tilpassing av planløsningen
Dette er en eiendom med stort potensial, godt med sol, flott utsikt og en populær beliggenhet
NB: Knappen for å vise hele beskrivelsen har kun en visuell effekt.
NB: Knappen for å vise hele beskrivelsen har kun en visuell effekt.
Salgsoppgaven beskriver vesentlig og lovpålagt informasjon om eiendommen
Se komplett salgsoppgaveNyttige lenker
Nærområdet
EiendomsMegler 1 Sola
En del av Sparebank 1 Sør-Norge
Annonseinformasjon
| FINN-kode | 452533886 |
|---|---|
| Sist endret | 27. feb. 2026 08:53 |
| Referanse | 2210260012 |
Annonsene kan være mangelfulle i forhold til lovpålagt opplysningsplikt. Før bindende avtale inngås oppfordres interessenter til å innhente komplett informasjon fra meglerforetaket, selger eller utleier.











































