Bildegalleri

Velkommen til Bakkaneveien 58 - Foto: Karl Filip Kronstad
Tanum
Landlig enebolig med dobbelgarasje. Ligger fint for seg selv. Skiftet tak, kledning og vinduer i 2015. Bad fra 2025.
Prisantydning3 990 000 kr
Nøkkelinfo
- Boligtype
- Enebolig
- Eieform
- Eier (Selveier)
- Soverom
- 4
- Internt bruksareal
- 167 m² (BRA-i)
- Bruksareal
- 254 m²
- Eksternt bruksareal
- 87 m² (BRA-e)
- Balkong/Terrasse
- 38 m² (TBA)
- Byggeår
- 1961
- Energimerking
- E - Oransje
- Rom
- 6
- Tomteareal
- 1 018 m² (eiet)
Fasiliteter
Balkong/Terrasse
Garasje/P-plass
Hage
Kjæledyr tillatt
Offentlig vann/kloakk
Peis/Ildsted
Turterreng
Visning
mandag, 09. mars
16:00 – 17:00
Ønsker du å delta på visningen ber vi deg melde deg på slik at vi vet at du kommer. Da kan vi bistå alle best mulig og gi deg tiden du trenger på visningen. Kontakt gjerne megler før visning hvis du har spørsmål. Visningen avholdes bare dersom det er påmeldte. Hvis det ikke er oppsatt visningstidspunkt eller tidspunkt ikke passer, kontakt megler.
VisningspåmeldingOm boligen
Velkommen til Bakkaneveien 58. En enebolig over tre etasjer med sjarm. Det er egen inngang i kjelleren.
- Tak, vinduer og kledning skiftet i 2015.
- Varmepumpe fra 2017 og det er peisovn i stuen.
- Kjøkken med godt med skapplass i eget rom.
- Ekstra toalett i 1. etasje.
- Godt med lagringsplass på hele eiendommen.
- Kort vei til fine turområder.
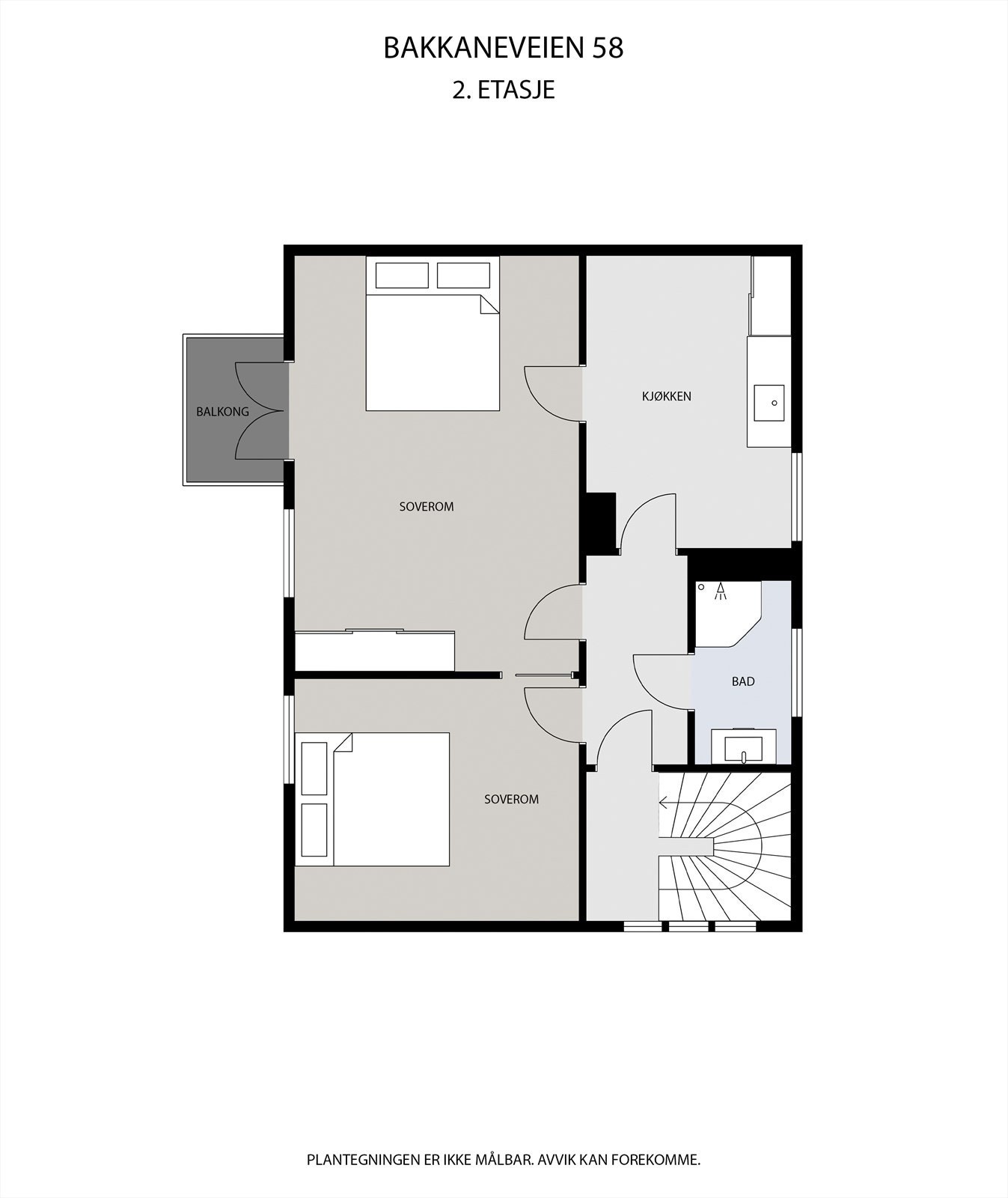
Badet i 2. etasje er oppgradert i senere tid og det er tre soverom i etasjen.
Det er gitt tillatelse til bruksendring fra tilleggsdel til hoveddel samt godkjenning av oppført garasje den 18.02.2026 av Larvik kommune.
Velkommen til visning! Ta kontakt med megler på 93 28 64 54 for å avtale visning.
- Tak, vinduer og kledning skiftet i 2015.
- Varmepumpe fra 2017 og det er peisovn i stuen.
- Kjøkken med godt med skapplass i eget rom.
- Ekstra toalett i 1. etasje.
- Godt med lagringsplass på hele eiendommen.
- Kort vei til fine turområder.
Badet i 2. etasje er oppgradert i senere tid og det er tre soverom i etasjen.
Det er gitt tillatelse til bruksendring fra tilleggsdel til hoveddel samt godkjenning av oppført garasje den 18.02.2026 av Larvik kommune.
Velkommen til visning! Ta kontakt med megler på 93 28 64 54 for å avtale visning.
NB: Knappen for å vise hele beskrivelsen har kun en visuell effekt.
NB: Knappen for å vise hele beskrivelsen har kun en visuell effekt.
Salgsoppgaven beskriver vesentlig og lovpålagt informasjon om eiendommen
Se komplett salgsoppgaveNyttige lenker
Nærområdet
EiendomsMegler 1 Larvik
et foretak i SpareBank 1 Sør-Norge konsernet
Annonseinformasjon
| FINN-kode | 452518128 |
|---|---|
| Sist endret | 27. feb. 2026 20:10 |
| Referanse | 2866260004 |
Annonsene kan være mangelfulle i forhold til lovpålagt opplysningsplikt. Før bindende avtale inngås oppfordres interessenter til å innhente komplett informasjon fra meglerforetaket, selger eller utleier.





















































