Bildegalleri

Erik Tenden Nyborg v/Privatmegleren har gleden av å ønske velkommen til Skiveien 198A!
Oppegård
Innbydende 3(4)-roms hjørneleilighet | Balkong på 24 kvm| Garasjeplass m/ lader | Vannbåren gulvvarme | Kort vei til tog
Prisantydning6 200 000 kr
Nøkkelinfo
- Boligtype
- Leilighet
- Eieform
- Eier (Selveier)
- Soverom
- 2
- Internt bruksareal
- 94 m² (BRA-i)
- Bruksareal
- 99 m²
- Eksternt bruksareal
- 5 m² (BRA-e)
- Balkong/Terrasse
- 24 m² (TBA)
- Etasje
- 3
- Byggeår
- 2016
- Energimerking
- B - Lysegrønn
- Rom
- 3
- Tomteareal
- 8 757 m² (eiet)
Fasiliteter
Barnevennlig
Balkong/Terrasse
Garasje/P-plass
Kabel-TV
Heis
Offentlig vann/kloakk
Parkett
Turterreng
Bredbåndstilknytning
Moderne
Rolig
Lademulighet
Balansert ventilasjon
Visning
søndag, 08. mars
14:45 – 15:30
Velkommen til visning!
Alle våre visninger har påmelding. På denne måten sikrer vi at megler har god oversikt og tid til å imøtekomme alle interessenter på beste måte. Dette er veldig verdifullt for boligkjøpere og for oss. Det er enkelt å melde seg på, og du kan like enkelt melde deg av. Kontakt også gjerne megler i forkant av visning dersom du har spørsmål.
Om boligen
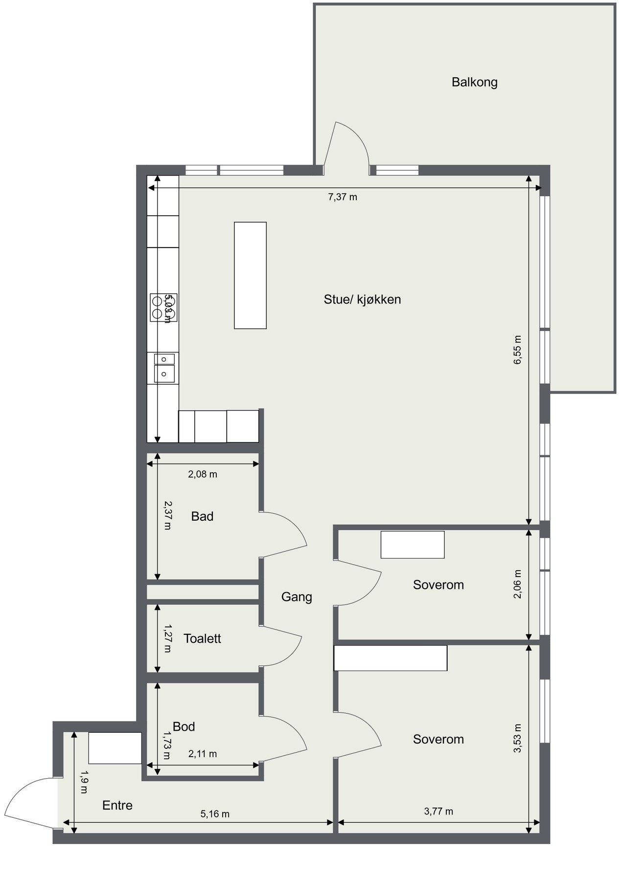
Velkommen til Skiveien 198A! Dette er en romslig og innbydende 3-roms hjørneleilighet i tredje etasje med vannbåren varme og en solrik balkong å ca. 24 kvm. Leiligheten ligger i et barnevennlig og attraktivt boligområde med kort vei til tog/buss, butikker, idrettsanlegg, skoler, barnehager og marka.
Den åpne stue-/kjøkkenløsningen skaper luftig atmosfære med store vindusflater fra to kanter som sørger for rikelig med naturlig dagslys. Stuen har gode møbleringsmuligheter, mens Sigdal-kjøkkenet byr på integrerte hvitevarer, samt rikelig med benke- og skapplass. Videre har leiligheten et pent bad i tillegg til et separat toalettrom og to gode soverom (med mulighet for et tredje soverom). Det er lagringsplass i innvendig bod og i disponibel bod i kjeller på ca. 5 kvm. Det medfølger en parkeringsplass med elbillader i felles garasjeanlegg.
Den åpne stue-/kjøkkenløsningen skaper luftig atmosfære med store vindusflater fra to kanter som sørger for rikelig med naturlig dagslys. Stuen har gode møbleringsmuligheter, mens Sigdal-kjøkkenet byr på integrerte hvitevarer, samt rikelig med benke- og skapplass. Videre har leiligheten et pent bad i tillegg til et separat toalettrom og to gode soverom (med mulighet for et tredje soverom). Det er lagringsplass i innvendig bod og i disponibel bod i kjeller på ca. 5 kvm. Det medfølger en parkeringsplass med elbillader i felles garasjeanlegg.
NB: Knappen for å vise hele beskrivelsen har kun en visuell effekt.
NB: Knappen for å vise hele beskrivelsen har kun en visuell effekt.
Salgsoppgaven beskriver vesentlig og lovpålagt informasjon om eiendommen
Se komplett salgsoppgaveNyttige lenker
Nærområdet

PrivatMegleren Kvadrat
Kun det beste på dine vegne
Annonseinformasjon
| FINN-kode | 452509466 |
|---|---|
| Sist endret | 28. feb. 2026 10:41 |
| Referanse | 120260018 |
Annonsene kan være mangelfulle i forhold til lovpålagt opplysningsplikt. Før bindende avtale inngås oppfordres interessenter til å innhente komplett informasjon fra meglerforetaket, selger eller utleier.















































