Bildegalleri

Aktiv Eiendom v/Elene M. Torre har gleden av å presentere Valsringen 29. Foto: Exponering v/Svein Michaelsen.

Sørumsand

Innholdsrik, pen og velholdt enebolig. Stor, solrik hage, lun uteplass, skjermet og fin utsikt. Dobbelgarasje m/​lader.

Prisantydning6 490 000 kr
Totalpris
6 653 640 kr
Omkostninger
163 640 kr
Kommunale avg.
23 336 kr per år
Eiendomsskatt
1 911 kr per år

Nøkkelinfo

Boligtype
Enebolig
Eieform
Eier (Selveier)
Soverom
4
Internt bruksareal
289 m² (BRA-i)
Bruksareal
341 m²
Eksternt bruksareal
52 m² (BRA-e)
Byggeår
1975
Tomteareal
1 077 m² (eiet)

Les mer om bruksareal her

Visning

søndag, 08. mars
14:00 – 15:00
Visningspåmelding

Om boligen

Velkommen til Valsringen 29 en stor, familievennlig og velholdt enebolig i landlige omgivelser. Beliggenheten er naturskjønn og barnevennlig, med nærhet til busstopp og fine turområder. Videre kan eiendommen stolt skilte med langstrakt, nydelig utsikt, gode solforhold, hage med rikelig med boltreplass, dobbelgarasje, elbillader og en sydvestvendt, overbygd og lun markterrasse.

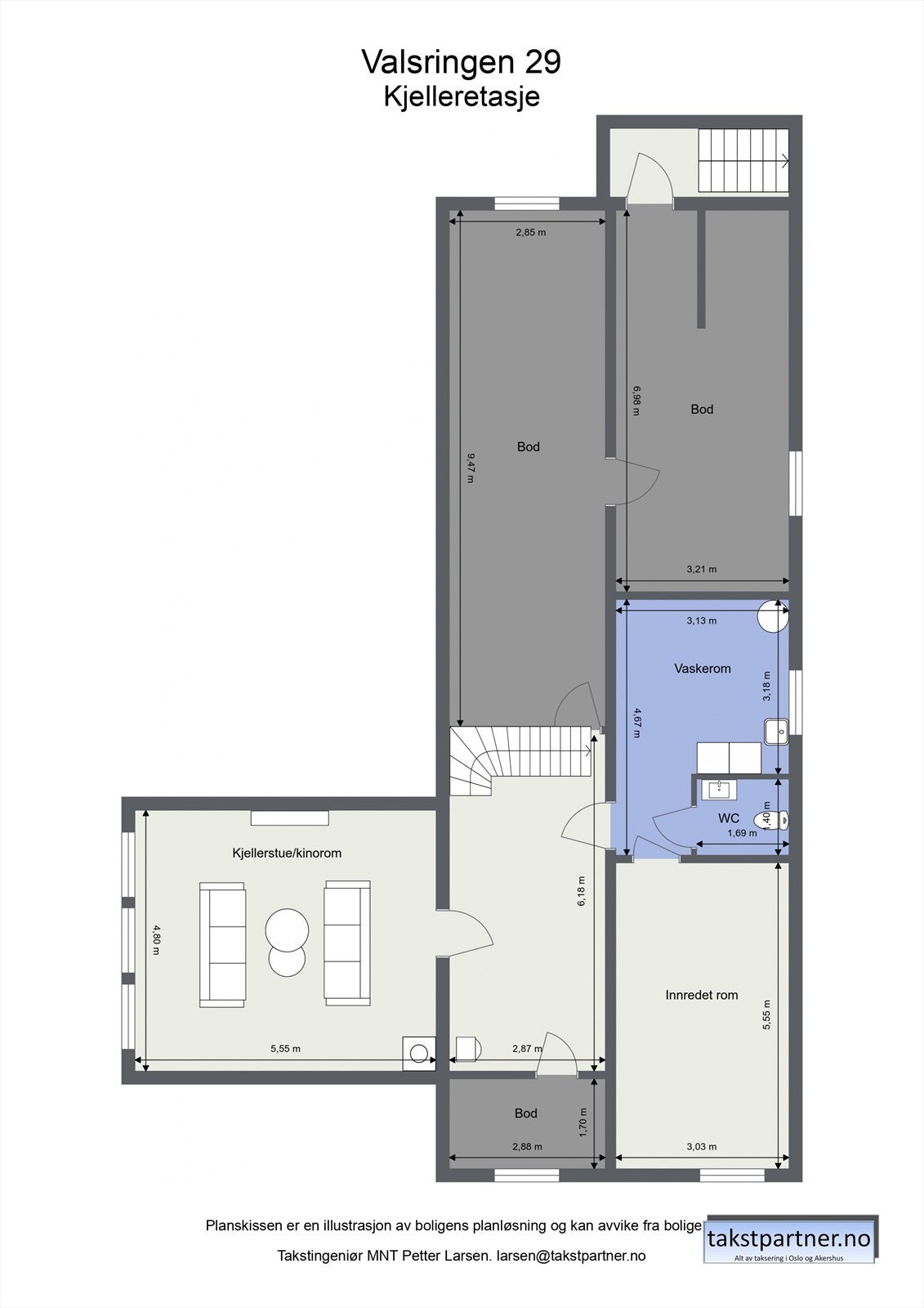
Eneboligen fremstår med stilrene farge- og materialvalg og innholdsrik planløsning. Her er det en stor stue med nyere peisovn, et velutstyrt, moderne kjøkken fra 2015, et kinorom og et lunt kjellerrom med vedovn. Videre har eneboligen et stort bad/wc, to separate wc-rom, et vaskerom og hele fire soverom. Flere rom har garderobeløsning, og lagringsplass finnes i tre kjellerboder og i en isolert garasjebod.

Salgsoppgaven beskriver vesentlig og lovpålagt informasjon om eiendommen

Se komplett salgsoppgave

Nærområdet

Annonseinformasjon

FINN-kode452508659
Sist endret28. feb. 2026 08:29
Referanse1105260019

Rapporter annonse

Annonsene kan være mangelfulle i forhold til lovpålagt opplysningsplikt. Før bindende avtale inngås oppfordres interessenter til å innhente komplett informasjon fra meglerforetaket, selger eller utleier.