Bildegalleri

Nordvik v/Caroline Wivestad har gleden av å ønske velkommen til Valløveien 80D! Foto: Foto Asmyhr.
Tolvsrød
Stor og lys 3-roms leilighet med attraktiv og praktisk beliggenhet på Tolvsrød! P-plass og heis. Sjøutsikt!
Prisantydning6 300 000 kr
Nøkkelinfo
- Boligtype
- Leilighet
- Eieform
- Selveier
- Soverom
- 2
- Internt bruksareal
- 118 m² (BRA-i)
- Bruksareal
- 124 m²
- Eksternt bruksareal
- 6 m² (BRA-e)
- Balkong/Terrasse
- 30 m² (TBA)
- Etasje
- 2
- Byggeår
- 1968
- Energimerking
- Rom
- 3
- Tomteareal
- 3 123 m² (eiet)
Fasiliteter
Balkong/Terrasse
Barnevennlig
Bredbåndstilknytning
Garasje/P-plass
Heis
Offentlig vann/kloakk
Parkett
Sentralt
Utsikt
Om boligen
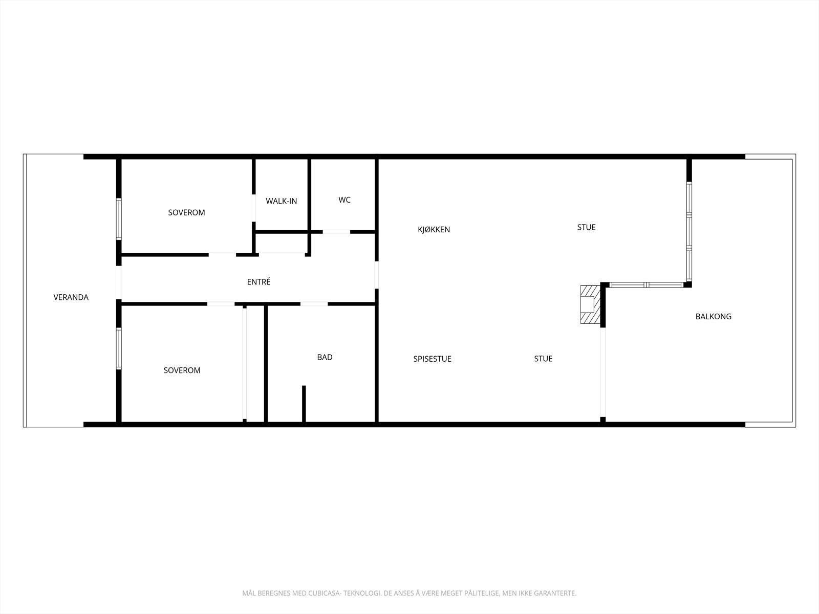
Velkommen til Valløveien 80D!
En lettstelt og innholdsrik selveierleilighet med store rom og en fin planløsning. Beliggenheten legger til rette for en enkel hverdag med bussholdeplass rett på utsiden, samt nærhet til Tolvsrød senteret, flotte turområder, Ringshaugstranda og småbåthavn.
Leiligheten ligger i andre etasje med heis, trappeadkomst og lys svalgang. Dette er et velholdt og flott hjem med gjennomgående planløsning, stor solrik terrasse med nydelig utsikt til sjøen! Stue og kjøkken er i åpen løsning m/ekstra takhøyde og flott gasspeis. Kjøkkenet har rikelig med skap - og benkeplass. Videre er det 2 fine soverom, et stort bad, et tidligere bad som nå er innredet med toalett og skap, teknisk rom/bod, samt gang/entré.
Det er ekstra bod i første etasje og egen p-plass.
En lettstelt og innholdsrik selveierleilighet med store rom og en fin planløsning. Beliggenheten legger til rette for en enkel hverdag med bussholdeplass rett på utsiden, samt nærhet til Tolvsrød senteret, flotte turområder, Ringshaugstranda og småbåthavn.
Leiligheten ligger i andre etasje med heis, trappeadkomst og lys svalgang. Dette er et velholdt og flott hjem med gjennomgående planløsning, stor solrik terrasse med nydelig utsikt til sjøen! Stue og kjøkken er i åpen løsning m/ekstra takhøyde og flott gasspeis. Kjøkkenet har rikelig med skap - og benkeplass. Videre er det 2 fine soverom, et stort bad, et tidligere bad som nå er innredet med toalett og skap, teknisk rom/bod, samt gang/entré.
Det er ekstra bod i første etasje og egen p-plass.
NB: Knappen for å vise hele beskrivelsen har kun en visuell effekt.
NB: Knappen for å vise hele beskrivelsen har kun en visuell effekt.
Salgsoppgaven beskriver vesentlig og lovpålagt informasjon om eiendommen
Se komplett salgsoppgaveNyttige lenker
Nærområdet
Nordvik Tønsberg
Annonseinformasjon
| FINN-kode | 452460284 |
|---|---|
| Sist endret | 13. mai 2026 13:57 |
| Referanse | 25-0005/26 |
Annonsene kan være mangelfulle i forhold til lovpålagt opplysningsplikt. Før bindende avtale inngås oppfordres interessenter til å innhente komplett informasjon fra meglerforetaket, selger eller utleier.









































