Bildegalleri

- Nordvik Bolig v/Ole Martin Lorentsen har gleden av å presentere St. Olavs gate 6A! - Foto: Per Bendiksen.
Sentrum
Lekker andelsleilighet fra 2023 midt i sentrum | Gjennomgående høy standard og markterrasse | IN ordning | Gjestehybel
Prisantydning1 490 000 kr
Nøkkelinfo
- Boligtype
- Leilighet
- Eieform
- Andel
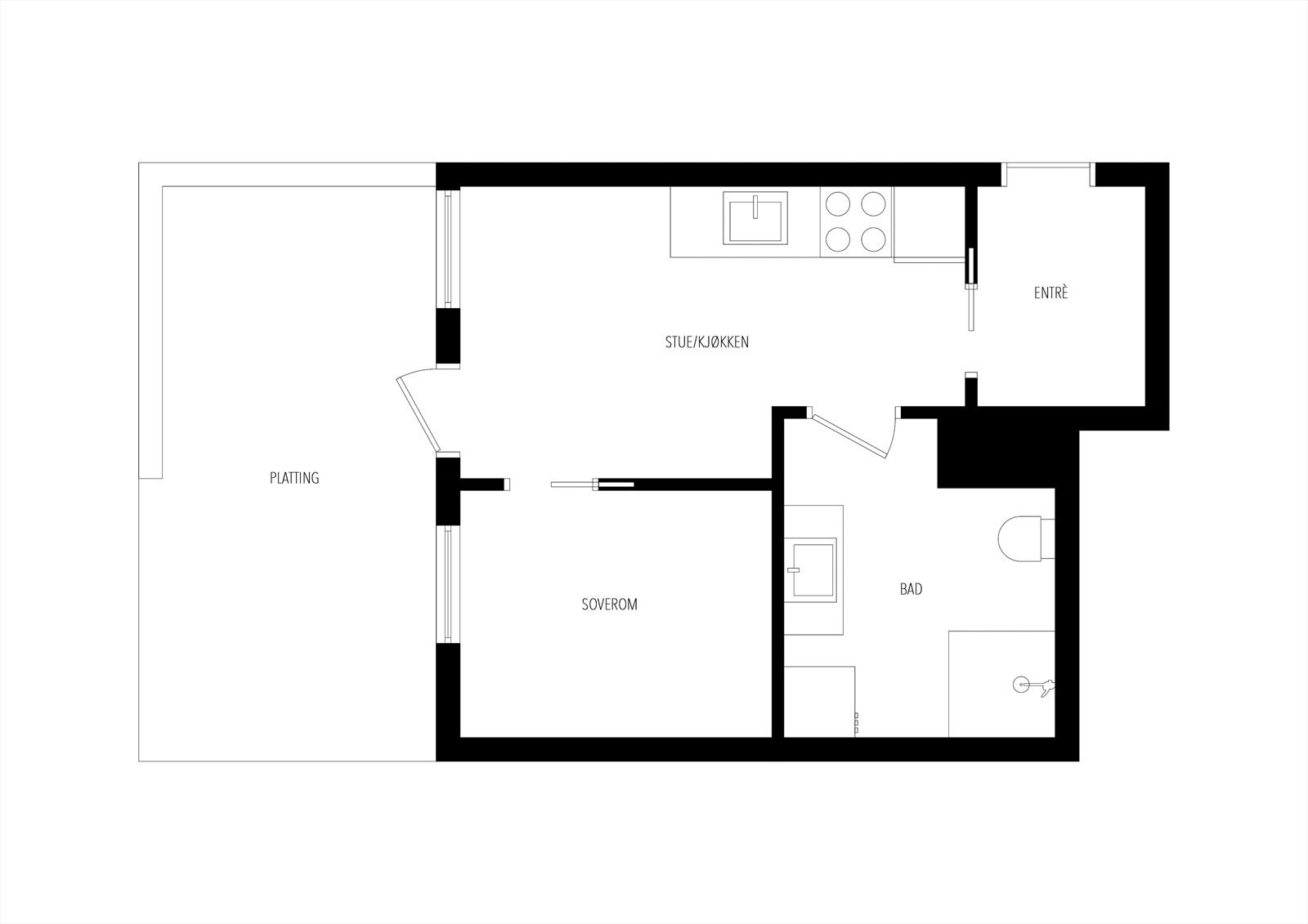
- Soverom
- 1
- Internt bruksareal
- 27 m² (BRA-i)
- Bruksareal
- 32 m²
- Eksternt bruksareal
- 5 m² (BRA-e)
- Balkong/Terrasse
- 13 m² (TBA)
- Etasje
- 2
- Byggeår
- 2023
- Energimerking
- B
- Rom
- 2
- Tomt
- Eiet
Fasiliteter
Barnevennlig
Bredbåndstilknytning
Heis
Kabel-TV
Offentlig vann/kloakk
Parkett
Rolig
Sentralt
Vaktmester-/vektertjeneste
Turterreng
Balansert ventilasjon
Om boligen
Moderne og innbydende andelsleilighet med god standard og tidsriktige materialvalg. Leiligheten fremstår lys og stilren med parkett på gulv, malte flater og energieffektive oppvarmingsløsninger
- Ferdigstilt i 2023
- Individuell nedbetaling av fellesgjeld
- Kjøkken med integrerte hvitevarer
- Plassbygde løsninger som gir optimal utnyttelse av arealet
- Vannbåren varme på bad
- Vann-til-luft varmekonvektor i stue
- Markterrasse med kveldssol og god plass til utemøbler
- Bod i kjeller på 5 kvm
- Disponerer parkeringsplass, med mulighet for senere kjøp av ny plass
- Gjestehybel
Området: - Ca. 2 minutters gange til Sandnes bussterminal med gode buss og togforbindelser
- Umiddelbar nærhet til butikker, kaféer, Sandvedparken og øvrige servicetilbud
NB: Knappen for å vise hele beskrivelsen har kun en visuell effekt.
NB: Knappen for å vise hele beskrivelsen har kun en visuell effekt.
Salgsoppgaven beskriver vesentlig og lovpålagt informasjon om eiendommen
Se komplett salgsoppgaveNyttige lenker
Nærområdet
Nordvik Stavanger
Vi vet hva det er verdt
Annonseinformasjon
| FINN-kode | 452430548 |
|---|---|
| Sist endret | 24. feb. 2026 13:50 |
| Referanse | 43-0009/26 |
Annonsene kan være mangelfulle i forhold til lovpålagt opplysningsplikt. Før bindende avtale inngås oppfordres interessenter til å innhente komplett informasjon fra meglerforetaket, selger eller utleier.


























