Bildegalleri

Stian Berglund v/ Notar Romerike har gleden av å presentere Gamle Strømsvei 83. Foto: Foto by Helene.
Innholdsrik halvpart vert.delt tomannsbolig med sentral beliggenhet på Strømmen -Solrike uteplasser - P-plass med lader
Prisantydning6 490 000 kr
Nøkkelinfo
- Boligtype
- Tomannsbolig
- Eieform
- Eier (Selveier)
- Soverom
- 3
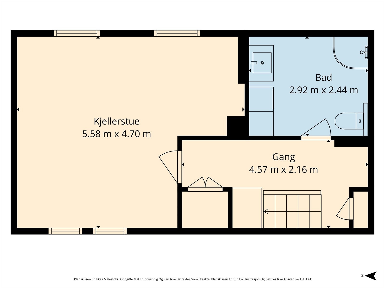
- Internt bruksareal
- 127 m² (BRA-i)
- Bruksareal
- 136 m²
- Eksternt bruksareal
- 9 m² (BRA-e)
- Byggeår
- 1948
- Energimerking
- F - Gul
- Rom
- 4
- Tomteareal
- 339 m² (eiet)
Fasiliteter
Balkong/Terrasse
Barnevennlig
Garasje/P-plass
Hage
Offentlig vann/kloakk
Parkett
Peis/Ildsted
Sentralt
Om boligen
Stian Berglund v/ Notar Romerike har gleden av å presentere Gamle Strømsvei 83 - Boligen fremstår som innholdsrik og velholdt med en god planløsning. Eiendommen er oppgradert de siste årene med blant annet nytt kjøkken, romslig markterrasse og nye gulv med gulvvarme i både 1. etasje og kjelleretasjen. Tomten er pent avskjermet med hekk som skaper en privat og lun atmosfære, samtidig som det gir et ryddig og lettstelt uteområde.
-Attraktiv halvpart av tomannsbolig over tre plan
-Gulvvarme i hele 1.etasje og hele kjelleretasjen
-Platting/markterrasse ca 150 kvm
-Lys og innbydende stue med vedovn og varmepumpe
-Designa kjøkkeninnredning med integrerte hvitevarer
-Tre soverom og to flislagte bad
-To uteboder
-Parkering med ellader
Velkommen
-Attraktiv halvpart av tomannsbolig over tre plan
-Gulvvarme i hele 1.etasje og hele kjelleretasjen
-Platting/markterrasse ca 150 kvm
-Lys og innbydende stue med vedovn og varmepumpe
-Designa kjøkkeninnredning med integrerte hvitevarer
-Tre soverom og to flislagte bad
-To uteboder
-Parkering med ellader
Velkommen
NB: Knappen for å vise hele beskrivelsen har kun en visuell effekt.
NB: Knappen for å vise hele beskrivelsen har kun en visuell effekt.
Salgsoppgaven beskriver vesentlig og lovpålagt informasjon om eiendommen
Se komplett salgsoppgaveNærområdet
Notar Romerike
God magefølelse
Annonseinformasjon
| FINN-kode | 452404744 |
|---|---|
| Sist endret | 25. feb. 2026 08:01 |
| Referanse | NO23.2623 |
Annonsene kan være mangelfulle i forhold til lovpålagt opplysningsplikt. Før bindende avtale inngås oppfordres interessenter til å innhente komplett informasjon fra meglerforetaket, selger eller utleier.



































