Bildegalleri

Stor hagedel som går rundt hjørnet av boligen. Fritt utsyn om hygeglige omgivelser. Det er også uteplass på baksiden.
SKØYEN / HARBITZALLEEN
Oppussingsobjekt! Hjørneleilighet m/stor hage og 2 uteplasser. Gode solforhold og garasjeplass. God intern beliggenhet.
Prisantydning7 800 000 kr
Nøkkelinfo
- Boligtype
- Leilighet
- Eieform
- Eier (Selveier)
- Soverom
- 2
- Internt bruksareal
- 83 m² (BRA-i)
- Bruksareal
- 88 m²
- Eksternt bruksareal
- 5 m² (BRA-e)
- Balkong/Terrasse
- 24 m² (TBA)
- Etasje
- 1
- Byggeår
- 1996
- Energimerking
- E
- Rom
- 3
- Tomteareal
- 3 104 m² (eiet)
Fasiliteter
Balkong/Terrasse
Barnevennlig
Bredbåndstilknytning
Garasje/P-plass
Hage
Heis
Kjæledyr tillatt
Kabel-TV
Offentlig vann/kloakk
Parkett
Rolig
Sentralt
Vaktmester-/vektertjeneste
Turterreng
Visning
søndag, 01. mars
13:00 – 13:45
mandag, 02. mars
16:00 – 16:45
Visningen har obligatorisk påmelding.
Kravet om påmelding har vi for å kunne gi deg og andre visningsdeltakere en best mulig opplevelse og service knyttet til gjennomføring av visningen. Velkommen!
VisningspåmeldingOm boligen
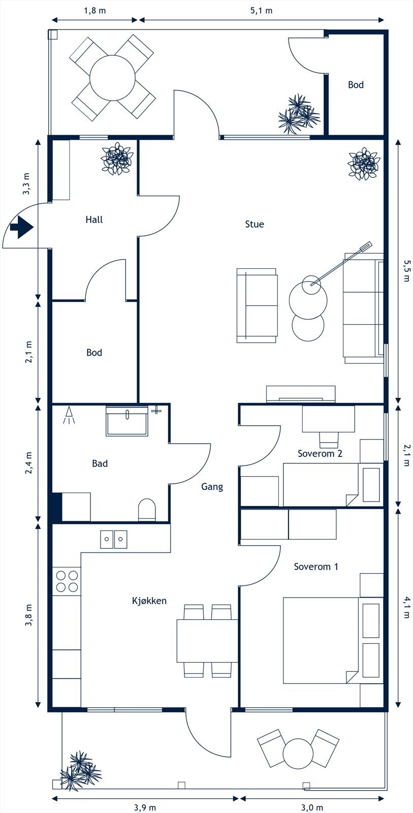
Velkommen til en meget romslig 3-roms endeleilighet med gjennomgående planløsning og attraktive kvaliteter. Her bor du sentralt, men samtidig tilbaketrukket på et stille og bilfritt område, og med kort vei til servicetilbud, ypperlige kollektivforbindelser og flotte rekreasjonsområder.
- Oppussingsobjekt med stort potensiale
- Flotte, skjermede uteplasser med hage rundt hjørnet - supre solforhold
- Lys stue med store vindusflater
- To gode soverom
- Flislagt bad
- Stor hall/entré med adkomst til romslig bod
- Utvendig bod på terrasse, samt disponibel kjellerbod - god lagringsplass
- Garasjeplass, samt godt med gjesteparkering i sameiet
- Heis til garasje
- Trappefri adkomst til leiligheten
- Frodige fellesareal med bl.a lekeplasser
- Oppussingsobjekt med stort potensiale
- Flotte, skjermede uteplasser med hage rundt hjørnet - supre solforhold
- Lys stue med store vindusflater
- To gode soverom
- Flislagt bad
- Stor hall/entré med adkomst til romslig bod
- Utvendig bod på terrasse, samt disponibel kjellerbod - god lagringsplass
- Garasjeplass, samt godt med gjesteparkering i sameiet
- Heis til garasje
- Trappefri adkomst til leiligheten
- Frodige fellesareal med bl.a lekeplasser
NB: Knappen for å vise hele beskrivelsen har kun en visuell effekt.
NB: Knappen for å vise hele beskrivelsen har kun en visuell effekt.
Salgsoppgaven beskriver vesentlig og lovpålagt informasjon om eiendommen
Se komplett salgsoppgaveNærområdet
Sem & Johnsen
Boliger utenom det vanlige
Annonseinformasjon
| FINN-kode | 452401156 |
|---|---|
| Sist endret | 26. feb. 2026 08:08 |
| Referanse | 20-26-0344 |
Annonsene kan være mangelfulle i forhold til lovpålagt opplysningsplikt. Før bindende avtale inngås oppfordres interessenter til å innhente komplett informasjon fra meglerforetaket, selger eller utleier.





























