Bildegalleri

Velkommen til Gamle Flisnesvegen 34A!
Flisnes
Tiltalende endeleilighet med 2 soverom |Stor markterrasse | Carport m/bod | Utsikt og gode solforhold
Prisantydning3 450 000 kr
Nøkkelinfo
- Boligtype
- Leilighet
- Eieform
- Eier (Selveier)
- Soverom
- 2
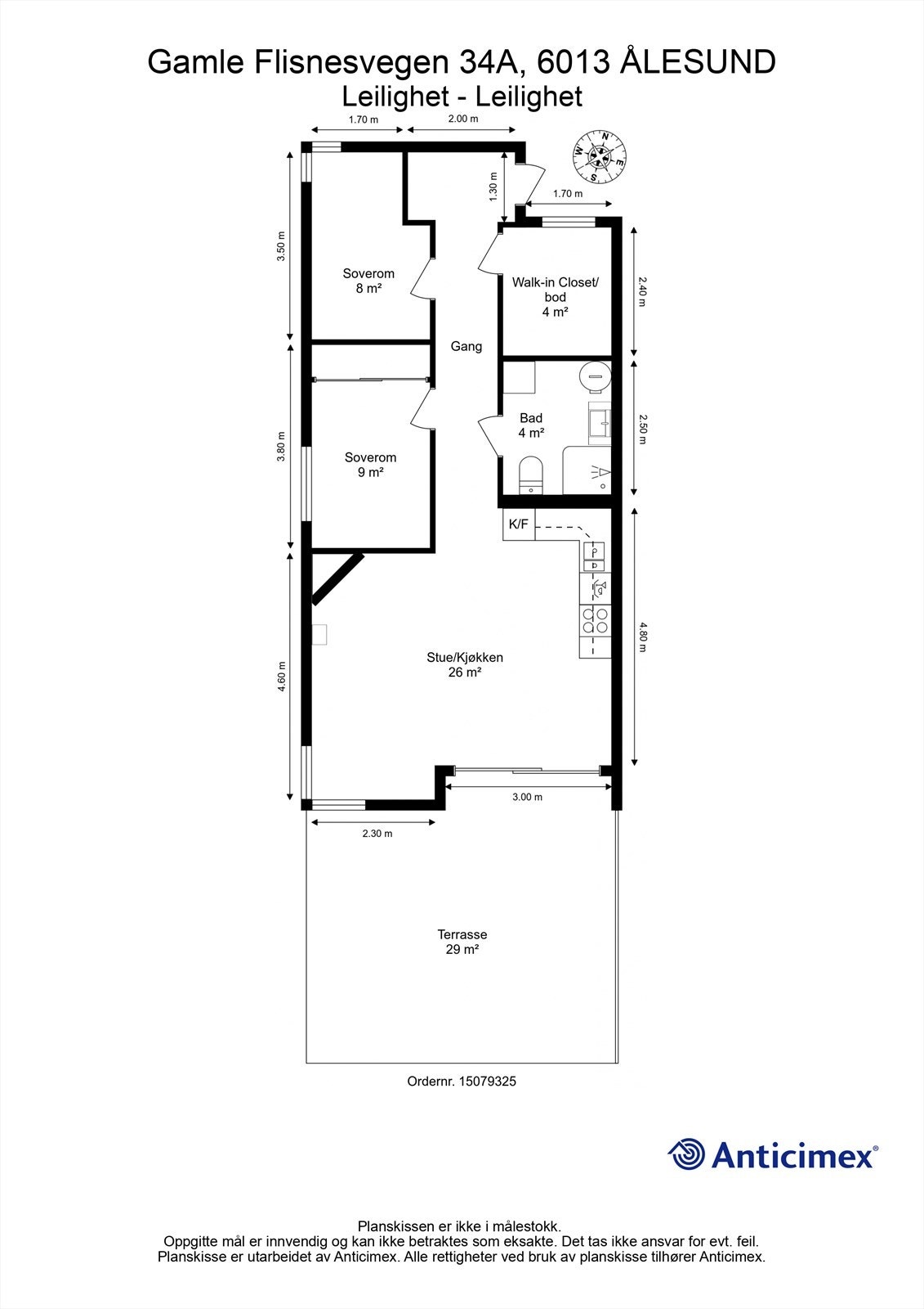
- Internt bruksareal
- 63 m² (BRA-i)
- Bruksareal
- 68 m²
- Eksternt bruksareal
- 5 m² (BRA-e)
- Balkong/Terrasse
- 29 m² (TBA)
- Etasje
- 1
- Byggeår
- 2009
- Energimerking
- D - Gul
- Rom
- 3
- Tomteareal
- 1 559 m² (eiet)
Fasiliteter
Balkong/Terrasse
Barnevennlig
Garasje/P-plass
Kjæledyr tillatt
Offentlig vann/kloakk
Peis/Ildsted
Rolig
Sentralt
Utsikt
Bademulighet
Fiskemulighet
Turterreng
Lademulighet
Visning
tirsdag, 03. mars
16:30 – 17:30
For å delta på visning, ber vi om at du melder deg på. Da sikrer vi at du får nødvendig informasjon og at det er satt av tilstrekkelig med tid. Kontakt megler dersom annet tidspunkt ønskes. Husk å lese salgsoppgaven før visningen, så du stiller forberedt. NB. Visning utgår dersom det ikke er noen påmeldte.
Ønsker du kun å bli holdt orientert, kan du fra eiendommens hjemmeside få varsel om solgtpris, eller kontakte megler.
VisningspåmeldingOm boligen
Velkommen til Gamle Flisnesvegen 34A! En moderne 3-roms selveierleilighet på ett plan med stor terrasse og parkering i carport. Her på Flisnes bor du i et trygt og barnevennlig nabolag med kort vei til alt du trenger i hverdagen, som barnehage, skole og butikk. Dette er en praktisk leilighet i første etasje med alt på ett plan. Fra stuen er det direkte utgang til en romslig terrasse på 29 m², som gir en herlig forlengelse av boligen. En stemningsfull gasspeis i stuen sørger for ekstra varme og hygge.
Kort fortalt:
* Stor terrasse på 29 m²
* Parkering i carport og ekstern bod på 5 m²
* Praktisk planløsning i 1. etasje
* Gasspeis i stue
* Umiddelbar nærhet til barnehage og busstopp
Velkommen til visning!
Kort fortalt:
* Stor terrasse på 29 m²
* Parkering i carport og ekstern bod på 5 m²
* Praktisk planløsning i 1. etasje
* Gasspeis i stue
* Umiddelbar nærhet til barnehage og busstopp
Velkommen til visning!
NB: Knappen for å vise hele beskrivelsen har kun en visuell effekt.
NB: Knappen for å vise hele beskrivelsen har kun en visuell effekt.
Salgsoppgaven beskriver vesentlig og lovpålagt informasjon om eiendommen
Se komplett salgsoppgaveNyttige lenker
Nærområdet
Krogsveen Ålesund
Verdien av en god megler.
Annonseinformasjon
| FINN-kode | 452397595 |
|---|---|
| Sist endret | 23. feb. 2026 13:32 |
| Referanse | KR76.2633 |
Annonsene kan være mangelfulle i forhold til lovpålagt opplysningsplikt. Før bindende avtale inngås oppfordres interessenter til å innhente komplett informasjon fra meglerforetaket, selger eller utleier.






















































