Bildegalleri

Kjøkken/stue
Sentral, påkostet og tiltalende 2+2 (4)-roms selveierleilighet, med balkong
Nøkkelinfo
- Boligtype
- Leilighet
- Eieform
- Eier (Selveier)
- Soverom
- 2
- Internt bruksareal
- 76 m² (BRA-i)
- Bruksareal
- 83 m²
- Eksternt bruksareal
- 7 m² (BRA-e)
- Etasje
- 3
- Byggeår
- 1932
- Tomteareal
- 86 m² (eiet)
Fasiliteter
Om boligen
Unik leilighet med utleiedel, stilig oppusset i 2023, midt i sentrum.
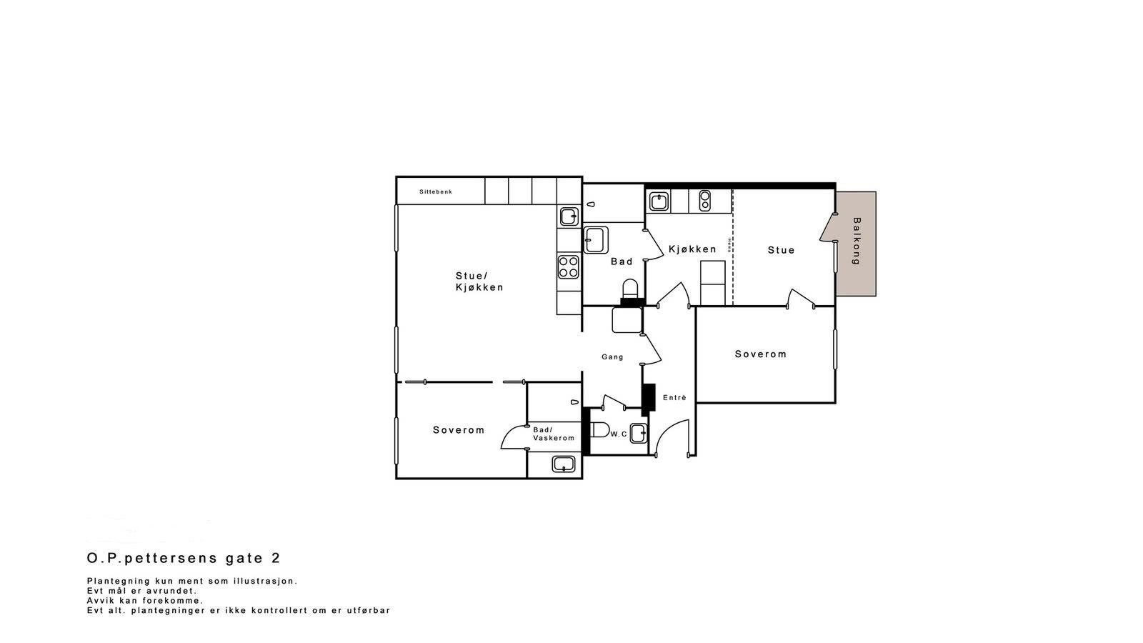
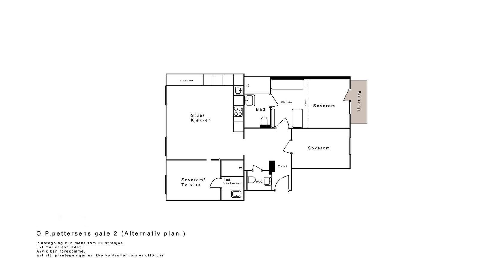
I hjertet av Fredrikstad sentrum finner du O.P. Pettersens gate 2 - En sjelden mulighet av en 4- roms leilighet, innredet som 2- roms + 2 roms hybel.
Leiligheten er stilig oppusset i 2023 med høy standard, den ligger fint til i byggets 3. etasje, og byr på en svært praktisk planløsning. Hoveddelen består av en luftig stue hvor et lekkert kjøkken ligger i åpen løsning. Innenfor stuen finner du et soverom med direkte inngang til flislagt og moderne bad. Hoveddelen byr også på et stilig separat toalettrom. Videre finner du en romslig entré som har god plass til ønsket møblement. Hybeldelen byr på åpen kjøkken/stueløsning, et flott baderom med vaskemaskin og et romslig soverom. En perfekt løsning for utleie eller som en del av hovedboligen.
Adgang til utleie
Seksjonseier kan fritt leie ut sin egen seksjon. Det kan i midlertidig følge av sameiets vedtekter om at styret skal godkjenne leietager.
Hybelen har et løpende leieforhold med utløp 01.05.2026. Husleien er etter denne leiekontrakten 12 900,- per mnd inkludert internett, oppvarming og strøm. Det opplyses om at hybelen ikke har egen teller for strømforbruk.
Helhetlig en moderne og innholdsrik leilighet med gjennomtenkte løsninger - I sentrum, hvor du får det beste byen har å tilby på begge sider av elven.
Leiligheten disponerer også en kjellerbod på 7 kvm.
Beliggenhet
Leiligheten ligger flott til i O.P. Pettersens gate 2, midt i sentrum av Fredrikstad. Bygården, kjent som Telefongården, er en av Fredrikstads første funksjonalistiske bygninger, tegnet i 1931 av arkitektene Arthur Brynhildsen og Oscar Sandlien. Bygget er et fredet kulturminne og et tydelig eksempel på 1930-tallets modernistiske stil, med sitt markante vindusbånd og fasade i pusset tegl. Telefongården er en viktig del av byens arkitekturhistorie, og området rundt bærer preg av godt bevarte bygårder i samme stil.
Leiligheten ligger ved inngangen til det urbane og nyskapende kvartalet "Lille Brooklyn" og Nygaardsplassen. Tenk å kun rusle over gaten for å handle herlig og helt fersk gjærbakst til helgefrokosten. Når kvelden sniker på så lokker kvartalet med både restaurant Køl og ZZ pizza. Ved juletider pyntes kvartalet stemningsfullt med sitt eget julemarked. I Fredrikstad er det uten tvil flest sommermåneder og her ser en Vesterelven med den fantastiske bryggepromenaden fra leilighetens vinduer. I sommermånedene yrer det av liv her og både Restaurantene og båtene ligger tett.
Med leilighetens beliggenhet i sentrum så får den også en naturlig kort vei til Værstetorvet- Fredrikstads nye og fantastiske handlesenter med egen mathall. Værste som bydel tilbyr hele området en ny urbanitet og gir byen et hint av storbypreg samtidig som den lokale sjarmen er godt ivaretatt.
Annet
Nærområdet byr også på et variert utvalg av aktivitetstilbud for den aktive.
Fredrikstad stadion ligger 6 minutter unna til fots. Treningssentre som Skyfitnes, Evo og Sats er alle lett tilgjengelige, og ligger kun ca 5 minutters gangavstand fra leiligheten.
Offentlig transport er svært godt utbygd i området. Fredrikstad bussterminal, med hele 29 busslinjer, ligger kun 3 minutter unna til fots, og Fredrikstad stasjon, med togforbindelser til blant annet Oslo, ligger 14 minutter unna. For de som ønsker å utforske nærområdet, er det gode turmuligheter i nærheten, med skog og mark som kan nås på kort tid.
For barnefamilier og studenter er beliggenheten ideell, med flere skoler og barnehager i nærheten. Trara skole (1.-7. trinn) ligger bare 12 minutters gange unna, og Wang Ung Fredrikstad (8.-10. trinn) er innen 15 minutter til fots. For de yngste barna er St. Hansfjellet barnehage kun 6 minutter unna.
Prisantydningen er basert på vurderingen som ble gjort i fjor da jeg forsøkte å selge. Denne gangen har jeg valgt å gjennomføre salgsprosessen uten megler.
Beliggenheten til leiligheten er optimal, midt i byen samtidig som det beste fra begge sider av elven kan nytes.
Omkostninger
4 600 000 kr (Prisantydning)
127 491 kr (Andel av fellesgjeld)
---
4 727 491 kr (Pris inkl. fellesgjeld)
Omkostninger
10 900 kr (HELP boligkjøperforsikring (valgfritt))
118 170 kr (Dokumentavgift)
545 kr (Tinglysing av pantedokument)
545 kr (Tinglysing av skjøte)
---
130 160 kr (Omkostninger totalt)
---
4 857 651 kr (Totalpris inkl. omkostninger)
NB: Regnestykket forutsetter at det kun tinglyses én låneobligasjon og at eiendommen selges til prisantydning.
Det tas forbehold om endringer i offentlige og private gebyrer.
Selger er selv ansvarlig for følgende gebyr:
6 725 kr (Eierskiftegebyr)
545 kr (Panterett med urådighet)
Salgsoppgaven beskriver vesentlig og lovpålagt informasjon om eiendommen
Se komplett salgsoppgaveNyttige lenker
Nærområdet
Annonsene kan være mangelfulle i forhold til lovpålagt opplysningsplikt. Før bindende avtale inngås oppfordres interessenter til å innhente komplett informasjon fra meglerforetaket, selger eller utleier.
































