


Velkommen til Karl Staaffs vei 71, presentert av Schala & Partners ved Sigurd Robertsen, tlf. 938 36 141.
Velkommen til Karl Staaffs vei 71!
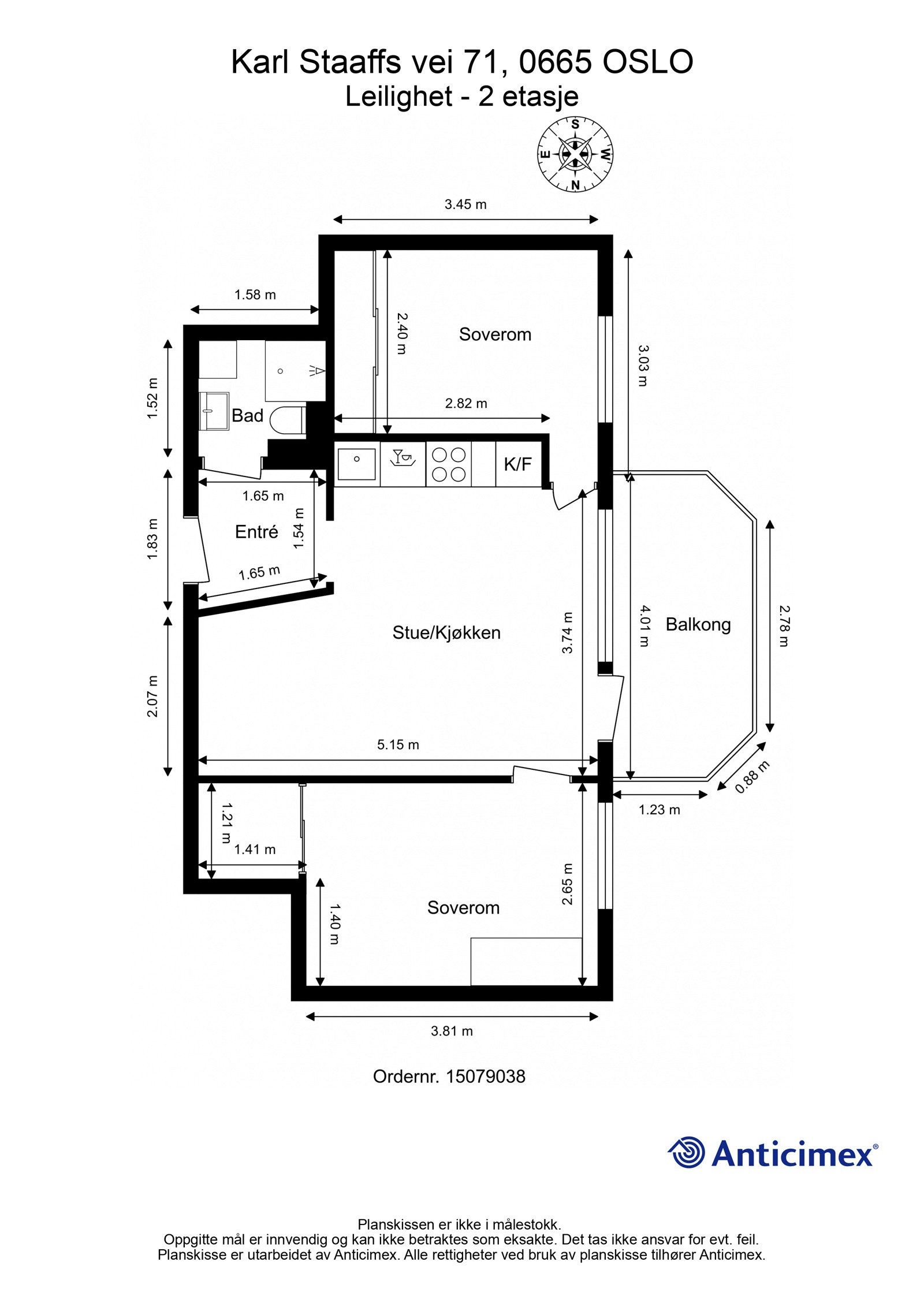
En lekker og påkostet 3-roms leilighet med sentral beliggenhet i et attraktivt boligområde. Nabolaget byr på grønne omgivelser, en rekke servicefasiliteter og et godt kollektivtilbud. Leiligheten ble betydelig pusset opp i 2024 med nytt gulv, nytt lekkert kjøkken, nytt el-anlegg, og alle overflater ble sparklet og malt. Videre ble baderommet rehabilitert i regi av borettslaget i 2025. Her er det gjennomgående god standard.
Leiligheten består av entré, kjøkken i åpen løsning mot stuen og to soverom av god størrelse. Videre er det utgang fra stuen til en herlig, vestvendt balkong med gode solforhold.
Salgsoppgaven beskriver vesentlig og lovpålagt informasjon om eiendommen
Se komplett salgsoppgaveKarl Staaffs vei 71
på annonsen
prisantydning per kvadratmeter
Pris per m² ligger 3 887 kr over snittet for leiligheter i Helsfyr - Sinsen.
Grafen viser antall leiligheter solgt i Helsfyr - Sinsen siste året fordelt på pris per m² - totalt 1 639 leiligheter
Antall boliger
Kvadratmeterpris tilsvarer prisantydning pluss fellesgjeld per kvadratmeter (p-rom eller BRA-i). Prisene i grafen er avrundet til nærmeste 1000 kr.












| FINN-kode | 452374286 |
|---|---|
| Sist endret | 29. mars 2026 14:24 |
| Referanse | 17260016 |
Annonsene kan være mangelfulle i forhold til lovpålagt opplysningsplikt. Før bindende avtale inngås oppfordres interessenter til å innhente komplett informasjon fra meglerforetaket, selger eller utleier.