Bildegalleri

Velkommen til Tidemands gate 31 - Presentert av Viktor Wiese v/Privatmegleren Dyve og Partnere
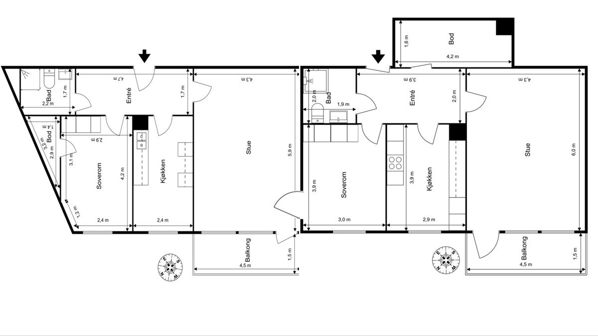
To leiligheter selges samlet på totalt 132 kvm + 2 balkonger på 14 kvm totalt | Oppussing | Heis | P-plass kan kjøpes
Nøkkelinfo
- Boligtype
- Leilighet
- Eieform
- Andel
- Soverom
- 2
- Internt bruksareal
- 132 m² (BRA-i)
- Bruksareal
- 132 m²
- Balkong/Terrasse
- 14 m² (TBA)
- Etasje
- 3
- Byggeår
- 1974
- Energimerking
- G - Rød
- Rom
- 4
- Tomteareal
- 838 m² (eiet)
Fasiliteter
Visning
Om boligen
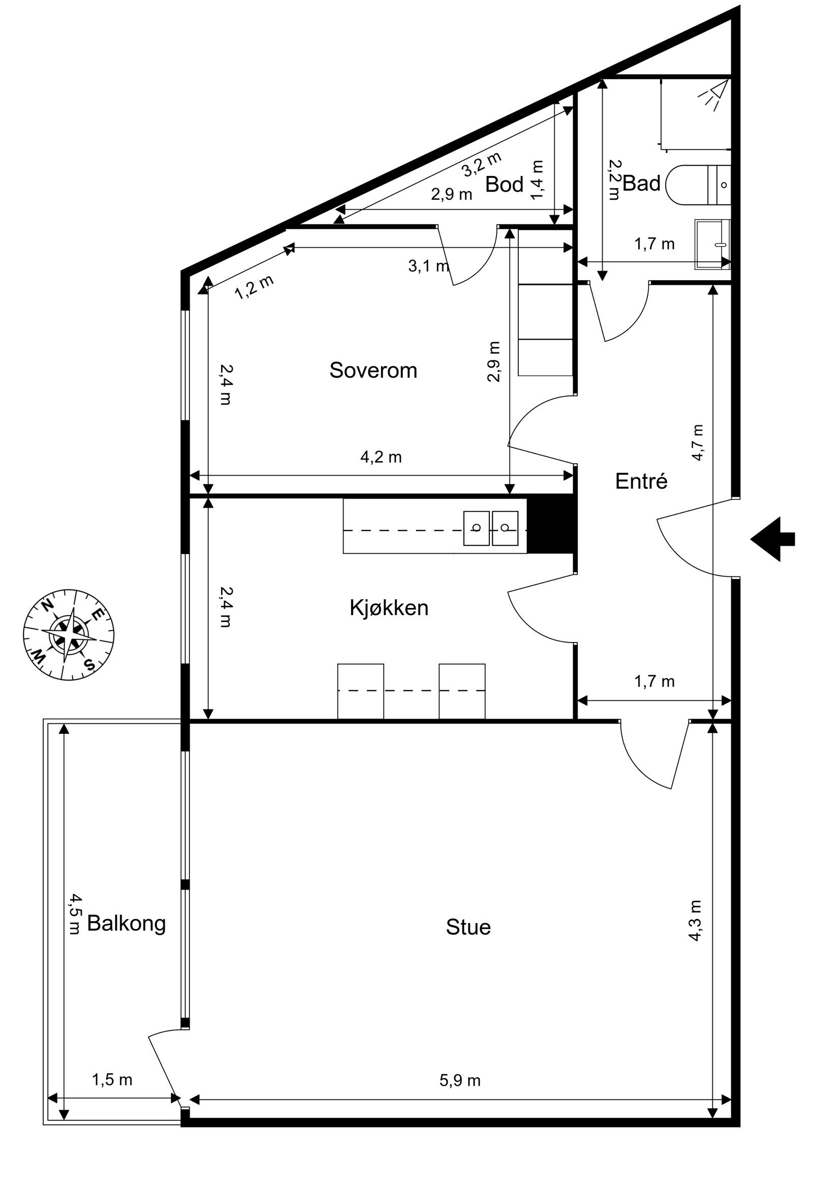
Velkommen til Tidemanns gate 31 - her har vi gleden av å presentere en innholdsrik og lys 4-roms leilighet med to flotte balkonger. Leiligheten ligger i et svært populært og etterspurt strøk, rett ved Vestkanttorget. Svært god intern beliggenhet i byggets tredje etasje med heisadkomst.
To leiligheter selges samlet. Leilighetene er per i dag byggemeldt som to separate boenheter og utgjør to andeler i borettslaget. Se salgsoppgave for ytterligere info.
Kvaliteter:
- Lys og stor 4-roms leilighet
- Oppussing/moderniseringsbehov
- To balkonger på ca. 14 kvm
- Romslige soverom og fleksibel planløsning
- Mulighet for kjøp av bruksrett til garasjeplass for kr. 800 000,-
- Kort avstand til Frognerparken med Frognerbadet og tennisbaner, Majorstuen, Briskeby og Frogner
Velkommen til visning!
Salgsoppgaven beskriver vesentlig og lovpålagt informasjon om eiendommen
Se komplett salgsoppgaveNyttige lenker
Nærområdet

PrivatMegleren Dyve & Partnere
Annonseinformasjon
| FINN-kode | 451999969 |
|---|---|
| Sist endret | 20. feb. 2026 20:58 |
| Referanse | 159250813 |
Annonsene kan være mangelfulle i forhold til lovpålagt opplysningsplikt. Før bindende avtale inngås oppfordres interessenter til å innhente komplett informasjon fra meglerforetaket, selger eller utleier.























