Bildegalleri

Velkommen til Stangevegen 100 - Eiendom med enebolig, dobbelgarasje og anneks!
Hamar
Fin og velholdt eiendom med sentrumsnær beliggenhet, anneks og dobbelgarasje. Gangavstand til "alt"!
Prisantydning5 500 000 kr
Nøkkelinfo
- Boligtype
- Enebolig
- Eieform
- Eier (Selveier)
- Soverom
- 4
- Internt bruksareal
- 177 m² (BRA-i)
- Bruksareal
- 285 m²
- Eksternt bruksareal
- 108 m² (BRA-e)
- Byggeår
- 1900
- Energimerking
- G - Rød
- Rom
- 5
- Tomteareal
- 1 016 m² (eiet)
Fasiliteter
Balkong/Terrasse
Garasje/P-plass
Hage
Offentlig vann/kloakk
Parkett
Peis/Ildsted
Sentralt
Turterreng
Visning
tirsdag, 03. mars
17:30 – 18:30
For å delta på visning, ber vi om at du melder deg på. Da sikrer vi at du får nødvendig informasjon og at det er satt av tilstrekkelig med tid. Kontakt megler dersom annet tidspunkt ønskes. Husk å lese salgsoppgaven før visningen, så du stiller forberedt.
Ønsker du kun å bli holdt orientert, kan du fra eiendommens hjemmeside få varsel om solgtpris, eller kontakte megler.
VisningspåmeldingOm boligen
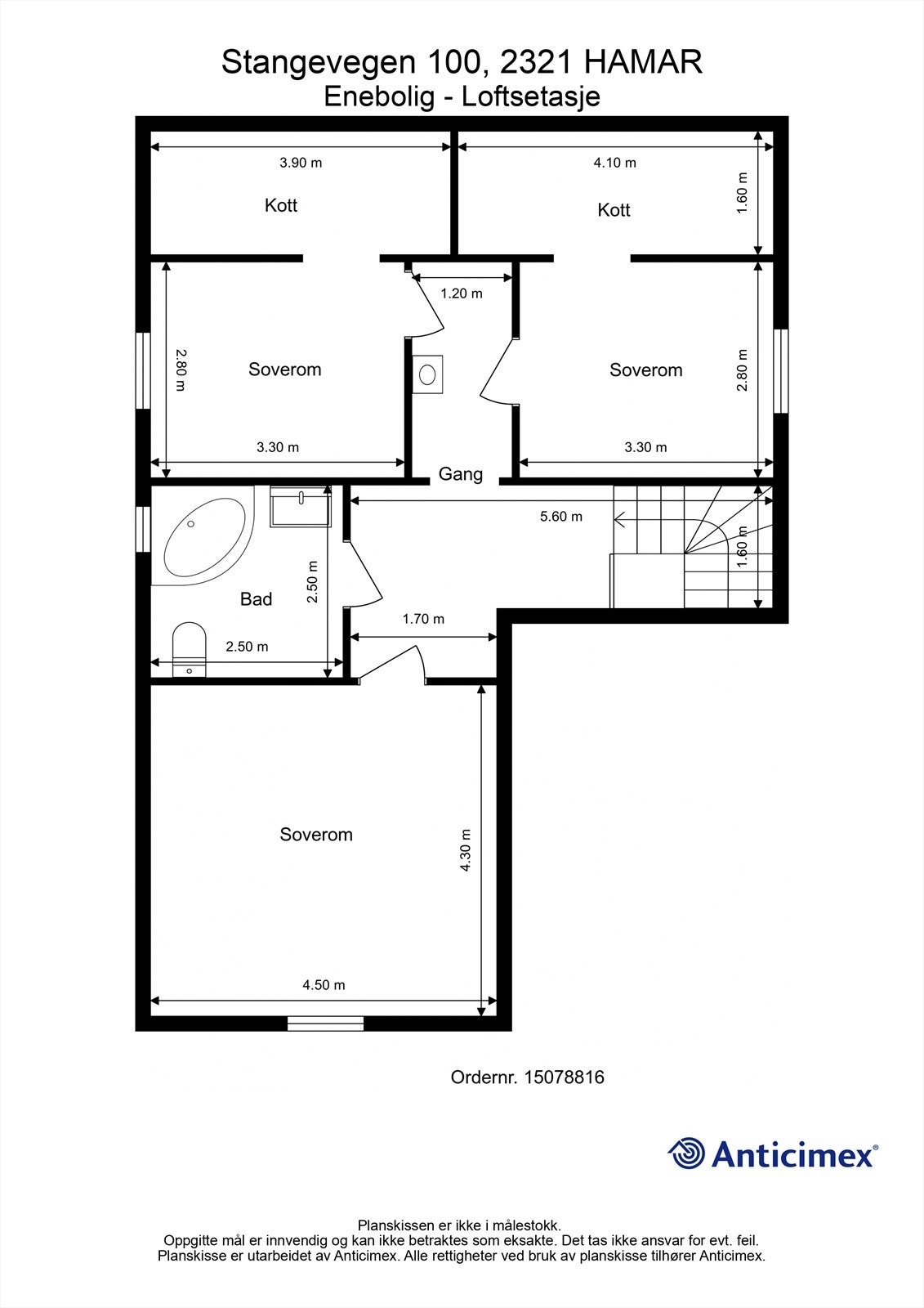
Velkommen til Stangevegen 100 som er en innholdsrik og sentrumsnær eiendom hvor man bor med gangavstand til det meste. Eiendommen består av enebolig, dobbelgarasje og anneks som sammen danner et hyggelig og pent tun. Hovedhuset går over to plan og har en fin rominndeling som inneholder stue, kjøkken, 4 soverom, baderom og gjestetoalett. Anneks ble oppført i 2009, går over to plan og inneholder kjøkken og stue i åpen løsning, baderom (fra 2019) og loftsetasje - dette er et meget fint utleieobjekt rett i utkant av sentrum. Dobbelgarasje i fin stil som ble oppført i 2008 med lagerrom/bod i 2. etasje og snekkerverksted/bod i 1. etasje. Det er plass til øvrig parkering på tomten, samt det er en pent opparbeidet tomt med flere uteplasser.
Velkommen til en hyggelig visning!
Velkommen til en hyggelig visning!
NB: Knappen for å vise hele beskrivelsen har kun en visuell effekt.
NB: Knappen for å vise hele beskrivelsen har kun en visuell effekt.
Salgsoppgaven beskriver vesentlig og lovpålagt informasjon om eiendommen
Se komplett salgsoppgaveNyttige lenker
Nærområdet
Krogsveen Hamar
Verdien av en god megler.
Annonseinformasjon
| FINN-kode | 451967637 |
|---|---|
| Sist endret | 21. feb. 2026 07:45 |
| Referanse | KR65.2632 |
Annonsene kan være mangelfulle i forhold til lovpålagt opplysningsplikt. Før bindende avtale inngås oppfordres interessenter til å innhente komplett informasjon fra meglerforetaket, selger eller utleier.


































