Bildegalleri

EiendomsMegler 1 v/Morten Høvik har gleden av å presentere Tømmervågvegen 3517! Foto: EFKT

Fin og oppgradert enebolig med naust og lekestue beliggende i etablert og landlig boligområde på Leira!

Prisantydning1 990 000 kr
Totalpris
2 040 840 kr
Omkostninger
50 840 kr
Kommunale avg.
11 665 kr per år
Formuesverdi
443 849 kr

Nøkkelinfo

Boligtype
Enebolig
Eieform
Eier (Selveier)
Soverom
4
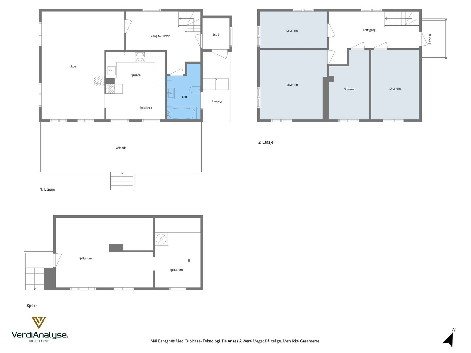
Internt bruksareal
124 m² (BRA-i)
Bruksareal
197 m²
Eksternt bruksareal
73 m² (BRA-e)
Balkong/Terrasse
26 m² (TBA)
Byggeår
1954
Rom
5
Tomteareal
1 429 m² (eiet)

Les mer om bruksareal her

Fasiliteter

Barnevennlig
Balkong/Terrasse
Garasje/P-plass
Fiskemulighet
Peis/Ildsted
Turterreng
Aircondition
Sentralt
Bredbåndstilknytning
Rolig
Bademulighet

Visning

mandag, 16. mars
16:30 – 17:30
Våre visninger har påmelding. Dette gjør vi for å kunne yte bedre service for våre kunder. Verdifullt for boligkjøper og for oss. Vi anbefaler at salgsoppgaven lastes ned digitalt før visning, og ring oss gjerne på forhånd for spørsmål om boligen. Passer ikke angitt tidspunkt, ta kontakt så finner vi en løsning. Skulle det mot formodning ikke være påmeldte til angitt visningstidspunkt vil ikke visning bli gjennomført.
Visningspåmelding

Om boligen

EiendomsMegler 1 v/Morten Høvik har gleden av å presentere Tømmervågvegen 3517!

Fin og oppgradert enebolig med naust og lekestue beliggende i etablert og landlig boligområde på Leira på Tustna. Kort avstand til busstopp, skole og servicetilbud. Beliggenheten er skjermet og rolig, med gangavstand til sjøen og et attraktivt nærområde for friluftsliv, fiske og turer. Eiendommen har et lunt og solrikt tun, og har stirett helt ned til naustet. Boligen har hatt flere større oppgraderinger de senere år, blant annet nytt tak på baksiden (2016), etterisolerte fasader med ny kledning og vinduer (2016-2024), oppgradert kjøkken (2019), delvis renovert bad (2020) og nymalte fasader (2025). I 2022 ble tak på naustet tekket på nytt, skiftet bordkledning og malt hele bygget.

Velkommen til visning!

Salgsoppgaven beskriver vesentlig og lovpålagt informasjon om eiendommen

Se komplett salgsoppgave

Nærområdet

Annonseinformasjon

FINN-kode451950797
Sist endret03. mars 2026 16:14
Referanse17250504

Rapporter annonse

Annonsene kan være mangelfulle i forhold til lovpålagt opplysningsplikt. Før bindende avtale inngås oppfordres interessenter til å innhente komplett informasjon fra meglerforetaket, selger eller utleier.