Bildegalleri

DNB Eiendom V/Thorvald Kjeldaas har gleden av å presentere Eikelund 88 - En lekker enebolig på enden av rekken i et attraktivt og barnevennlig boligområde.
Oppgradert enebolig med unik stue- og kjøkkenløsning |Flott utsikt og gode solforhold | Parkering i garasje m/elbillader
Prisantydning4 790 000 kr
Nøkkelinfo
- Boligtype
- Enebolig
- Eieform
- Eier (Selveier)
- Soverom
- 3
- Internt bruksareal
- 90 m² (BRA-i)
- Bruksareal
- 97 m²
- Eksternt bruksareal
- 7 m² (BRA-e)
- Balkong/Terrasse
- 88 m² (TBA)
- Etasje
- 2
- Byggeår
- 2022
- Energimerking
- B - Rød
- Rom
- 4
- Tomteareal
- 133 m² (eiet)
Fasiliteter
Balkong/Terrasse
Barnevennlig
Bredbåndstilknytning
Garasje/P-plass
Kjæledyr tillatt
Kabel-TV
Offentlig vann/kloakk
Sentralt
Utsikt
Turterreng
Balansert ventilasjon
Visning
søndag, 01. mars
12:30 – 13:15
Velkommen til visning! Meld deg på ved å trykke "visningspåmelding" i våre boligannonser. Ta gjerne kontakt med megler i forkant av visningen om du har spørsmål.
VisningspåmeldingOm boligen
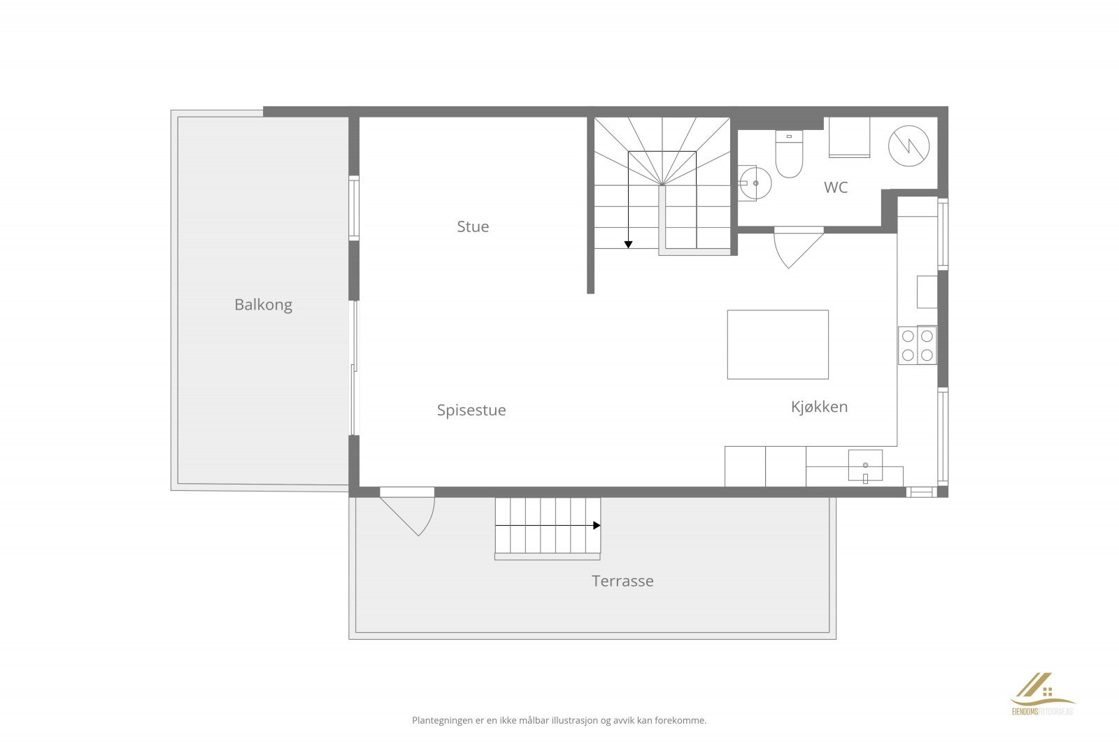
Eikelund 88 er en moderne og lekker enebolig fra 2022 med unik stue-og kjøkkenløsning og svært attraktiv beliggenhet på enden av rekken i et barnevennlig nabolag ved Eikelund i Holmestrand. Her bor man sentralt til med kort vei til dagligvarebutikker, barnehage, skole, treningssenter, togstasjon og flott turterreng.
Kort forklart:
- Unikt og oppgradert oppholdsrom med stue og kjøkken i åpen løsning
- Et helfliset og delikat innredet bad
- Ekstra toalettrom
- Stilrent og stort kjøkken med kjøkkenøy
- Utvendig bod
- Hage og overbygget terrasse på bakkeplan
- Stor balkong på 14 kvm med utgang fra stuen
- Herlig takterrasse på 39 kvm med gode solforhold og flott utsikt. Tilrettelagt for jacuzzi
- Parkering i garasjeanlegg m/elbillader og vaskehall!
- Lave felleskost
- Innenfor 5 år garanti
Kort forklart:
- Unikt og oppgradert oppholdsrom med stue og kjøkken i åpen løsning
- Et helfliset og delikat innredet bad
- Ekstra toalettrom
- Stilrent og stort kjøkken med kjøkkenøy
- Utvendig bod
- Hage og overbygget terrasse på bakkeplan
- Stor balkong på 14 kvm med utgang fra stuen
- Herlig takterrasse på 39 kvm med gode solforhold og flott utsikt. Tilrettelagt for jacuzzi
- Parkering i garasjeanlegg m/elbillader og vaskehall!
- Lave felleskost
- Innenfor 5 år garanti
NB: Knappen for å vise hele beskrivelsen har kun en visuell effekt.
NB: Knappen for å vise hele beskrivelsen har kun en visuell effekt.
Salgsoppgaven beskriver vesentlig og lovpålagt informasjon om eiendommen
Se komplett salgsoppgaveNyttige lenker
Nærområdet
DNB Eiendom AS
Verdifulle salg
Annonseinformasjon
| FINN-kode | 451938364 |
|---|---|
| Sist endret | 21. feb. 2026 17:03 |
| Referanse | 608260028 |
Annonsene kan være mangelfulle i forhold til lovpålagt opplysningsplikt. Før bindende avtale inngås oppfordres interessenter til å innhente komplett informasjon fra meglerforetaket, selger eller utleier.


















































