Bildegalleri

Velkommen til Mosekollen 2 - En sjarmerende og koselig familiebolig over 3 plan med en solrik og stor hage. Attraktiv beliggende på enden.
Familiebolig på Veungsdalen
Enebolig o/ 3 plan med en solrik hage & terrasse på 30 kvm - 4 soverom - Attraktiv endetomt med plass til 3 biler
Prisantydning3 590 000 kr
Nøkkelinfo
- Boligtype
- Enebolig
- Eieform
- Eier (Selveier)
- Soverom
- 4
- Internt bruksareal
- 163 m² (BRA-i)
- Bruksareal
- 172 m²
- Eksternt bruksareal
- 9 m² (BRA-e)
- Balkong/Terrasse
- 35 m² (TBA)
- Etasje
- 3
- Byggeår
- 1971
- Energimerking
- D
- Rom
- 6
- Tomteareal
- 346 m² (eiet)
Fasiliteter
Balkong/Terrasse
Barnevennlig
Bredbåndstilknytning
Garasje/P-plass
Hage
Kjæledyr tillatt
Offentlig vann/kloakk
Parkett
Peis/Ildsted
Rolig
Sentralt
Turterreng
Om boligen
Mosekollen 2 er en fantastisk familiebolig fordelt over 3 etasjer og innehar en praktisk planløsning.
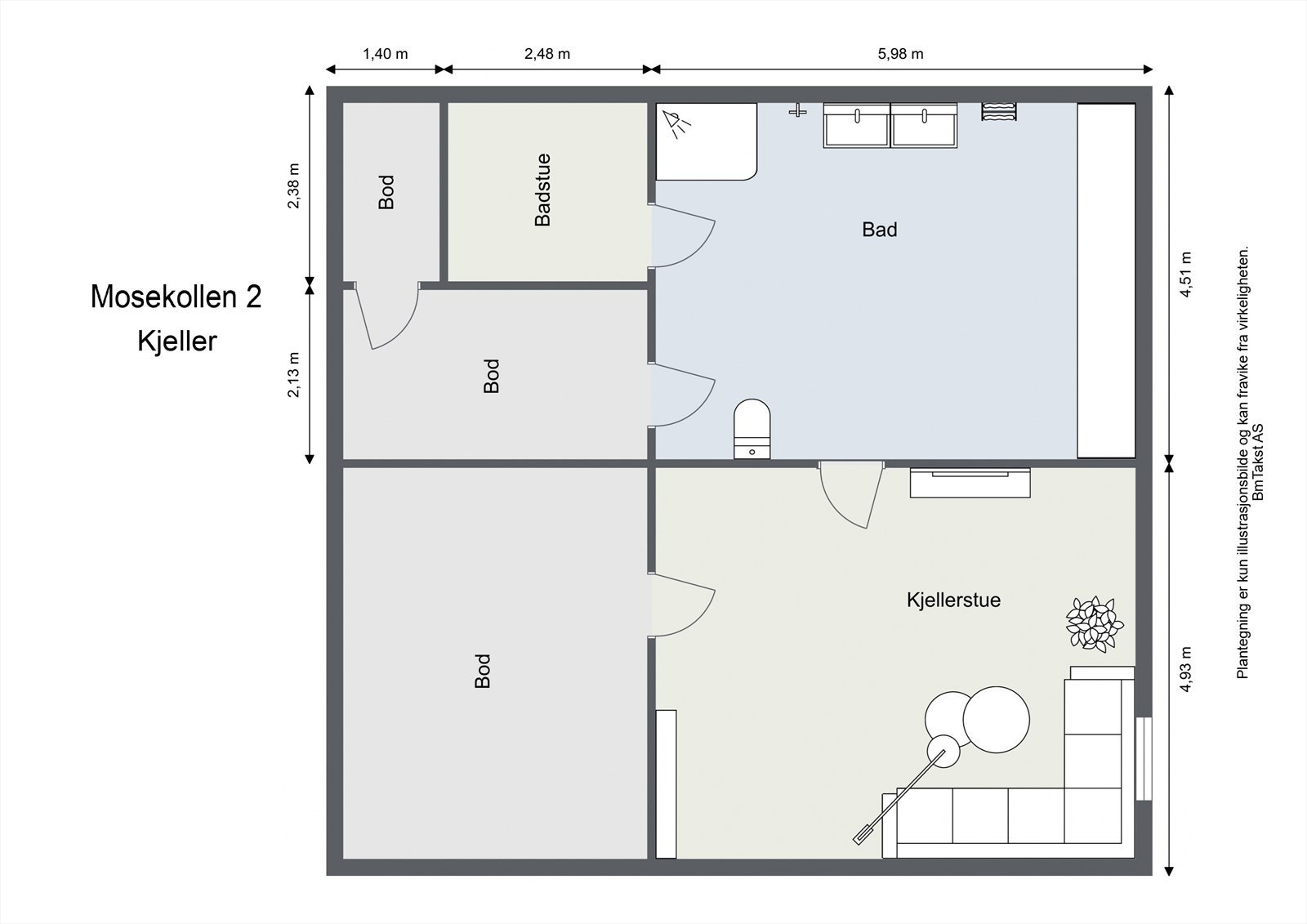
Kjeller: Påkostet og innredet kjeller med tv-stue og stort bad/vaskerom med badstue. Med varmekabler i gulv og isolerte vegger kan man enkelt benytte kjelleren hele året. I tillegg til rikelig med oppbevaringsplass på 26 kvm boder.
1 etg: Påbygget vindfang med god skapplass. Nymalt og pent trekjøkken. Luftig og meget lys stue med utgang til solrik skjermet terrasse på 30 kvm. Trappeløp ned til hagen.
2 etg: Varmepumpe montert i trappeløp som sørger for god oppvarming. 4 gode soverom, der en har utgang til balkong. Bod for ekstra oppbevaring.
Tomt: Attraktiv & innholdsrik endetomt. Stor og solrik terrasse og hage med uthus. Mulighet for opptil 3 biloppstillingsplasser.
Må sees!
Kjeller: Påkostet og innredet kjeller med tv-stue og stort bad/vaskerom med badstue. Med varmekabler i gulv og isolerte vegger kan man enkelt benytte kjelleren hele året. I tillegg til rikelig med oppbevaringsplass på 26 kvm boder.
1 etg: Påbygget vindfang med god skapplass. Nymalt og pent trekjøkken. Luftig og meget lys stue med utgang til solrik skjermet terrasse på 30 kvm. Trappeløp ned til hagen.
2 etg: Varmepumpe montert i trappeløp som sørger for god oppvarming. 4 gode soverom, der en har utgang til balkong. Bod for ekstra oppbevaring.
Tomt: Attraktiv & innholdsrik endetomt. Stor og solrik terrasse og hage med uthus. Mulighet for opptil 3 biloppstillingsplasser.
Må sees!
NB: Knappen for å vise hele beskrivelsen har kun en visuell effekt.
NB: Knappen for å vise hele beskrivelsen har kun en visuell effekt.
Salgsoppgaven beskriver vesentlig og lovpålagt informasjon om eiendommen
Se komplett salgsoppgaveNyttige lenker
Nærområdet
Nordvik Ullevål
Annonseinformasjon
| FINN-kode | 451936838 |
|---|---|
| Sist endret | 24. feb. 2026 08:05 |
| Referanse | 23-0046/26 |
Annonsene kan være mangelfulle i forhold til lovpålagt opplysningsplikt. Før bindende avtale inngås oppfordres interessenter til å innhente komplett informasjon fra meglerforetaket, selger eller utleier.
























