Bildegalleri

Velkommen til Åsmoveien 4A
Ura - Nyere 1/2 part av tomannsbolig i barnevennlig område med meget gode solforhold!
Prisantydning3 950 000 kr
Nøkkelinfo
- Boligtype
- Tomannsbolig
- Eieform
- Eier (Selveier)
- Soverom
- 3
- Internt bruksareal
- 127 m² (BRA-i)
- Bruksareal
- 139 m²
- Eksternt bruksareal
- 12 m² (BRA-e)
- Balkong/Terrasse
- 89 m² (TBA)
- Etasje
- 2
- Byggeår
- 2014
- Energimerking
- C - Lysegrønn
- Rom
- 5
- Tomt
- Eiet
Fasiliteter
Balkong/Terrasse
Barnevennlig
Bredbåndstilknytning
Garasje/P-plass
Hage
Kjæledyr tillatt
Offentlig vann/kloakk
Peis/Ildsted
Rolig
Utsikt
Turterreng
Balansert ventilasjon
Visning
torsdag, 26. februar
18:00 – 18:45
Alle våre visninger har påmelding. På denne måten sikrer vi at megler har god oversikt og tid til å imøtekomme alle interessenter på beste måte. Dette er veldig verdifullt for boligkjøpere og for oss. Det er enkelt å melde seg på, og du kan like enkelt melde deg av. Kontakt også gjerne megler i forkant av visning dersom du har spørsmål. Visninger uten påmeldte deltakere kan bli avlyst.
VisningspåmeldingOm boligen
Lisa Helgesen ved Rede Eiendomsmegling har en glede av å presentere Åsmoveien 4B, en smakfull 1/2 part av tomannsbolig med et moderne uttrykk og fargevalg. Her kan man flytte rett inn og nyte den flotte utsikten og de solrike utearealene.
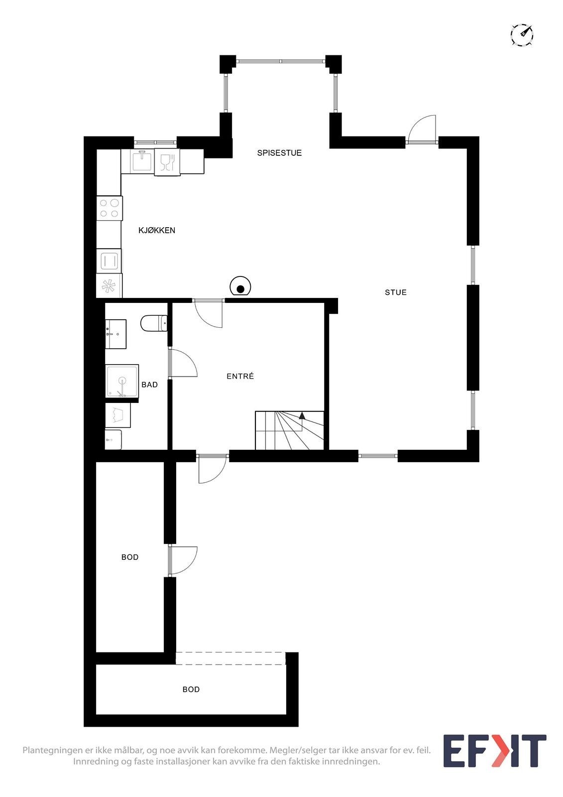
I 1. etg. finner man romslig stue med åpen løsning til kjøkken, romslig entre og bad/vaskerom. Her er det også etablert terrasse med utgang fra stue som for øvrig har nydelig utsikt mot Alstenfjorden og kveldssola. I boligens 2.etg er det 3 soverom, romslig bad og utgang til balkong hvor man kan nyte morgen- og formiddags solen.
Boligen har kort vei og en sentral beliggenhet i forhold til skole, barnehage, dagligvarebutikk og turterreng.
Foto: Lene Blomø
I 1. etg. finner man romslig stue med åpen løsning til kjøkken, romslig entre og bad/vaskerom. Her er det også etablert terrasse med utgang fra stue som for øvrig har nydelig utsikt mot Alstenfjorden og kveldssola. I boligens 2.etg er det 3 soverom, romslig bad og utgang til balkong hvor man kan nyte morgen- og formiddags solen.
Boligen har kort vei og en sentral beliggenhet i forhold til skole, barnehage, dagligvarebutikk og turterreng.
Foto: Lene Blomø
NB: Knappen for å vise hele beskrivelsen har kun en visuell effekt.
NB: Knappen for å vise hele beskrivelsen har kun en visuell effekt.
Salgsoppgaven beskriver vesentlig og lovpålagt informasjon om eiendommen
Se komplett salgsoppgaveNærområdet
Rede Eiendomsmegling AS
- Alltid REDE for Helgeland
Annonseinformasjon
| FINN-kode | 451933634 |
|---|---|
| Sist endret | 20. feb. 2026 13:31 |
| Referanse | 2527ae88-a2c1-4e88-884e-590bc27abd89 |
Annonsene kan være mangelfulle i forhold til lovpålagt opplysningsplikt. Før bindende avtale inngås oppfordres interessenter til å innhente komplett informasjon fra meglerforetaket, selger eller utleier.


















