Bildegalleri

Velkommen til Majorstuveien 17A! En lys, luftig og arealsmart leilighet beliggende i byggets 4.etasje med heisadkomst. Foto: Stefan Borup.
Majorstuen
Lys & sentral selveier mot stille bakgård |Bad 2020| Varmtvann & oppvarming ink.|Lave fk.|Heis| Perfekt førstegangskjøp!
Prisantydning3 840 000 kr
Nøkkelinfo
- Boligtype
- Leilighet
- Eieform
- Eier (Selveier)
- Soverom
- 0
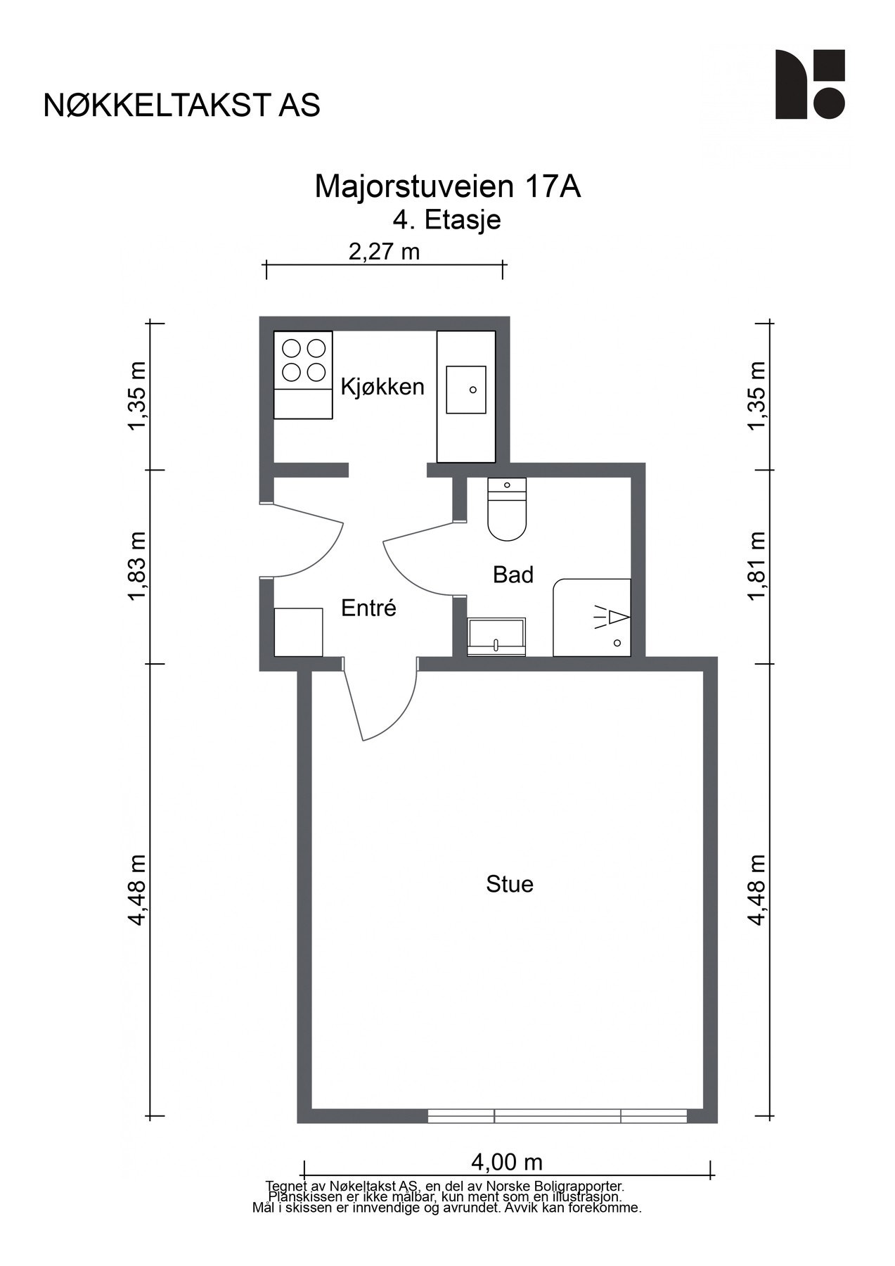
- Internt bruksareal
- 27 m² (BRA-i)
- Bruksareal
- 30 m²
- Eksternt bruksareal
- 3 m² (BRA-e)
- Etasje
- 4
- Byggeår
- 1936
- Energimerking
- C - Lysegrønn
- Rom
- 2
- Tomteareal
- 1 309 m² (eiet)
Fasiliteter
Barnevennlig
Kabel-TV
Heis
Offentlig vann/kloakk
Turterreng
Fellesvaskeri
Sentralt
Bredbåndstilknytning
Moderne
Rolig
Visning
søndag, 01. mars
13:00 – 14:00
Velkommen til visning!
Alle våre visninger har påmelding. På denne måten sikrer vi at megler har god oversikt og tid til å imøtekomme alle interessenter på beste måte. Dette er veldig verdifullt for boligkjøpere og for oss. Det er enkelt å melde seg på, og du kan like enkelt melde deg av. Kontakt også gjerne megler i forkant av visning dersom du har spørsmål.
mandag, 02. mars
17:00 – 18:00
Velkommen til visning!
Alle våre visninger har påmelding. På denne måten sikrer vi at megler har god oversikt og tid til å imøtekomme alle interessenter på beste måte. Dette er veldig verdifullt for boligkjøpere og for oss. Det er enkelt å melde seg på, og du kan like enkelt melde deg av. Kontakt også gjerne megler i forkant av visning dersom du har spørsmål.
Om boligen
Velkommen til Majorstuveien 17A!
En lys, luftig og arealsmart leilighet beliggende i byggets 4.etasje med heisadkomst.
Boligen byr på flere kvaliteter som bl.a god takhøyde opp mot 2,66m, originale heltregulv av eik, stor vindusflate med nydelig og frodig utsyn sommerstid - med lite innsyn. Et ypperlig førstegangskjøp, pendlerleilighet eller utleiebolig - alt etter behov!
- Leiligheten i sin helhet vender mot stille bakgård
- Lekkert baderom oppgradert i 2020 med mikrosement, rør-i-rør og ny membran. Opplegg til vaskemaskin
- Separat kjøkken med nyere hvitevarer
- Lave felleskostnader med internett, varmtvann og oppvarming inkludert
- Veldrevet sameie med bl.a utført rehabilitering av rør i 2020 og heis i 2023
- Kott i entré
- To disp. kjellerboder på totalt 3m²
Sentral og tilbaketrukket beliggenhet med"alt" rett utenfor døren! Kort vei til handlegaten Bogstadveien, Frognerparken, Vestkanttorvet og god tilgang på dagligvarebutikker og offentlig kommunikasjon.
En lys, luftig og arealsmart leilighet beliggende i byggets 4.etasje med heisadkomst.
Boligen byr på flere kvaliteter som bl.a god takhøyde opp mot 2,66m, originale heltregulv av eik, stor vindusflate med nydelig og frodig utsyn sommerstid - med lite innsyn. Et ypperlig førstegangskjøp, pendlerleilighet eller utleiebolig - alt etter behov!
- Leiligheten i sin helhet vender mot stille bakgård
- Lekkert baderom oppgradert i 2020 med mikrosement, rør-i-rør og ny membran. Opplegg til vaskemaskin
- Separat kjøkken med nyere hvitevarer
- Lave felleskostnader med internett, varmtvann og oppvarming inkludert
- Veldrevet sameie med bl.a utført rehabilitering av rør i 2020 og heis i 2023
- Kott i entré
- To disp. kjellerboder på totalt 3m²
Sentral og tilbaketrukket beliggenhet med"alt" rett utenfor døren! Kort vei til handlegaten Bogstadveien, Frognerparken, Vestkanttorvet og god tilgang på dagligvarebutikker og offentlig kommunikasjon.
NB: Knappen for å vise hele beskrivelsen har kun en visuell effekt.
NB: Knappen for å vise hele beskrivelsen har kun en visuell effekt.
Salgsoppgaven beskriver vesentlig og lovpålagt informasjon om eiendommen
Se komplett salgsoppgaveNyttige lenker
Nærområdet

PrivatMegleren Allé
Kun det beste på dine vegne
Annonseinformasjon
| FINN-kode | 451927523 |
|---|---|
| Sist endret | 22. feb. 2026 17:39 |
| Referanse | 186260051 |
Annonsene kan være mangelfulle i forhold til lovpålagt opplysningsplikt. Før bindende avtale inngås oppfordres interessenter til å innhente komplett informasjon fra meglerforetaket, selger eller utleier.























