Bildegalleri

EiendomsMegler 1 har gleden av å presentere Flakaveien 1! Foto: EFKT
Betydelig oppgradert halvpart av vertikaldelt tomannsbolig m/garasje på Innlandet! Nydelig utsikt og gode solforhold
Prisantydning3 990 000 kr
Nøkkelinfo
- Boligtype
- Tomannsbolig
- Eieform
- Eier (Selveier)
- Soverom
- 4
- Internt bruksareal
- 142 m² (BRA-i)
- Bruksareal
- 159 m²
- Eksternt bruksareal
- 17 m² (BRA-e)
- Balkong/Terrasse
- 58 m² (TBA)
- Byggeår
- 1956
- Energimerking
- D - Gul
- Rom
- 5
- Tomteareal
- 562 m² (eiet)
Fasiliteter
Barnevennlig
Balkong/Terrasse
Garasje/P-plass
Offentlig vann/kloakk
Peis/Ildsted
Turterreng
Utsikt
Aircondition
Sentralt
Bredbåndstilknytning
Rolig
Visning
mandag, 02. mars
16:30 – 17:30
Våre visninger har påmelding. Dette gjør vi for å kunne yte bedre service for våre kunder. Verdifullt for boligkjøper og for oss. Vi anbefaler at salgsoppgaven lastes ned digitalt før visning, og ring oss gjerne på forhånd for spørsmål om boligen. Passer ikke angitt tidspunkt, ta kontakt så finner vi en løsning. Skulle det mot formodning ikke være påmeldte til angitt visningstidspunkt vil ikke visning bli gjennomført.
Om boligen
EiendomsMegler 1 har gleden av å presentere Flakaveien 1!
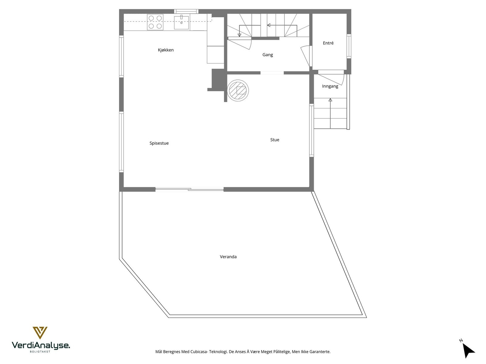
Betydelig oppgradert halvpart av vertikaldelt tomannsbolig m/garasje på Innlandet. Boligen ligger i umiddelbar nærhet til skole, barnehage og dagligvarebutikk med posttjenester. Boligen er oppført i 1956 og har i 2025-2026 gjennomgått en omfattende teknisk oppgradering. Boligen går over 3 plan og inneholder stue, kjøkken, 4 soverom, 2 bad, bod, kott og gangareal. Eiendommen har gode sol- og lysforhold, samt gode uteplasser, som markterrasse mot nordvest, sydvestvendt terrasse i 1. etasje og på loft er det sydvestvendt balkong. Begge bad (loft og kjeller) er renovert i 2026. Utvendig er taket omlagt med betongtakstein, montert nye takrenner og beslag og skiftet vinduer og ytterdører i 2026. Parkering på egen tomt og i garasje oppført i 1970. Fine tur- og rekreasjonsområder i nærheten, som f.eks Skjærva badestrand og Bautaen. Gangavstand til sentrum av Kristiansund med alle fasiliteter.
Velkommen til visning!
Betydelig oppgradert halvpart av vertikaldelt tomannsbolig m/garasje på Innlandet. Boligen ligger i umiddelbar nærhet til skole, barnehage og dagligvarebutikk med posttjenester. Boligen er oppført i 1956 og har i 2025-2026 gjennomgått en omfattende teknisk oppgradering. Boligen går over 3 plan og inneholder stue, kjøkken, 4 soverom, 2 bad, bod, kott og gangareal. Eiendommen har gode sol- og lysforhold, samt gode uteplasser, som markterrasse mot nordvest, sydvestvendt terrasse i 1. etasje og på loft er det sydvestvendt balkong. Begge bad (loft og kjeller) er renovert i 2026. Utvendig er taket omlagt med betongtakstein, montert nye takrenner og beslag og skiftet vinduer og ytterdører i 2026. Parkering på egen tomt og i garasje oppført i 1970. Fine tur- og rekreasjonsområder i nærheten, som f.eks Skjærva badestrand og Bautaen. Gangavstand til sentrum av Kristiansund med alle fasiliteter.
Velkommen til visning!
NB: Knappen for å vise hele beskrivelsen har kun en visuell effekt.
NB: Knappen for å vise hele beskrivelsen har kun en visuell effekt.
Salgsoppgaven beskriver vesentlig og lovpålagt informasjon om eiendommen
Se komplett salgsoppgaveNyttige lenker
Nærområdet
EiendomsMegler 1 Kristiansund
Vi loser deg trygt gjennom hele boligsalget
Annonseinformasjon
| FINN-kode | 451925096 |
|---|---|
| Sist endret | 22. feb. 2026 12:58 |
| Referanse | 17250374 |
Annonsene kan være mangelfulle i forhold til lovpålagt opplysningsplikt. Før bindende avtale inngås oppfordres interessenter til å innhente komplett informasjon fra meglerforetaket, selger eller utleier.



























