Bildegalleri

Velkommen til Røyskattvegen 19! Fotograf: Alexander Jakobsen, EFKT Foto
Kattem
Sørvendt lavrekkehus med endebeliggenhet. Mulighet for 2 soverom. "Alt inkl." i felleskostn. P-plass og fin solgang.
Prisantydning2 590 000 kr
Nøkkelinfo
- Boligtype
- Rekkehus
- Eieform
- Andel
- Soverom
- 1
- Internt bruksareal
- 130 m² (BRA-i)
- Bruksareal
- 134 m²
- Eksternt bruksareal
- 4 m² (BRA-e)
- Balkong/Terrasse
- 45 m² (TBA)
- Etasje
- 1
- Byggeår
- 1978
- Energimerking
- D - Gul
- Rom
- 2
- Tomt
- Eiet
Fasiliteter
Barnevennlig
Balkong/Terrasse
Garasje/P-plass
Kabel-TV
Offentlig vann/kloakk
Turterreng
Vaktmester-/vektertjeneste
Fellesvaskeri
Bredbåndstilknytning
Moderne
Rolig
Balansert ventilasjon
Om boligen
EIE eiendomsmegling ved Andreas Forsell Lund og Julie Marie Vollan Brennvik ønsker velkommen til Røyskattvegen 19! Denne boligen er et lavrekkehus i det anerkjente borettslaget Skjetlein borettslag, med en lokal og barnevennlig beliggenhet på Kattem.
Boligen har en gjennomgående velholdt standard, og går over to plan, med første etasje og underetasje. Røyskattvegen ligger i et rolig og barnevennlig område, tilbaketrukket fra gjennomfartstrafikk. Borettslaget gjennomgikk en omfattende rehabilitering i perioden 2014-2016, hvor blant annet tak, vinduer, dører og fasader ble oppgradert.
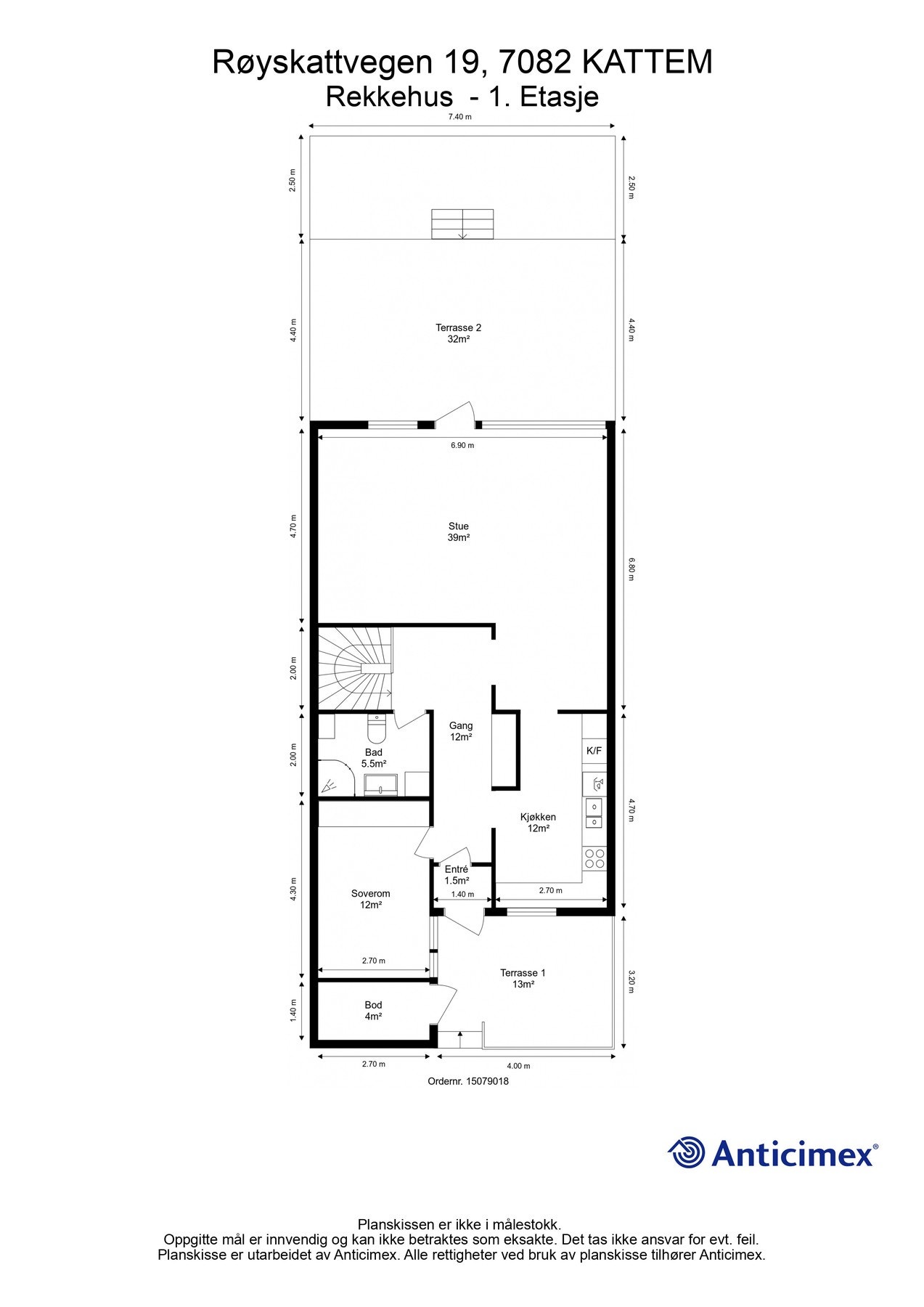
Dagens planløsning består av ett soverom, men det foreligger en mulighet for å etablere et ekstra soverom uten søknadsplikt.
Merk deg ellers:
- 134 kvm over to plan
- Endebeliggenhet og sørvendt terrasse
- Kjøkkenet er vurdert til TG1
- Egen parkeringsplass i oppvarmet garasje
- Fjernvarme, varmtvann og stort tørkerom inkl. i felleskostnader
Velkommen til EIE - visning!
Boligen har en gjennomgående velholdt standard, og går over to plan, med første etasje og underetasje. Røyskattvegen ligger i et rolig og barnevennlig område, tilbaketrukket fra gjennomfartstrafikk. Borettslaget gjennomgikk en omfattende rehabilitering i perioden 2014-2016, hvor blant annet tak, vinduer, dører og fasader ble oppgradert.
Dagens planløsning består av ett soverom, men det foreligger en mulighet for å etablere et ekstra soverom uten søknadsplikt.
Merk deg ellers:
- 134 kvm over to plan
- Endebeliggenhet og sørvendt terrasse
- Kjøkkenet er vurdert til TG1
- Egen parkeringsplass i oppvarmet garasje
- Fjernvarme, varmtvann og stort tørkerom inkl. i felleskostnader
Velkommen til EIE - visning!
NB: Knappen for å vise hele beskrivelsen har kun en visuell effekt.
NB: Knappen for å vise hele beskrivelsen har kun en visuell effekt.
Salgsoppgaven beskriver vesentlig og lovpålagt informasjon om eiendommen
Se komplett salgsoppgaveNyttige lenker
Nærområdet
EIE eiendomsmegling Heimdal

Julie Marie Vollan Brennvik
Eiendomsmeglerfullmektig | Markeds- og sosiale medier ansvarlig
Annonseinformasjon
| FINN-kode | 451920543 |
|---|---|
| Sist endret | 26. feb. 2026 21:33 |
| Referanse | 97260020 |
Annonsene kan være mangelfulle i forhold til lovpålagt opplysningsplikt. Før bindende avtale inngås oppfordres interessenter til å innhente komplett informasjon fra meglerforetaket, selger eller utleier.
































