Bildegalleri

Stor flott familiebolig på solrik og meget romslig tomt
Idyllisk og romslig bolig i naturskjønne omgivelser | Solrik tomt | Utleiedel med gode inntektsmuligheter
Prisantydning6 990 000 kr
Nøkkelinfo
- Boligtype
- Enebolig
- Eieform
- Eier (Selveier)
- Soverom
- 7
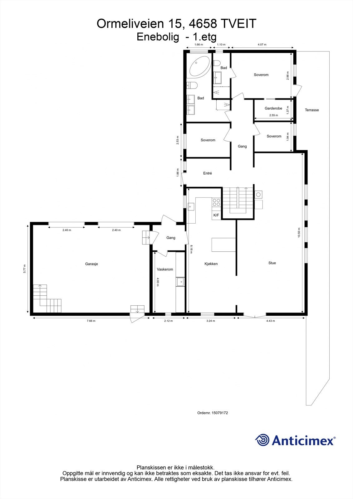
- Internt bruksareal
- 389 m² (BRA-i)
- Bruksareal
- 409 m²
- Eksternt bruksareal
- 20 m² (BRA-e)
- Balkong/Terrasse
- 102 m² (TBA)
- Etasje
- 3
- Byggeår
- 1980
- Energimerking
- E - Oransje
- Rom
- 11
- Tomteareal
- 2 189 m² (eiet)
Fasiliteter
Alpinanlegg
Balkong/Terrasse
Barnevennlig
Bredbåndstilknytning
Garasje/P-plass
Golfbane
Hage
Kjæledyr tillatt
Ingen gjenboere
Kabel-TV
Peis/Ildsted
Rolig
Utsikt
Bademulighet
Fiskemulighet
Turterreng
Visning
tirsdag, 03. mars
16:15 – 17:15
For å delta på visning, ber vi om at du melder deg på. Da sikrer vi at du får nødvendig informasjon og at det er satt av tilstrekkelig med tid. Kontakt megler dersom annet tidspunkt ønskes. Husk å lese salgsoppgaven før visningen, så du stiller forberedt. NB. Visning utgår dersom det ikke er noen påmeldte.
Ønsker du kun å bli holdt orientert, kan du fra eiendommens hjemmeside få varsel om solgtpris, eller kontakte megler.
VisningspåmeldingOm boligen
Velkommen til Ormeliveien 15 en romslig og innholdsrik eiendom med landlig og skjermet beliggenhet i naturskjønne omgivelser på Tveit. Her bor du fredelig til med gode solforhold på uteplassen og med flott turterreng rett utenfor døren. Det går sti gjennom skogen til skole, og det er kort vei til populære badevann (ca. 500 meter).
Boligen fremstår som praktisk og godt utnyttet med rikelig lagringsplass og gode parkeringsmuligheter på egen tomt. Tomten er pent opparbeidet med plen og asfalterte arealer. Eiendommen har også inntektspotensial og/eller kan egne seg som generasjonsbolig.
Eiendommen har vært eid og bebodd over lang tid og fremstår som et godt hjem for deg som ønsker god plass, rolige omgivelser og nærhet til natur.
Boligen fremstår som praktisk og godt utnyttet med rikelig lagringsplass og gode parkeringsmuligheter på egen tomt. Tomten er pent opparbeidet med plen og asfalterte arealer. Eiendommen har også inntektspotensial og/eller kan egne seg som generasjonsbolig.
Eiendommen har vært eid og bebodd over lang tid og fremstår som et godt hjem for deg som ønsker god plass, rolige omgivelser og nærhet til natur.
NB: Knappen for å vise hele beskrivelsen har kun en visuell effekt.
NB: Knappen for å vise hele beskrivelsen har kun en visuell effekt.
Salgsoppgaven beskriver vesentlig og lovpålagt informasjon om eiendommen
Se komplett salgsoppgaveNyttige lenker
Nærområdet
Krogsveen Kristiansand
Verdien av en god megler.
Annonseinformasjon
| FINN-kode | 451912341 |
|---|---|
| Sist endret | 23. feb. 2026 15:05 |
| Referanse | KR31.2618 |
Annonsene kan være mangelfulle i forhold til lovpålagt opplysningsplikt. Før bindende avtale inngås oppfordres interessenter til å innhente komplett informasjon fra meglerforetaket, selger eller utleier.































































