Bildegalleri

Velkommen til Kirkeveien 45 - Vi har gleden av å presentere en innholdsrik og gjennomgående leilighet, beliggende i et urbant, populært og meget sentralt boligområde på Majorstuen.
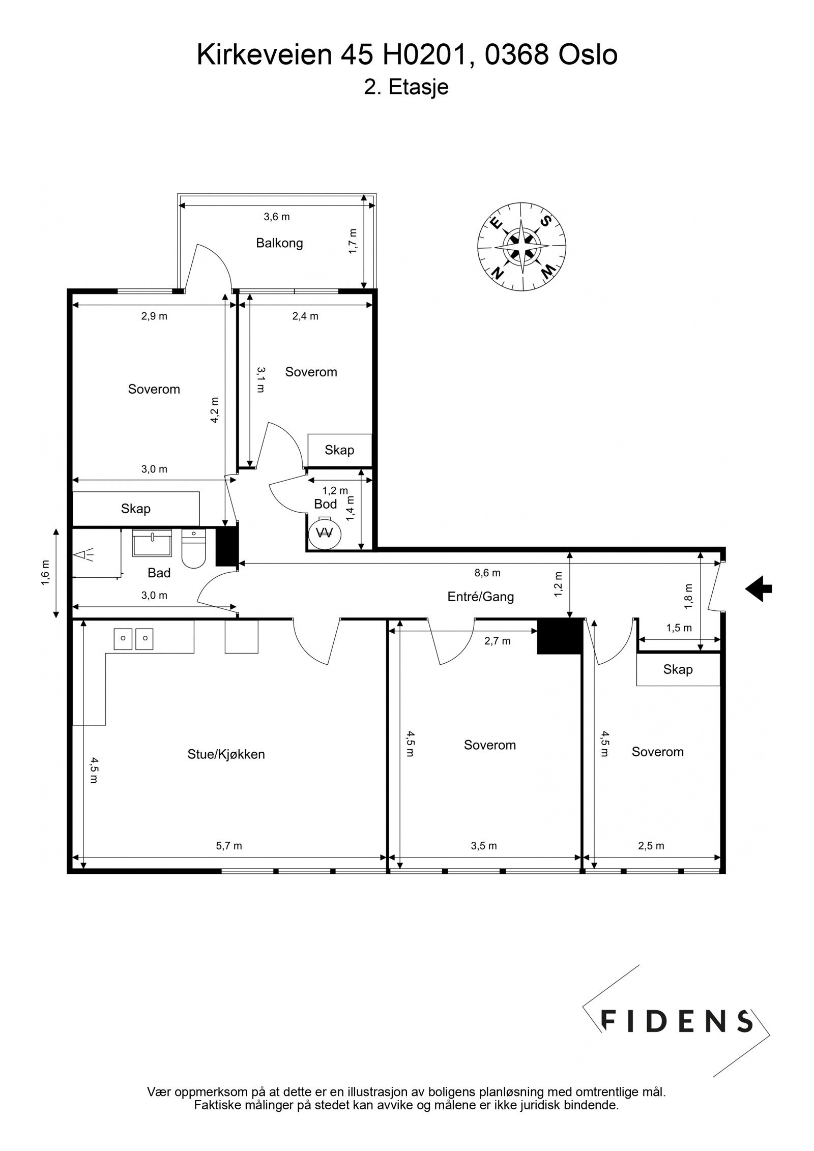
Stor og gjennomgående 5-roms med meget sentral beliggenhet | Sørøst-vendt balkong | Heis | P-plass kan kjøpes
Nøkkelinfo
- Boligtype
- Leilighet
- Eieform
- Andel
- Soverom
- 3
- Internt bruksareal
- 95 m² (BRA-i)
- Bruksareal
- 95 m²
- Balkong/Terrasse
- 6 m² (TBA)
- Etasje
- 2
- Byggeår
- 1979
- Energimerking
- G - Rød
- Rom
- 5
- Tomteareal
- 1 168 m² (eiet)
Fasiliteter
Visning
Om boligen
Velkommen til Kirkeveien 45 - Vi har gleden av å presentere en innholdsrik og gjennomgående leilighet, beliggende i et urbant, populært og meget sentralt boligområde på Majorstuen i Oslo. Her bor du med kort vei til trikk, hyggelige kafeer, butikker og flere grønne parker - alt innen kort gangavstand.
Kvaliteter:
- Gjennomgående 5-roms leilighet med sørøst-vendt balkong
- Svært god intern beliggenhet i byggets 2. etasje, med heisadkomst
- Bad med opplegg for vaskemaskin
- Tre gode soverom
- Innvendig bod
- Disponibel bod
- Mulighet for kjøp av bruksrett til garasjeplass i felles garasjekjeller for kr 650 000
- Kort avstand til Frognerparken med Frognerbadet og tennisbaner, samt nærhet til Majorstuen, Briskeby og Frogner
Velkommen til visning!
Salgsoppgaven beskriver vesentlig og lovpålagt informasjon om eiendommen
Se komplett salgsoppgaveNyttige lenker
Nærområdet

PrivatMegleren Dyve & Partnere
Annonseinformasjon
| FINN-kode | 451840262 |
|---|---|
| Sist endret | 19. feb. 2026 18:20 |
| Referanse | 159250847 |
Annonsene kan være mangelfulle i forhold til lovpålagt opplysningsplikt. Før bindende avtale inngås oppfordres interessenter til å innhente komplett informasjon fra meglerforetaket, selger eller utleier.
























