Bildegalleri

EiendomsMegler1 v/Christer Aabø har gleden av å presentere Saturnveien 28 A! Foto: H5 Property.
Gangsås
Sjelden mulighet med endebeliggenhet i bakre rekke på Gangsås| Fantastisk sol- og utsiktsforhold| Grenser mot grøntareal
Prisantydning3 450 000 kr
Nøkkelinfo
- Boligtype
- Enebolig
- Eieform
- Eier (Selveier)
- Soverom
- 3
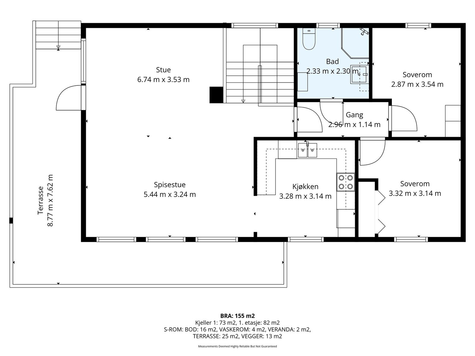
- Internt bruksareal
- 164 m² (BRA-i)
- Bruksareal
- 174 m²
- Eksternt bruksareal
- 10 m² (BRA-e)
- Balkong/Terrasse
- 23 m² (TBA)
- Etasje
- 2
- Byggeår
- 1985
- Energimerking
- F - Oransje
- Rom
- 4
- Tomteareal
- 787 m² (eiet)
Fasiliteter
Barnevennlig
Balkong/Terrasse
Garasje/P-plass
Offentlig vann/kloakk
Ingen gjenboere
Peis/Ildsted
Turterreng
Utsikt
Sentralt
Rolig
Visning
tirsdag, 03. mars
17:00 – 17:45
Alle våre visninger har påmelding. Dette for at vi kan planlegge visningene best mulig, og ha god tid til de som kommer. Det er enkelt å melde seg på, og du kan like enkelt melde deg av. Visninger uten påmeldte deltakere kan bli avlyst.
Om boligen
EiendomsMegler1 v/Christer Aabø har gleden av å presentere Saturnveien 28 A på populære Gangsås!
Boligen ligger fint til i bakre rekke og innerst i blindgate, med fantastiske sol- og utsiktsforhold ut mot byen, her ser man til og med Sollia alpinsenter fra stuen.
Boligen anses som et renoveringsobjekt, så her har man mulighet til skape sitt nye hjem med en fantastisk beliggenhet!
Kvaliteter verdt å merke seg:
Boligen ligger fint til i bakre rekke og innerst i blindgate, med fantastiske sol- og utsiktsforhold ut mot byen, her ser man til og med Sollia alpinsenter fra stuen.
Boligen anses som et renoveringsobjekt, så her har man mulighet til skape sitt nye hjem med en fantastisk beliggenhet!
Kvaliteter verdt å merke seg:
- Skjermet beliggenhet innerst i blindgate og i bakre rekke.
- Fantastisk panoramautsikt fra stue.
- Svært gode solforhold.
- Gode parkeringsmuligheter på egen tomt.
- Barnevennlig beliggenhet.
- Vedfyring.
- Fleksibel på tidspunkt for overtagelse.
- Flotte turmulighetet i umiddelbar nærhet.
Velkommen til en hyggelig visning!
NB: Knappen for å vise hele beskrivelsen har kun en visuell effekt.
NB: Knappen for å vise hele beskrivelsen har kun en visuell effekt.
Salgsoppgaven beskriver vesentlig og lovpålagt informasjon om eiendommen
Se komplett salgsoppgaveNyttige lenker
Nærområdet
EiendomsMegler 1 Harstad
Vi loser deg trygt gjennom hele boligsalget
Annonsene kan være mangelfulle i forhold til lovpålagt opplysningsplikt. Før bindende avtale inngås oppfordres interessenter til å innhente komplett informasjon fra meglerforetaket, selger eller utleier.
































